Obytné místnosti

5

Užitná plocha celkem

115 m2

Zastavěná plocha

76 m2

Konstrukce domu

Dřevostavba

Půdorysné rozměry domu:

9,25 x 8,25 m

Výška hřebenu střechy:

7,7 m

Počet koupelen:

2

Tvar půdorysu:

Obdélník

Typ střechy:

Sedlová

Provedení fasády:

Omítka

Styl domu:

Moderní

Doporučená orientace vstupu:

Sever, Východ

Vybavení domu:

Samostatné WC, Pracovna, Pokoj pro hosty, Hobby místnost, Krb, Terasa

1. NP

Obývací prostor s jídelnou

27 m2

Kuchyňský kout

7,4 m2

Pracovna/Pokoj pro hosty/Dětský pokoj

10,37 m2

Koupelna

3,7 m2

Chodba

4,34 m2

Sklad

2,3 m2

Zádveří

4,62 m2

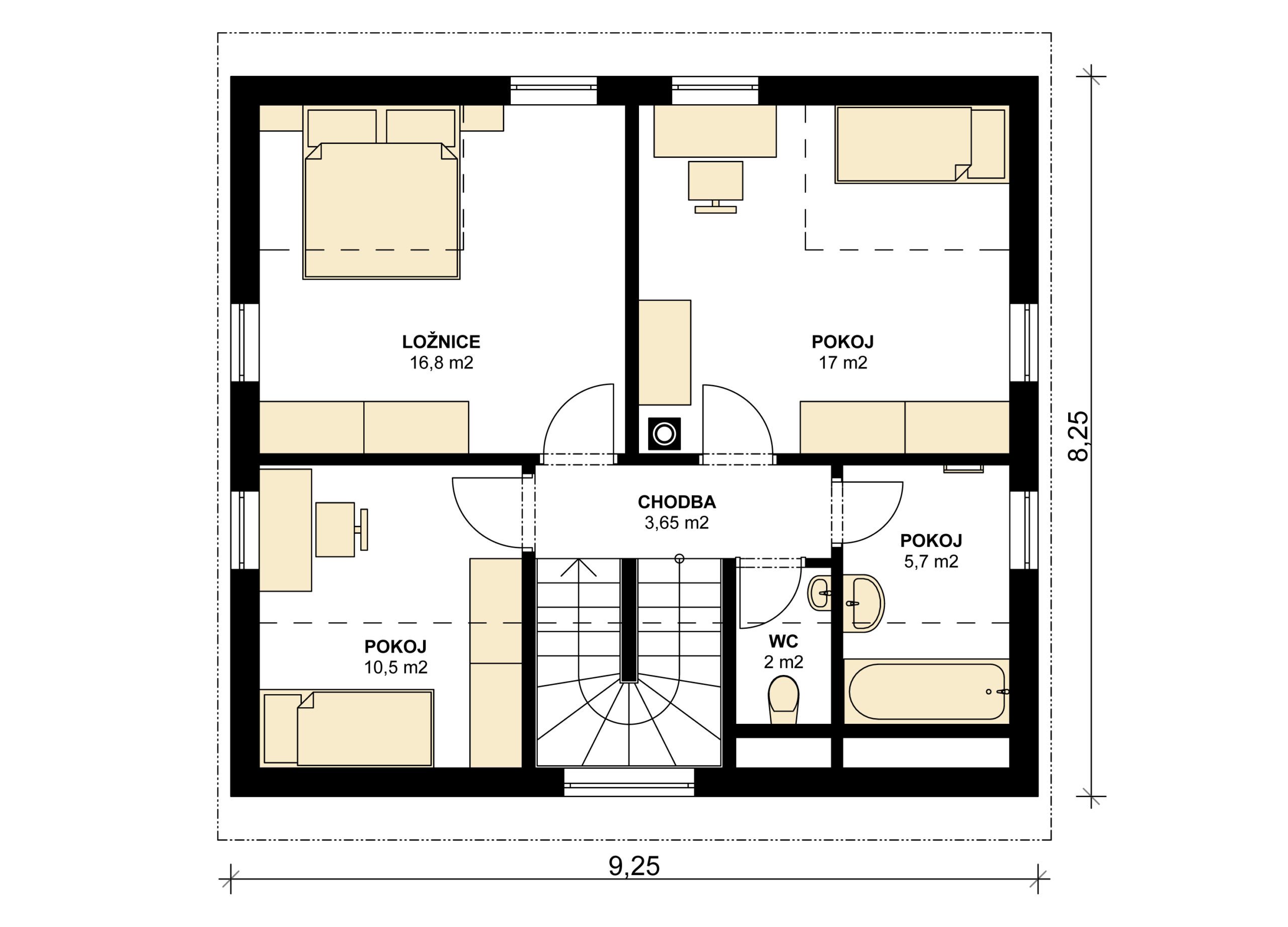
2. NP

Chodba

3,65 m2

Pokoj

17 m2

Ložnice

16,8 m2

Pokoj

10,5 m2

Koupelna

5,7 m2

WC

2 m2


Cena domu k dokončení

5 080 000

Cena včetně DPH. Cena neobsahuje realizaci základové desky, projekt pro stavební povolení a vyřízení stavebního povolení.
Dům k dokončení neobsahuje finální povrchy podlah a stěn (obklady, dlažby, podlahové krytiny, výmalba), zařizovací předměty koupelen a wc, interiérové dveře a zárubně.

Cena domu na klíč

5 680 000

Cena včetně DPH. Cena neobsahuje realizaci základové desky, projekt pro stavební povolení a vyřízení stavebního povolení.
Dům na klíč neobsahuje krbovou vložku nebo krbová kamna, žaluzie, kuchyňskou linku ani žádný jiný nábytek, terasu, hromosvod, okapové chodníky, zpevněné plochy na pozemku, přípojky inženýrských sítí, sadové úpravy, oplocení pozemku.

Popis stavby

Jednoduchý rodinný dům se sedlovou střechou a obytným podkrovím. Charakteristickým architektonickým prvkem domu je vikýř s francouzskými okny, který rozšiřuje užitnou plochu podkroví.

Společenská část domu je umístěna v přízemí a je tvořena velkorysým obytným prostorem, propojeným s jídelnou a kuchyňským koutem. Centrálně umístěný krb jistě oceníte zejména v zimních měsících. Velké prosklené plochy jsou zárukou dostatečného prosvětlení interiéru denním světlem a ničím nerušeného výhledu do zahrady. V prostoru pod schodištěm je navržen praktický skladovací prostor.

V přízemí dále najdeme koupelnu s toaletou a pokoj, který podle potřeby může sloužit jako pracovna, pokoj pro hosty, dětský pokoj nebo hobby místnost.

V patře jsou umístěny 3 pohodlné ložnice s dostatečným prostorem pro instalaci vestavěných skříní, dále koupelna s vanou a samostatné wc.

Náš tip

Dům je zhotoven z předem připravených celostěnových panelů certifikovaného systému pro dřevostavby DMK system.
Pokud vám typové řešení v některých parametrech nevyhovuje, dům může být upraven přesně podle vašich individuálních požadavků.

Nechcete ztrácet čas procházením našeho katalogu?

Zadejte základní parametry vašeho vysněného domu a získejte nabídky šité na míru právě Vám.

 ZAVŘÍT

Aby web fungoval jak má - souhlas s cookies

Pro co nejlepší zážitek z prohlížení webu, aby fungovalo vyhledávání, přihlašování, abychom vás neobtěžovali nevhodnou reklamou a pro mnoho dalších věcí využívá tato stránka tzv. cookies, což jsou drobné textové informace dočasně ukládané do paměti vašeho prohlížeče. K jejich použití od vás potřebujeme souhlas. Za jeho udělení v plné šíři, či podrobné nastavení vám velmi děkujeme. Vaše rozhodnutí můžete samozřejmě kdykoliv změnit a přenastavit.

Jaké cookies používáme

Nezbytné

Nezbytné cookies jsou bezpodmínečně nutné k fungování stránek. Bez nich by nefungovaly základní funkcionality, jako např. přihlašování nebo nakupování v e-shopu. Tyto jsou vždy automaticky povolené.

Statistické

Tyto cookies pomáhají s měřením a analýzou návštěvnosti stránek.

sembako4d sembako4d sembako4d balaitoto balaitoto sembako4d sembako4d balaitoto indosattoto bengbeng toto login bengbengtoto login bengbengtoto login bengbengtoto login bengbengtoto login bengbengtoto login bengbengtoto indosattoto indosattoto balaitoto cahayatoto cahayatoto cahayatoto cahayatoto cahayatoto indosattoto indosattoto ohtogel ohtogel ohtogel ohtogel ohtogel ohtogel ohtogel jualtoto mineraltoto

Marketingové

Marketingové cookies pomáhají trackovat uživatele stránek za účelem nabízení cílených reklamních sdělení. Dávají smysl pro obě strany, neboť uživatel stránek obdrží reklamu na produkty, které ho skutečně zajímají, a které např. vyhledával v minulosti, a vydavatelé reklam naopak mohou tyto reklamy cíleně nabídnout.

Přijmout vše Přijmout vybrané Podrobné nastavení