Obytné místnosti

4

Užitná plocha celkem

93 m2

Zastavěná plocha

63 m2

Konstrukce domu

Dřevostavba

Půdorysné rozměry domu:

9 x 7 m

Výška hřebenu střechy:

7,1 m

Počet koupelen:

1

Tvar půdorysu:

Obdélník

Typ střechy:

Sedlová

Provedení fasády:

Omítka

Styl domu:

Tradiční

Doporučená orientace vstupu:

Sever

Vybavení domu:

Samostatné WC, Samostatná spíž, Samostatná šatna, Pracovna, Krb, Terasa

1. NP

Obývací prostor s jídelnou a prac. koutem

29,38 m2

Kuchyňský kout

8,09 m2

Spíž

1,95 m2

WC

1,50 m2

Šatna/sklad

1,30 m2

Tech. místnost

1,80 m2

Zádveří

3,24 m2

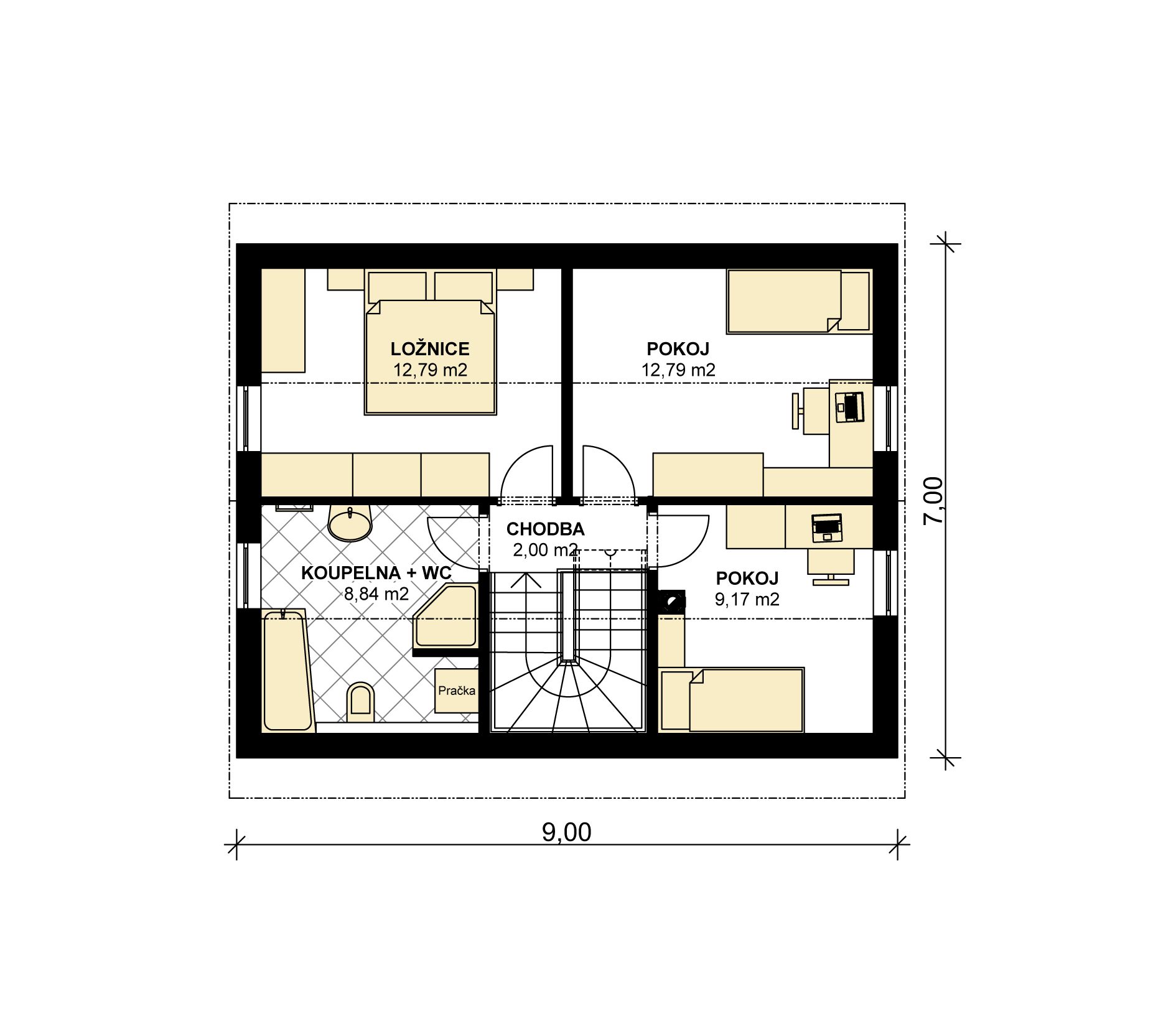
2. NP

Ložnice

12,79 m2

Pokoj

12,79 m2

Pokoj

9,17 m2

Koupelna

8,84 m2

Chodba

2,00 m2


Cena domu k dokončení

4 170 000

Cena včetně DPH. Cena neobsahuje realizaci základové desky, projekt pro stavební povolení a vyřízení stavebního povolení.
Dům k dokončení neobsahuje finální povrchy podlah a stěn (obklady, dlažby, podlahové krytiny, výmalba), zařizovací předměty koupelen a wc, interiérové dveře a zárubně.

Cena domu na klíč

4 710 000

Cena včetně DPH. Cena neobsahuje realizaci základové desky, projekt pro stavební povolení a vyřízení stavebního povolení.
Dům na klíč neobsahuje krbovou vložku nebo krbová kamna, žaluzie, kuchyňskou linku ani žádný jiný nábytek, terasu, hromosvod, okapové chodníky, zpevněné plochy na pozemku, přípojky inženýrských sítí, sadové úpravy, oplocení pozemku.

Popis stavby

Klasický 4pokojový rodinný dům s obytným podkrovím. Díky malé zastavěné ploše je vhodný na menší parcely.

V přízemí domu se nachází obývací pokoj s krbem, který je propojen s jídelnou a kuchyňským koutem a díky francouzkému oknu také s exteriérem domu. Z části obývacího pokoje lze vytvořit opticky oddělenou pracovnu. Velkou výhodou kuchyně je samostatná spíž, sloužící k pohodlnému uskladnění potravin. Dále v přízemí najdeme samostatné WC a technickou místnost. V prostoru pod schodištěm je navržena šatna.

V podkroví jsou umístěny 3 ložnice a nadstandardně velká koupelna s vanou i sprchovým koutem.

Náš tip

Dům je zhotoven z předem připravených celostěnových panelů certifikovaného systému pro dřevostavby DMK system.
Pokud vám typové řešení v některých parametrech nevyhovuje, dům může být upraven přesně podle vašich individuálních požadavků.

Nechcete ztrácet čas procházením našeho katalogu?

Zadejte základní parametry vašeho vysněného domu a získejte nabídky šité na míru právě Vám.

 ZAVŘÍT

Aby web fungoval jak má - souhlas s cookies

Pro co nejlepší zážitek z prohlížení webu, aby fungovalo vyhledávání, přihlašování, abychom vás neobtěžovali nevhodnou reklamou a pro mnoho dalších věcí využívá tato stránka tzv. cookies, což jsou drobné textové informace dočasně ukládané do paměti vašeho prohlížeče. K jejich použití od vás potřebujeme souhlas. Za jeho udělení v plné šíři, či podrobné nastavení vám velmi děkujeme. Vaše rozhodnutí můžete samozřejmě kdykoliv změnit a přenastavit.

Jaké cookies používáme

Nezbytné

Nezbytné cookies jsou bezpodmínečně nutné k fungování stránek. Bez nich by nefungovaly základní funkcionality, jako např. přihlašování nebo nakupování v e-shopu. Tyto jsou vždy automaticky povolené.

Statistické

Tyto cookies pomáhají s měřením a analýzou návštěvnosti stránek.

sembako4d sembako4d sembako4d balaitoto balaitoto sembako4d sembako4d balaitoto indosattoto bengbeng toto login bengbengtoto login bengbengtoto login bengbengtoto login bengbengtoto login bengbengtoto login bengbengtoto indosattoto indosattoto balaitoto cahayatoto cahayatoto cahayatoto cahayatoto cahayatoto indosattoto indosattoto ohtogel ohtogel ohtogel ohtogel ohtogel ohtogel ohtogel jualtoto mineraltoto

Marketingové

Marketingové cookies pomáhají trackovat uživatele stránek za účelem nabízení cílených reklamních sdělení. Dávají smysl pro obě strany, neboť uživatel stránek obdrží reklamu na produkty, které ho skutečně zajímají, a které např. vyhledával v minulosti, a vydavatelé reklam naopak mohou tyto reklamy cíleně nabídnout.

Přijmout vše Přijmout vybrané Podrobné nastavení