Obytné místnosti

4

Užitná plocha celkem

101,55 m2

Zastavěná plocha

67,6 m2

Konstrukce domu

Dřevostavba

Užitná plocha přízemí:

53,15 m2

Užitná plocha patra:

48,40 m2

Půdorysné rozměry domu:

10,60 x 6,28 m

Sklon střechy:

45°

Počet koupelen:

2

Tvar půdorysu:

Obdélník

Typ střechy:

Sedlová

Provedení fasády:

Omítka, Plech

Styl domu:

Moderní

Doporučená orientace vstupu:

Sever, Západ

Vybavení domu:

Samostatné WC, Samostatná spíž, Samostatná šatna, Pracovna, Pokoj pro hosty, Hobby místnost, Krb, Terasa

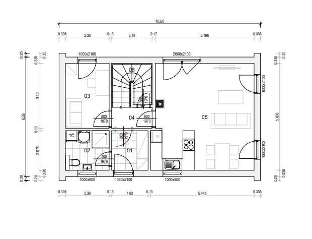
1. NP

01 Zádveří

3,99 m2

02 Koupelna

4,78 m2

03 Pracovna/Pokoj pro hosty/Hobby místnost

7,82 m2

04 Chodba

2,34 m2

05 Obytný prostor s jídelnou a kuch. koutem

29,62 m2

06 Spíž

4,60 m2

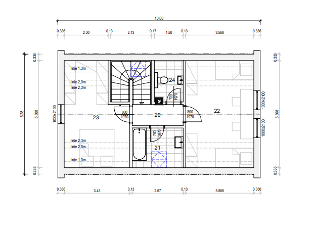
2. NP

20 Chodba

2,94 m2

21 Koupelna

5,55 m2

22 Pokoj

20,01 m2

23 Ložnice

16,64 m2

24 WC

3,26 m2


Cena domu k dokončení

3 913 800

Cena včetně DPH. Cena neobsahuje realizaci základové desky.
Dům k dokončení neobsahuje finální povrchy podlah a stěn (obklady, dlažby, podlahové krytiny, výmalba), zařizovací předměty koupelen a wc, interiérové dveře a zárubně.

Cena domu na klíč

4 677 900

Cena včetně DPH. Cena neobsahuje realizaci základové desky.
Cena dále neobsahuje komínový systém a krbovou vložku, žaluzie, kuchyňskou linku ani žádný jiný nábytek, terasu, okapové chodníky, zpevněné plochy na pozemku, přípojky inženýrských sítí, sadové úpravy, oplocení pozemku.

Popis stavby

Kompaktní, jednoduchý rodinný dům se sedlovou střechou a obytným podkrovím. Dům je vhodný i pro umístění na úzké parcely. Zajímavým architektonickým prvkem je použití falcovaného plechu na části fasády.

Dům je rozdělen na denní a noční čast. Denní část najdeme v přízemí a tvoří ji obývací prostor s krbem, propojený s jídelnou a kuchyňským koutem. Francouzská okna zajišťují v místnosti dostatek denního světla a umožňují výstup na terasu. Prostor pod schodištěm lze využít jako sklad potravin.

V přízemí se dále nachází koupelna se sprchovým koutem a technickým zázemím a menší pokoj, který dle potřeby může sloužit jako pracovna, hobby místnost nebo pokoj pro hosty.

V podkroví je umístěna ložnice s prostorem pro vytvoření šatny a prostorný dětský pokoj. Dále zde najdeme koupelnu s vanou a samostatné WC.

Náš tip

Dům využívá difuzně otevřenou technologii DifuTech®, která udržuje v interiéru příjemné klima po celý rok.
Tepelná izolace zároveň zaručuje pohodlné bydlení s velmi nízkými náklady na vytápění. Zdrojem vytápění je kvalitní a úsporné tepelné čerpadlo vzduch/voda.

Nechcete ztrácet čas procházením našeho katalogu?

Zadejte základní parametry vašeho vysněného domu a získejte nabídky šité na míru právě Vám.

 ZAVŘÍT

Aby web fungoval jak má - souhlas s cookies

Pro co nejlepší zážitek z prohlížení webu, aby fungovalo vyhledávání, přihlašování, abychom vás neobtěžovali nevhodnou reklamou a pro mnoho dalších věcí využívá tato stránka tzv. cookies, což jsou drobné textové informace dočasně ukládané do paměti vašeho prohlížeče. K jejich použití od vás potřebujeme souhlas. Za jeho udělení v plné šíři, či podrobné nastavení vám velmi děkujeme. Vaše rozhodnutí můžete samozřejmě kdykoliv změnit a přenastavit.

Jaké cookies používáme

Nezbytné

Nezbytné cookies jsou bezpodmínečně nutné k fungování stránek. Bez nich by nefungovaly základní funkcionality, jako např. přihlašování nebo nakupování v e-shopu. Tyto jsou vždy automaticky povolené.

Statistické

Tyto cookies pomáhají s měřením a analýzou návštěvnosti stránek.

sembako4d sembako4d sembako4d balaitoto balaitoto sembako4d sembako4d balaitoto indosattoto bengbeng toto login bengbengtoto login bengbengtoto login bengbengtoto login bengbengtoto login bengbengtoto login bengbengtoto indosattoto indosattoto balaitoto cahayatoto cahayatoto cahayatoto cahayatoto cahayatoto indosattoto indosattoto ohtogel ohtogel ohtogel ohtogel ohtogel ohtogel ohtogel jualtoto mineraltoto

Marketingové

Marketingové cookies pomáhají trackovat uživatele stránek za účelem nabízení cílených reklamních sdělení. Dávají smysl pro obě strany, neboť uživatel stránek obdrží reklamu na produkty, které ho skutečně zajímají, a které např. vyhledával v minulosti, a vydavatelé reklam naopak mohou tyto reklamy cíleně nabídnout.

Přijmout vše Přijmout vybrané Podrobné nastavení