Nechcete ztrácet čas procházením našeho katalogu?
Zadejte základní parametry vašeho vysněného domu a získejte nabídky šité na míru právě Vám.
VÝBĚR DOMU
Obytné místnosti
3
Užitná plocha celkem
75 m2
Zastavěná plocha
90 m2
Konstrukce domu
Užitná plocha přízemí:
75 m2
Půdorysné rozměry domu:
7,50 x 12 m
Sklon střechy:
22°
Počet koupelen:
1
Tvar půdorysu:
Obdélník
Typ střechy:
Sedlová
Provedení fasády:
Omítka
Styl domu:
Tradiční
Doporučená orientace vstupu:
Sever, Západ
Vybavení domu:
Samostatné WC, Krb, Terasa
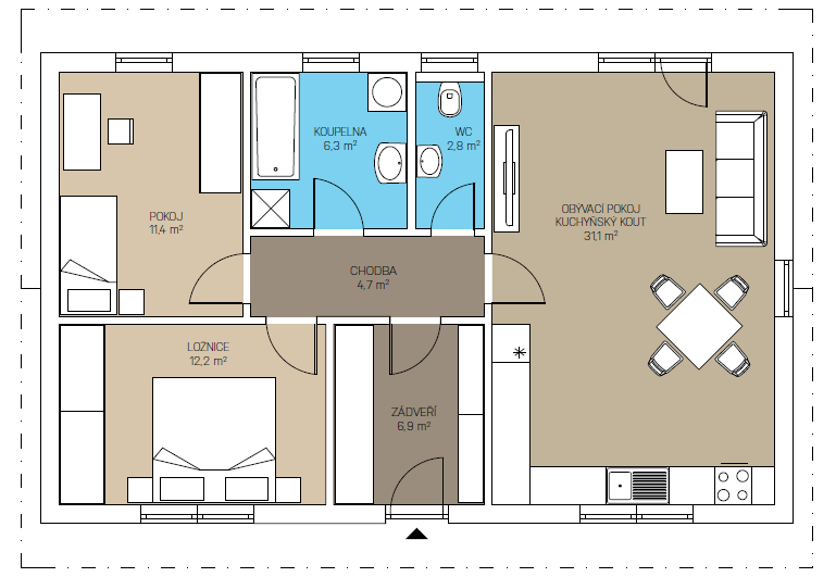
Obytný prostor s jídelnou a kuch. koutem
31,1 m2
Chodba
4,7 m2
Ložnice
12,2 m2
Pokoj
11,4 m2
Koupelna
6,3 m2
WC
2,8 m2
Zádveří
6,9 m2
Cena včetně DPH. Cena dále zahrnuje projektovou dokumentaci, komínový systém, bleskosvod, tepelné čerpadlo.
Cena neobsahuje realizaci základové desky.
Dům k dokončení neobsahuje finální povrchy podlah a stěn (obklady, dlažby, podlahové krytiny), zařizovací předměty koupelen a wc, interiérové dveře a zárubně, krbová kamna nebo krbovou vložku.
Cena včetně DPH. Cena dále zahrnuje projektovou dokumentaci, komínový systém, bleskosvod, tepelné čerpadlo.
Cena neobsahuje realizaci základové desky.
Cena dále neobsahuje krbová kamna nebo krbovou vložku, žaluzie, kuchyňskou linku ani žádný jiný nábytek, terasu, okapové chodníky, zpevněné plochy na pozemku, přípojky inženýrských sítí, sadové úpravy, oplocení pozemku.
Jednoduchý, 3pokojový bungalov klasického tvaru se sedlovou střechou, který je vhodný i pro umístění na úzké parcely.
Srdcem domu je obytný prostor, propojený s jídelnou a kuchyňským koutem. Velké francouzské okno zajišťuje dokonalé prosvětlení interiéru a jeho přirozené propojení s terasou.
V domě je dále umístěna ložnice rodičů a dětský pokoj. Příslušenství doplňuje samostatné wc a prostorná koupelna s vanou.
Úložné prostory zajišťují vestavěné skříně, navržené v obou pokojích i v zádveří.
Difuzně otevřený konstrukční systém - dřevostavba "dýchá".
Komplexní certifikovaný zateplovací systém od společnosti STO (ETICS STO Therm Wood) zaručuje minimální náklady na vytápění a zároveň zabraňuje přehřívání domu v letním období.
Zdrojem tepla je tepelné čerpadlo.
											Počet obytných místností: 4
											Užitná plocha: 108,7 m2
											Cena domu na klíč: 4 545 290 Kč
										
											Počet obytných místností: 4
											Užitná plocha: 112,8 m2
											Cena domu na klíč: 4 716 732 Kč
										
											Počet obytných místností: 4
											Užitná plocha: 98,9 m2
											Cena domu na klíč: 4 138 783 Kč
										
											Počet obytných místností: 4
											Užitná plocha: 115 m2
											Cena domu na klíč: 4 808 725 Kč
										
Nechcete ztrácet čas procházením našeho katalogu?
Zadejte základní parametry vašeho vysněného domu a získejte nabídky šité na míru právě Vám.
 
	Aby web fungoval jak má - souhlas s cookies
Pro co nejlepší zážitek z prohlížení webu, aby fungovalo vyhledávání, přihlašování, abychom vás neobtěžovali nevhodnou reklamou a pro mnoho dalších věcí využívá tato stránka tzv. cookies, což jsou drobné textové informace dočasně ukládané do paměti vašeho prohlížeče. K jejich použití od vás potřebujeme souhlas. Za jeho udělení v plné šíři, či podrobné nastavení vám velmi děkujeme. Vaše rozhodnutí můžete samozřejmě kdykoliv změnit a přenastavit.
Jaké cookies používáme
Nezbytné cookies jsou bezpodmínečně nutné k fungování stránek. Bez nich by nefungovaly základní funkcionality, jako např. přihlašování nebo nakupování v e-shopu. Tyto jsou vždy automaticky povolené.
Marketingové cookies pomáhají trackovat uživatele stránek za účelem nabízení cílených reklamních sdělení. Dávají smysl pro obě strany, neboť uživatel stránek obdrží reklamu na produkty, které ho skutečně zajímají, a které např. vyhledával v minulosti, a vydavatelé reklam naopak mohou tyto reklamy cíleně nabídnout.