Obytné místnosti

4

Užitná plocha celkem

95,2 m2

Zastavěná plocha

124 m2

Konstrukce domu

Modulový

Užitná plocha přízemí:

95,2 m2

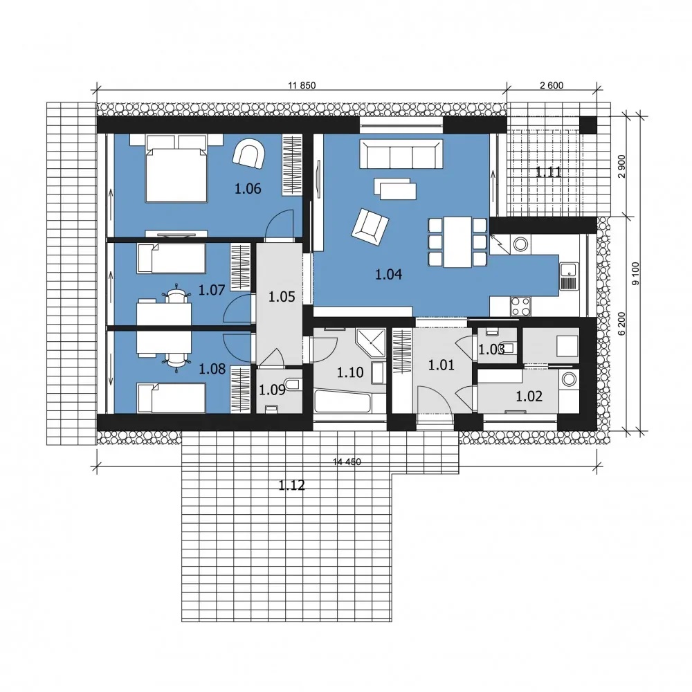
Půdorysné rozměry domu:

14,45 x 9,1 m

Obestavěný prostor:

416,1 m3

Výška hřebenu střechy:

3,8 m

Min. rozměr pozemku:

21,5 x 18,6 m

Počet koupelen:

1

Tvar půdorysu:

Obdélník

Typ střechy:

Rovná

Provedení fasády:

Dřevěný obklad

Styl domu:

Moderní, Přírodní

Doporučená orientace vstupu:

Sever

Vybavení domu:

Samostatné WC, Samostatná šatna, Terasa

1. NP

1.01 zádveří

6,2 m2

1.02 šatna/tech. místnost

5,8 m2

1.03 wc

1,2 m2

1.04 obývací prostor s jídelnou a kuch. koutem

33,7 m2

1.05 chodba

5,2 m2

1.06 ložnice

16,9 m2

1.07 pokoj

10 m2

1.08 pokoj

10 m2

1.09 wc

1,6 m2

1.10 koupelna

5,3 m2


Cena domu k dokončení

2 150 000

Cena včetně DPH. Cena zahrnuje projektovou dokumentaci.
Cena nezahrnuje založení domu, komínový systém a krbovou vložku.
Dům k dokončení neobsahuje finální povrchy podlah a stěn (obklady, dlažby, podlahové krytiny), zařizovací předměty koupelen a wc, interiérové dveře a zárubně.

Cena domu na klíč

2 650 000

Cena včetně DPH. Cena zahrnuje projektovou dokumentaci.
Cena neobsahuje založení domu, komínový systém a krbovou vložku, žaluzie, kuchyňskou linku ani žádný jiný nábytek, terasu, zpevněné plochy na pozemku, přípojky inženýrských sítí, sadové úpravy, oplocení pozemku.

Popis stavby

Jednoduchý, moderní bungalov s plochou střechou. Dřevěný obklad použitý na fasádě dodává domu atraktivní vzhled stejně jako kovové, posuvné stínící panely. Praktickým prvkem domu je rohová terasa, krytá přesahem střechy. Dům je ideální pro pohodlné bydlení 4členné rodiny.

Interiér domu je členěn na společenskou a privátní část. Společenskou tvoří velkorysý obytný prostor, propojený s jídelnou a kuchyňským koutem. Bohaté prosklení zajišťuje v interiéru dostatek denního světla po celý den.

V privátní zóně je umístěna ložnice rodičů, 2 dětské pokoje a prostorná koupelna s vanou i sprchovým koutem. Nechybí ani samostatná toaleta. Všechny pokoje mají velká francouzská okna a díky nim přímý výstup na terasu.

Ze zádveří je přístupná technická místnost se šatnou a další toaleta.

Dům se nejlépe hodí na rovinaté nebo mírně svažité pozemky.

Náš tip

MODULOVÉ DOMY - konstrukční řešení využívá ocelovou konstrukci domu, stěny jsou tvořeny sendvičovými panely.
- rychlá výstavba
- nekonečné množství variací
- dům možno dodat i v pasivním standardu
- možnost stavbu demontovat a přemístit

Nechcete ztrácet čas procházením našeho katalogu?

Zadejte základní parametry vašeho vysněného domu a získejte nabídky šité na míru právě Vám.

 ZAVŘÍT

Aby web fungoval jak má - souhlas s cookies

Pro co nejlepší zážitek z prohlížení webu, aby fungovalo vyhledávání, přihlašování, abychom vás neobtěžovali nevhodnou reklamou a pro mnoho dalších věcí využívá tato stránka tzv. cookies, což jsou drobné textové informace dočasně ukládané do paměti vašeho prohlížeče. K jejich použití od vás potřebujeme souhlas. Za jeho udělení v plné šíři, či podrobné nastavení vám velmi děkujeme. Vaše rozhodnutí můžete samozřejmě kdykoliv změnit a přenastavit.

Jaké cookies používáme

Nezbytné

Nezbytné cookies jsou bezpodmínečně nutné k fungování stránek. Bez nich by nefungovaly základní funkcionality, jako např. přihlašování nebo nakupování v e-shopu. Tyto jsou vždy automaticky povolené.

Statistické

Tyto cookies pomáhají s měřením a analýzou návštěvnosti stránek.

sembako4d sembako4d sembako4d balaitoto balaitoto sembako4d sembako4d balaitoto indosattoto bengbeng toto login bengbengtoto login bengbengtoto login bengbengtoto login bengbengtoto login bengbengtoto login bengbengtoto indosattoto indosattoto balaitoto cahayatoto cahayatoto cahayatoto cahayatoto cahayatoto indosattoto indosattoto ohtogel ohtogel ohtogel ohtogel ohtogel ohtogel ohtogel jualtoto mineraltoto

Marketingové

Marketingové cookies pomáhají trackovat uživatele stránek za účelem nabízení cílených reklamních sdělení. Dávají smysl pro obě strany, neboť uživatel stránek obdrží reklamu na produkty, které ho skutečně zajímají, a které např. vyhledával v minulosti, a vydavatelé reklam naopak mohou tyto reklamy cíleně nabídnout.

Přijmout vše Přijmout vybrané Podrobné nastavení