Obytné místnosti

3

Užitná plocha celkem

103,9 m2

Zastavěná plocha

162,8 m2

Konstrukce domu

Modulový

Užitná plocha přízemí:

103,9 m2

Půdorysné rozměry domu:

17,7 x 9,2 m

Obestavěný prostor:

463,4 m3

Výška hřebenu střechy:

4 m

Min. rozměr pozemku:

27,2 x 17,2 m

Počet koupelen:

2

Tvar půdorysu:

Obdélník

Typ střechy:

Rovná

Provedení fasády:

Omítka

Styl domu:

Moderní

Doporučená orientace vstupu:

Západ

Vybavení domu:

Samostatná šatna, Terasa

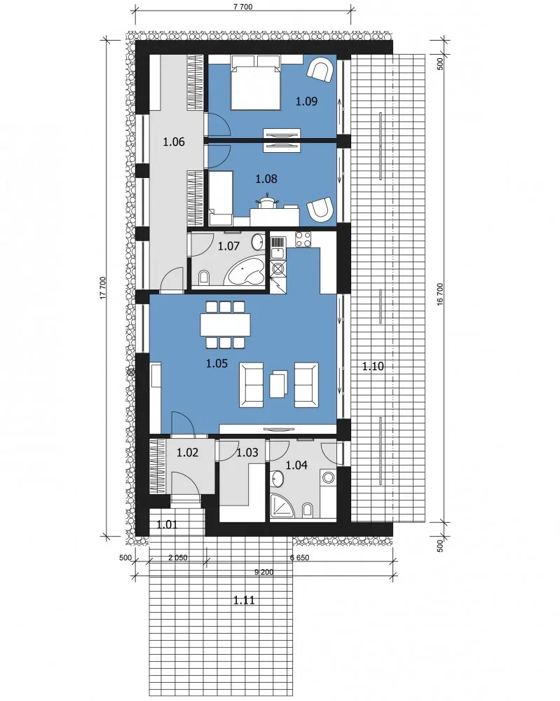
1. NP

1.02 zádveří

4,7 m2

1.03 šatna

4,9 m2

1.04 koupelna/tech. místnost

7,2 m2

1.05 obývací prostor s jídelnou a kuch. koutem

38,9 m2

1.06 chodba/šatna

15 m2

1.07 koupelna

5,6 m2

1.08 pokoj

13,8 m2

1.09 ložnice

13,8 m2


Cena domu k dokončení

2 250 000

Cena včetně DPH. Cena zahrnuje projektovou dokumentaci.
Cena nezahrnuje založení domu, komínový systém a krbovou vložku.
Dům k dokončení neobsahuje finální povrchy podlah a stěn (obklady, dlažby, podlahové krytiny), zařizovací předměty koupelen a wc, interiérové dveře a zárubně.

Cena domu na klíč

2 880 000

Cena včetně DPH. Cena zahrnuje projektovou dokumentaci.
Cena neobsahuje založení domu, komínový systém a krbovou vložku, žaluzie, kuchyňskou linku ani žádný jiný nábytek, terasu, zpevněné plochy na pozemku, přípojky inženýrských sítí, sadové úpravy, oplocení pozemku.

Popis stavby

Moderní, kompaktní rodinný dům typu bungalov s plochou střechou a bohatým prosklením. Dominantním architektonickým prvkem je velká terasa při jedné straně domu, která je kryta přesahem hmoty domu a zastíněna posuvnými panely s lamelami. Všechny obytné místnosti mají výstup na terasu a jsou orientovány do zahrady.

Interiér je členěn na společenskou a privátní část. Srdcem společenské části je velkorysý obytný prostor, propojený s jídelnou a kuchyňským koutem. Prosklená stěna zaručuje dokonalé prosvětlení interiéru a jeho přirozené propojení s terasou.

V privátní části je umístěna koupelna s vanou a 2 pohodlné ložnice s francouzskými okny. Chodba u ložnic je řešena v kombinaci se šatnou.

Ze zádveří je přístupná další praktická šatna a koupelna s technickou místností.

Náš tip

MODULOVÉ DOMY - konstrukční řešení využívá ocelovou konstrukci domu, stěny jsou tvořeny sendvičovými panely.
- rychlá výstavba
- nekonečné množství variací
- dům možno dodat i v pasivním standardu
- možnost stavbu demontovat a přemístit

Nechcete ztrácet čas procházením našeho katalogu?

Zadejte základní parametry vašeho vysněného domu a získejte nabídky šité na míru právě Vám.

 ZAVŘÍT

Aby web fungoval jak má - souhlas s cookies

Pro co nejlepší zážitek z prohlížení webu, aby fungovalo vyhledávání, přihlašování, abychom vás neobtěžovali nevhodnou reklamou a pro mnoho dalších věcí využívá tato stránka tzv. cookies, což jsou drobné textové informace dočasně ukládané do paměti vašeho prohlížeče. K jejich použití od vás potřebujeme souhlas. Za jeho udělení v plné šíři, či podrobné nastavení vám velmi děkujeme. Vaše rozhodnutí můžete samozřejmě kdykoliv změnit a přenastavit.

Jaké cookies používáme

Nezbytné

Nezbytné cookies jsou bezpodmínečně nutné k fungování stránek. Bez nich by nefungovaly základní funkcionality, jako např. přihlašování nebo nakupování v e-shopu. Tyto jsou vždy automaticky povolené.

Statistické

Tyto cookies pomáhají s měřením a analýzou návštěvnosti stránek.

sembako4d sembako4d sembako4d balaitoto balaitoto sembako4d sembako4d balaitoto indosattoto bengbeng toto login bengbengtoto login bengbengtoto login bengbengtoto login bengbengtoto login bengbengtoto login bengbengtoto indosattoto indosattoto balaitoto cahayatoto cahayatoto cahayatoto cahayatoto cahayatoto indosattoto indosattoto ohtogel ohtogel ohtogel ohtogel ohtogel ohtogel ohtogel jualtoto mineraltoto

Marketingové

Marketingové cookies pomáhají trackovat uživatele stránek za účelem nabízení cílených reklamních sdělení. Dávají smysl pro obě strany, neboť uživatel stránek obdrží reklamu na produkty, které ho skutečně zajímají, a které např. vyhledával v minulosti, a vydavatelé reklam naopak mohou tyto reklamy cíleně nabídnout.

Přijmout vše Přijmout vybrané Podrobné nastavení