Obytné místnosti

4

Užitná plocha celkem

77,9 m2

Zastavěná plocha

95,95 m2

Konstrukce domu

Modulový

Užitná plocha přízemí:

77,9 m2

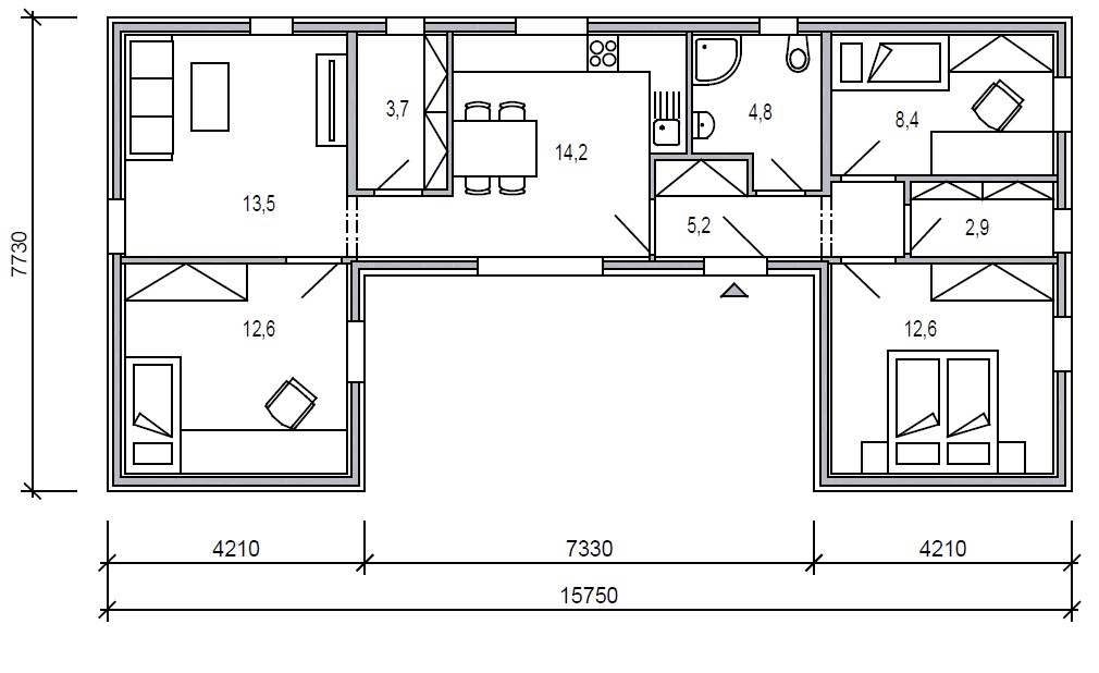
Půdorysné rozměry domu:

7,73 x 15,75 m

Počet koupelen:

1

Tvar půdorysu:

U

Typ střechy:

Rovná

Provedení fasády:

Omítka, Dřevěný obklad

Styl domu:

Moderní, Přírodní

Doporučená orientace vstupu:

Jih, Západ

Vybavení domu:

Samostatná spíž, Samostatná šatna, Pracovna, Pokoj pro hosty, Hobby místnost, Terasa

1. NP

Obývací prostor

13,5 m2

Kuchyně s jídelnou

14,2 m2

Spíž/Komora

3,7 m2

Pracovna/Pokoj pro hosty/Hobby místnost

12,6 m2

Ložnice

12,6 m2

Pokoj

8,4 m2

Šatna/Komora

2,9 m2

Koupelna

4,8 m2

Zádveří

5,2 m2


Cena domu na klíč

3 790 000

Cena včetně DPH. Cena zahrnuje projektovou dokumentaci.
Cena neobsahuje založení domu, komínový systém a krbovou vložku, žaluzie, kuchyňskou linku ani žádný jiný nábytek, terasu, zpevněné plochy na pozemku, přípojky inženýrských sítí, sadové úpravy, oplocení pozemku.

Popis stavby

Prostorný, moderní, 4pokojový dům na půdorysu ve tvaru U, což vytváří útulné atrium, zajišťující dostatečné soukromí.

Srdcem domu je obývací prostor navazující na velkorysou kuchyni s jídelnou. Nechybí ani spíž pro pohodlné skladování potravin. Velká francouzská okna zajišťují dokonalé prosvětlení interiéru.

V privátní části domu je navržena prostorná ložnice a dětský pokoj. Dále je zde umístěna praktická šatna a koupelna se sprchovým koutem.

V domě najdeme další pokoj, který podle potřeby může sloužit jako pracovna, pokoj pro hosty nebo hobby místnost.

V zádveří je navržen prostor pro vestavěnou skříň. Dům je možný také v provedení se zrcadlově otočeným půdorysem.

Náš tip

MODULOVÉ DOMY - konstrukční řešení využívá ocelovou konstrukci domu, stěny jsou tvořeny sendvičovými panely.
- rychlá výstavba
- nekonečné množství variací
- dům možno dodat i v pasivním standardu
- možnost stavbu demontovat a přemístit

Nechcete ztrácet čas procházením našeho katalogu?

Zadejte základní parametry vašeho vysněného domu a získejte nabídky šité na míru právě Vám.

 ZAVŘÍT

Aby web fungoval jak má - souhlas s cookies

Pro co nejlepší zážitek z prohlížení webu, aby fungovalo vyhledávání, přihlašování, abychom vás neobtěžovali nevhodnou reklamou a pro mnoho dalších věcí využívá tato stránka tzv. cookies, což jsou drobné textové informace dočasně ukládané do paměti vašeho prohlížeče. K jejich použití od vás potřebujeme souhlas. Za jeho udělení v plné šíři, či podrobné nastavení vám velmi děkujeme. Vaše rozhodnutí můžete samozřejmě kdykoliv změnit a přenastavit.

Jaké cookies používáme

Nezbytné

Nezbytné cookies jsou bezpodmínečně nutné k fungování stránek. Bez nich by nefungovaly základní funkcionality, jako např. přihlašování nebo nakupování v e-shopu. Tyto jsou vždy automaticky povolené.

Statistické

Tyto cookies pomáhají s měřením a analýzou návštěvnosti stránek.

sembako4d sembako4d sembako4d balaitoto balaitoto sembako4d sembako4d balaitoto indosattoto bengbeng toto login bengbengtoto login bengbengtoto login bengbengtoto login bengbengtoto login bengbengtoto login bengbengtoto indosattoto indosattoto balaitoto cahayatoto cahayatoto cahayatoto cahayatoto cahayatoto indosattoto indosattoto ohtogel ohtogel ohtogel ohtogel ohtogel ohtogel ohtogel jualtoto mineraltoto

Marketingové

Marketingové cookies pomáhají trackovat uživatele stránek za účelem nabízení cílených reklamních sdělení. Dávají smysl pro obě strany, neboť uživatel stránek obdrží reklamu na produkty, které ho skutečně zajímají, a které např. vyhledával v minulosti, a vydavatelé reklam naopak mohou tyto reklamy cíleně nabídnout.

Přijmout vše Přijmout vybrané Podrobné nastavení