Obytné místnosti

2

Užitná plocha celkem

25,1 m2

Zastavěná plocha

27 m2

Konstrukce domu

Modulový

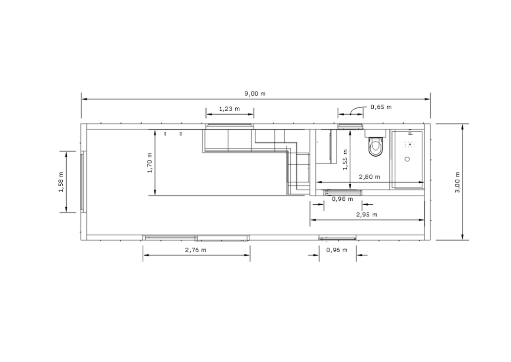
Užitná plocha přízemí:

25,1 m2

Půdorysné rozměry domu:

3 x 9 m

Počet koupelen:

1

Tvar půdorysu:

Obdélník

Typ střechy:

Rovná

Provedení fasády:

Dřevěný obklad, Plech

Styl domu:

Moderní

Doporučená orientace vstupu:

Jih, Západ, Východ

Vybavení domu:

1. NP

Obytný prostor s kuch. koutem

16,40 m2

Koupelna

2,40 m2

Ložnice

6,30 m2


Cena domu na klíč

1 268 000

Cena včetně DPH. Cena zahrnuje projektovou dokumentaci a kompletně vybavenou kuchyňskou linku.
Cena neobsahuje založení domu, komínový systém a krbovou vložku, žaluzie, nábytek, terasu, zpevněné plochy na pozemku, přípojky inženýrských sítí, sadové úpravy, oplocení pozemku.

Popis stavby

Moderní, minimalistický modulový dům, ideální pro využití jako rekreační objekt, ubytovací zařízení nebo komerční provozovna, může ale sloužit i k trvalému bydlení.

Na ploše cca 25 m2 najdete vše potřebné k pohodlnému bydlení. Obytný prostor je prosvětlen velkými okny. Koupelna je vybavena sprchovým koutem a toaletou. V miniložnici je umístěna manželská postel.

Dům je dodáván včetně kuchyně kompletně vybavené kvalitními spotřebiči od renomovaných výrobců BOSCH a Whirlpool.

Všechny stěny, střecha a podlaha jsou izolovány PUR pěnou o celkové tloušťce 12 cm, což dům činí extrémně energeticky úsporným.

Dům je možný také v provedení 1+kk.

Náš tip

MODULOVÉ DOMY - konstrukční řešení využívá ocelovou konstrukci domu, stěny jsou tvořeny sendvičovými panely.
- rychlá výstavba
- nekonečné množství variací
- dům možno dodat i v pasivním standardu
- možnost stavbu demontovat a přemístit

Nechcete ztrácet čas procházením našeho katalogu?

Zadejte základní parametry vašeho vysněného domu a získejte nabídky šité na míru právě Vám.

 ZAVŘÍT

Aby web fungoval jak má - souhlas s cookies

Pro co nejlepší zážitek z prohlížení webu, aby fungovalo vyhledávání, přihlašování, abychom vás neobtěžovali nevhodnou reklamou a pro mnoho dalších věcí využívá tato stránka tzv. cookies, což jsou drobné textové informace dočasně ukládané do paměti vašeho prohlížeče. K jejich použití od vás potřebujeme souhlas. Za jeho udělení v plné šíři, či podrobné nastavení vám velmi děkujeme. Vaše rozhodnutí můžete samozřejmě kdykoliv změnit a přenastavit.

Jaké cookies používáme

Nezbytné

Nezbytné cookies jsou bezpodmínečně nutné k fungování stránek. Bez nich by nefungovaly základní funkcionality, jako např. přihlašování nebo nakupování v e-shopu. Tyto jsou vždy automaticky povolené.

Statistické

Tyto cookies pomáhají s měřením a analýzou návštěvnosti stránek.

sembako4d sembako4d sembako4d balaitoto balaitoto sembako4d sembako4d balaitoto indosattoto bengbeng toto login bengbengtoto login bengbengtoto login bengbengtoto login bengbengtoto login bengbengtoto login bengbengtoto indosattoto indosattoto balaitoto cahayatoto cahayatoto cahayatoto cahayatoto cahayatoto indosattoto indosattoto ohtogel ohtogel ohtogel ohtogel ohtogel ohtogel ohtogel jualtoto mineraltoto

Marketingové

Marketingové cookies pomáhají trackovat uživatele stránek za účelem nabízení cílených reklamních sdělení. Dávají smysl pro obě strany, neboť uživatel stránek obdrží reklamu na produkty, které ho skutečně zajímají, a které např. vyhledával v minulosti, a vydavatelé reklam naopak mohou tyto reklamy cíleně nabídnout.

Přijmout vše Přijmout vybrané Podrobné nastavení