Obytné místnosti

Užitná plocha celkem

m2

Zastavěná plocha

m2

Konstrukce domu

Zděný

Počet koupelen:

Pasivní dům:

Tvar půdorysu:

Typ střechy:

Provedení fasády:

Styl domu:

Doporučená orientace vstupu:

Vybavení domu:

1. NP

m2


Popis stavby

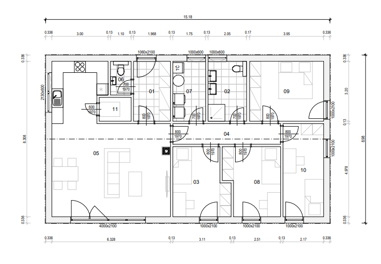
Jednoduchý, 5pokojový bungalov klasického tvaru se sedlovou střechou. Moderní vzhled domu zajišťuje dřevěný obklad na fasádě, který může být využit buď částečně nebo může tvořit i celou fasádu domu.

Dům je rozdělen na společenskou a privátní část. Společenskou tvoří obytný prostor s krbem, propojený s jídelnou a kuchyňským koutem, kde je navržena spíž pro pohodlné skladování potravin. Velké francouzské okno zajišťuje dostatečné prosvětlení interiéru a zároveň ho přirozeně propojuje s terasou.

Privátní zóna je tvořena koupelnou, ložnicí rodičů a 3 dětskými pokoji. Všechny pokoje mají díky francouzským oknům výstup na terasu nebo do zahrady a zároveň je v každém z nich navržen prostor pro instalaci vestavěných skříní.

Náš tip

Dům využívá difuzně otevřenou technologii DifuTech®, která udržuje v interiéru příjemné klima po celý rok.
Tepelná izolace zároveň zaručuje pohodlné bydlení s velmi nízkými náklady na vytápění. Zdrojem vytápění je kvalitní a úsporné tepelné čerpadlo vzduch/voda.

Nechcete ztrácet čas procházením našeho katalogu?

Zadejte základní parametry vašeho vysněného domu a získejte nabídky šité na míru právě Vám.

 ZAVŘÍT

Aby web fungoval jak má - souhlas s cookies

Pro co nejlepší zážitek z prohlížení webu, aby fungovalo vyhledávání, přihlašování, abychom vás neobtěžovali nevhodnou reklamou a pro mnoho dalších věcí využívá tato stránka tzv. cookies, což jsou drobné textové informace dočasně ukládané do paměti vašeho prohlížeče. K jejich použití od vás potřebujeme souhlas. Za jeho udělení v plné šíři, či podrobné nastavení vám velmi děkujeme. Vaše rozhodnutí můžete samozřejmě kdykoliv změnit a přenastavit.

Jaké cookies používáme

Nezbytné

Nezbytné cookies jsou bezpodmínečně nutné k fungování stránek. Bez nich by nefungovaly základní funkcionality, jako např. přihlašování nebo nakupování v e-shopu. Tyto jsou vždy automaticky povolené.

Statistické

Tyto cookies pomáhají s měřením a analýzou návštěvnosti stránek.

sembako4d sembako4d sembako4d balaitoto balaitoto sembako4d sembako4d balaitoto indosattoto bengbeng toto login bengbengtoto login bengbengtoto login bengbengtoto login bengbengtoto login bengbengtoto login bengbengtoto indosattoto indosattoto balaitoto cahayatoto cahayatoto cahayatoto cahayatoto cahayatoto indosattoto indosattoto ohtogel ohtogel ohtogel ohtogel ohtogel ohtogel ohtogel jualtoto mineraltoto

Marketingové

Marketingové cookies pomáhají trackovat uživatele stránek za účelem nabízení cílených reklamních sdělení. Dávají smysl pro obě strany, neboť uživatel stránek obdrží reklamu na produkty, které ho skutečně zajímají, a které např. vyhledával v minulosti, a vydavatelé reklam naopak mohou tyto reklamy cíleně nabídnout.

Přijmout vše Přijmout vybrané Podrobné nastavení