Obytné místnosti

4

Užitná plocha celkem

96,4 m2

Zastavěná plocha

133 m2

Konstrukce domu

Zděný

Užitná plocha přízemí:

96,4 m2

Půdorysné rozměry domu:

16,28 x 8,28 m

Výška hřebenu střechy:

4,595 m

Sklon střechy:

19°

Min. rozměr pozemku:

min. šířka pozemku 15 m

Počet parkovacích stání:

možnost připojit zastřešené parkovací stání

Počet koupelen:

1

Tvar půdorysu:

Obdélník

Typ střechy:

Sedlová

Provedení fasády:

Omítka

Styl domu:

Moderní, Tradiční

Doporučená orientace vstupu:

Sever, Západ, Východ

Vybavení domu:

Samostatné WC, Samostatná spíž, Samostatná šatna, Krb, Terasa

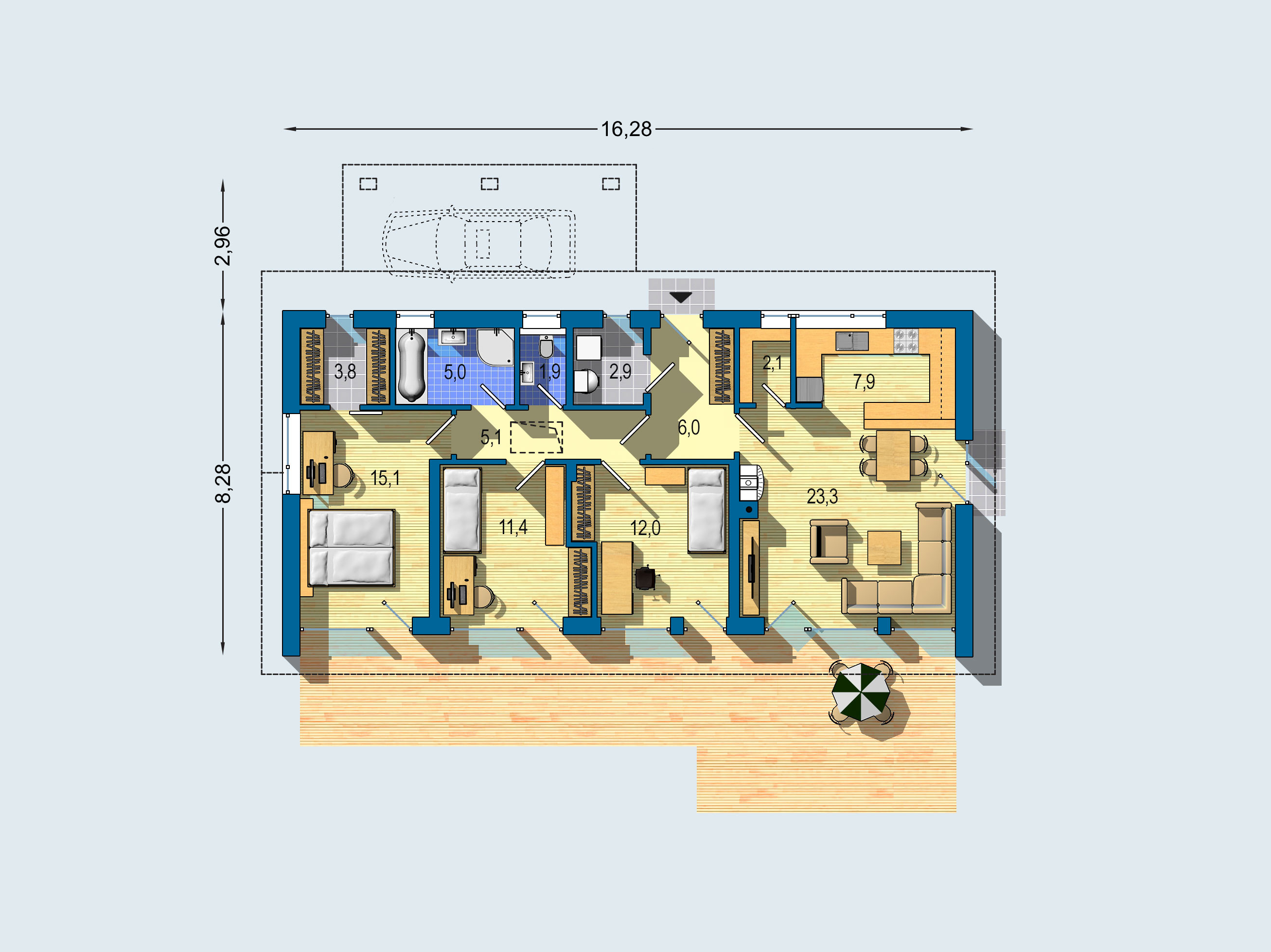
1. NP

Obývací prostor s jídelnou

23,3 m2

Kuchyňský kout

7,9 m2

Spíž/Sklad

2,1 m2

Chodba

5,1 m2

Pokoj

12 m2

Pokoj

11,4 m2

Ložnice

15,1 m2

Šatna

3,8 m2

Koupelna

5 m2

WC

1,9 m2

Tech. místnost

2,9 m2

Zádveří

6 m2


Cena projektové dokumentace

33 980

Cena je včetně DPH. Cena kompletní projektové dokumentace včetně všech profesí, statiky, výkazu výměr a rekapitulace rozpočtu. Standardní dodací lhůta projektové dokumentace je 15 pracovních dnů!

Cena domu na klíč

3 491 000

Cena včetně DPH. Orientační cena domu na klíč vypočtená na základě průměrných cen při optimalizovaném standardu použitých materiálů a technologií v poměru cena/výkon. Cena obsahuje základovou desku. Cena neobsahuje terasu, krbovou vložku, žaluzie, systém řízeného větrání s rekuperací, kuchyňskou linku ani žádný jiný nábytek, oplocení pozemku, zpevněné plochy na pozemku, sadové úpravy.

Popis stavby

Praktický 4pokojový bungalov moderního vzhledu s efektivním využitím půdorysu. Všechny obytné místnosti jsou orientovány do zahrady a díky francouzským oknům mají výstup na terasu. Výhodou domu je jeho jednoduchá konstrukce bez pevného stropu se sádrokartonovým podhledem, což zajišťuje rychlou výstavbu.

Obytný prostor je propojen s jídelnou a kuchyňským koutem a díky velkým proskleným plochám francouzských oken také s terasou a zahradou. Praktickým prvkem kuchyně je samostatná spíž pro pohodlné uskladnění potravin.

V privátní části domu, oddělené od té společenské, najdeme 3 pohodlné pokoje, přičemž ložnice rodičů má vlastní šatnu. Nadstandardně velká koupelna nabízí vanu i sprchový kout.

Dům má dostatek úložných a skladovacích prostor jak ve vestavěných skříních, tak i v části podkroví, které je přístupné skládacím schodištěm a je vhodné zejména k ukládání sezónních věcí.

K domu je možné připojit zastřešené parkovací stání (není součástí projektové dokumentace).

Náš tip

Dům je vybaven moderními technologiemi. Větrání je navrženo pomocí rekuperační jednotky. Zdrojem vytápění je tepelné čerpadlo nebo plynový kotel ve spojení s podlahovým vytápěním.
Projekt v zrcadlovém obraze je dodáván za stejnou cenu jako projekt původní!

Nechcete ztrácet čas procházením našeho katalogu?

Zadejte základní parametry vašeho vysněného domu a získejte nabídky šité na míru právě Vám.

 ZAVŘÍT

Aby web fungoval jak má - souhlas s cookies

Pro co nejlepší zážitek z prohlížení webu, aby fungovalo vyhledávání, přihlašování, abychom vás neobtěžovali nevhodnou reklamou a pro mnoho dalších věcí využívá tato stránka tzv. cookies, což jsou drobné textové informace dočasně ukládané do paměti vašeho prohlížeče. K jejich použití od vás potřebujeme souhlas. Za jeho udělení v plné šíři, či podrobné nastavení vám velmi děkujeme. Vaše rozhodnutí můžete samozřejmě kdykoliv změnit a přenastavit.

Jaké cookies používáme

Nezbytné

Nezbytné cookies jsou bezpodmínečně nutné k fungování stránek. Bez nich by nefungovaly základní funkcionality, jako např. přihlašování nebo nakupování v e-shopu. Tyto jsou vždy automaticky povolené.

Statistické

Tyto cookies pomáhají s měřením a analýzou návštěvnosti stránek.

sembako4d sembako4d sembako4d balaitoto balaitoto sembako4d sembako4d balaitoto indosattoto bengbeng toto login bengbengtoto login bengbengtoto login bengbengtoto login bengbengtoto login bengbengtoto login bengbengtoto indosattoto indosattoto balaitoto cahayatoto cahayatoto cahayatoto cahayatoto cahayatoto indosattoto indosattoto ohtogel ohtogel ohtogel ohtogel ohtogel ohtogel ohtogel jualtoto mineraltoto

Marketingové

Marketingové cookies pomáhají trackovat uživatele stránek za účelem nabízení cílených reklamních sdělení. Dávají smysl pro obě strany, neboť uživatel stránek obdrží reklamu na produkty, které ho skutečně zajímají, a které např. vyhledával v minulosti, a vydavatelé reklam naopak mohou tyto reklamy cíleně nabídnout.

Přijmout vše Přijmout vybrané Podrobné nastavení