Nechcete ztrácet čas procházením našeho katalogu?
Zadejte základní parametry vašeho vysněného domu a získejte nabídky šité na míru právě Vám.
VÝBĚR DOMU
Dodavatelem projektu je společnost
.
Její obchodní zástupce Vás bude kontaktovat v nejbližším možném termínu.
Děkujeme za poptávku.
Mám zájem o více informací k domu
Dům 220.
Prosím, kontaktujte mě.
* Tento údaj je povinný
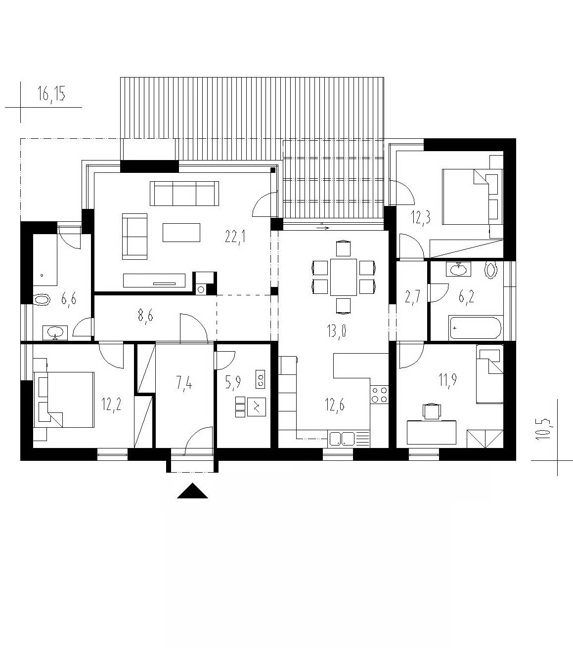
Obytné místnosti
4
Užitná plocha celkem
122 m2
Zastavěná plocha
150 m2
Konstrukce domu
Užitná plocha přízemí:
122 m2
Půdorysné rozměry domu:
16,15 x 10,5 m
Výška hřebenu střechy:
3,6 m
Min. rozměr pozemku:
20 x 17 m
Počet koupelen:
2
Tvar půdorysu:
Obdélník
Typ střechy:
Rovná
Provedení fasády:
Omítka
Styl domu:
Moderní
Doporučená orientace vstupu:
Sever, Východ
Vybavení domu:
Pokoj pro hosty, Krb, Terasa
Obývací prostor
22,1 m2
Jídelna
13 m2
Kuchyňský kout
12,6 m2
Chodba
8,6 m2
Ložnice
12,2 m2
Koupelna
6,6 m2
Chodba
2,7 m2
Pokoj
12,3 m2
Koupelna
6,2 m2
Pokoj
11,9 m2
Tech. místnost
5,9 m2
Zádveří
7,4 m2
Cena včetně DPH. Cena kompletní projektové dokumentace včetně Průkazu energetické náročnosti budovy (PENB) a Požárně bezpečnostního řešení (PBŘ).
Dodavatel sídlí na Slovensku a v ČR primárně dodává projektovou dokumentaci. Výstavbu domu na klíč zajišťuje jen v regionech poblíž hranice se Slovenskem (Moravskoslezský, Zlínský a Jihomoravský kraj).
Cena domu na klíč bude stanovena na základě individuální poptávky.
Jednoduchý, elegantní bungalov s plochou střechou a zajímavou, praktickou dispozicí. Charakteristickým prvkem jsou velké prosklené plochy, které zaujímají téměř celou šířku zahradní fasády.
Dispoziční řešení interiéru nabízí 2 na sobě nezávislé privátní části, které jsou oddělené společenskou částí a vstupním prostorem. Jedna z privátních částí, která zahrnuje ložnici a koupelnu s výstupem na terasu, může v případě potřeby sloužit také jako pokoj pro hosty. Druhá privátní část obsahuje 2 ložnice a koupelnu s toaletou, jedna z ložnic má přímý vstup na terasu.
Společenská část domu je tvořena otevřeným obytným velkoprostorem s krbem, jídelnou a kuchyňským koutem. Velké prosklené plochy zajišťují dokonalé prosvětlení interiéru, přirozené propojení s terasou a ničím nerušený výhled do zahrady.
Zdrojem vytápění je kvalitní tepelné čerpadlo vzduch/voda značky Daikin. Rozvody jsou v celém domě řešeny jako teplovodní podlahové topení.
Větrání je zajištěno pomocí rekuperační jednotky.
Dodavatelem projektu je společnost
.
Její obchodní zástupce Vás bude kontaktovat v nejbližším možném termínu.
Děkujeme za poptávku.
Mám zájem o více informací k domu
Dům 220.
Prosím, kontaktujte mě.
* Tento údaj je povinný
Počet obytných místností: 4
Užitná plocha: 123,2 m2
Cena domu na klíč: 5 151 608 Kč
Počet obytných místností: 4
Užitná plocha: 108,6 m2
Cena domu na klíč: 4 541 109 Kč
Počet obytných místností: 4
Užitná plocha: 145,1 m2
Cena domu na klíč: 6 067 356 Kč
Počet obytných místností: 4
Užitná plocha: 166,7 m2
Cena domu na klíč: 6 970 560 Kč
LÍBÍ SE VÁM TENTO DŮM?
Poptejte nezávazně více informací
Dodavatelem projektu je společnost
.
Její obchodní zástupce Vás bude kontaktovat v nejbližším možném termínu.
Děkujeme za poptávku.
Mám zájem o více informací k domu
Dům 220.
Prosím, kontaktujte mě.
* Tento údaj je povinný
Nechcete ztrácet čas procházením našeho katalogu?
Zadejte základní parametry vašeho vysněného domu a získejte nabídky šité na míru právě Vám.
Aby web fungoval jak má - souhlas s cookies
Pro co nejlepší zážitek z prohlížení webu, aby fungovalo vyhledávání, přihlašování, abychom vás neobtěžovali nevhodnou reklamou a pro mnoho dalších věcí využívá tato stránka tzv. cookies, což jsou drobné textové informace dočasně ukládané do paměti vašeho prohlížeče. K jejich použití od vás potřebujeme souhlas. Za jeho udělení v plné šíři, či podrobné nastavení vám velmi děkujeme. Vaše rozhodnutí můžete samozřejmě kdykoliv změnit a přenastavit.
Jaké cookies používáme
Nezbytné cookies jsou bezpodmínečně nutné k fungování stránek. Bez nich by nefungovaly základní funkcionality, jako např. přihlašování nebo nakupování v e-shopu. Tyto jsou vždy automaticky povolené.
Marketingové cookies pomáhají trackovat uživatele stránek za účelem nabízení cílených reklamních sdělení. Dávají smysl pro obě strany, neboť uživatel stránek obdrží reklamu na produkty, které ho skutečně zajímají, a které např. vyhledával v minulosti, a vydavatelé reklam naopak mohou tyto reklamy cíleně nabídnout.