Nechcete ztrácet čas procházením našeho katalogu?
Zadejte základní parametry vašeho vysněného domu a získejte nabídky šité na míru právě Vám.
VÝBĚR DOMU
Dodavatelem projektu je společnost
.
Její obchodní zástupce Vás bude kontaktovat v nejbližším možném termínu.
Děkujeme za poptávku.
Mám zájem o více informací k domu
Dům 302.
Prosím, kontaktujte mě.
* Tento údaj je povinný
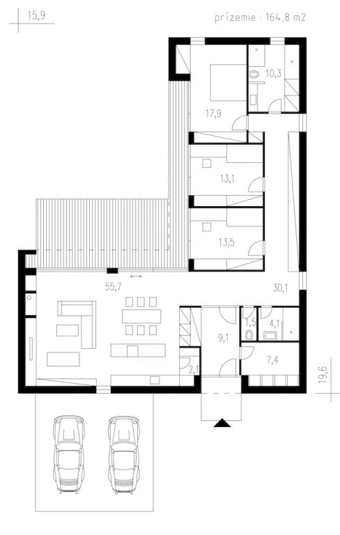
Obytné místnosti
4
Užitná plocha celkem
164,8 m2
Zastavěná plocha
195,5 m2
Konstrukce domu
Užitná plocha přízemí:
164,8 m2
Půdorysné rozměry domu:
19,6 x 15,9 m
Výška hřebenu střechy:
3,8 m
Min. rozměr pozemku:
26 x 20 m
Počet koupelen:
2
Tvar půdorysu:
L
Typ střechy:
Rovná
Provedení fasády:
Omítka
Styl domu:
Moderní
Doporučená orientace vstupu:
Sever, Východ
Vybavení domu:
Samostatné WC, Samostatná spíž, Krb, Terasa
Obývací prostor s jídelnou a kuch. koutem
55,7 m2
Spíž
2,1 m2
WC
1,5 m2
Koupelna
4,1 m2
Chodba
30,1 m2
Pokoj
13,5 m2
Pokoj
13,5 m2
Ložnice
17,9 m2
Koupelna
10,3 m2
Zádveří
9,1 m2
Tech. místnost
7,4 m2
Cena včetně DPH. Cena kompletní projektové dokumentace včetně Průkazu energetické náročnosti budovy (PENB) a Požárně bezpečnostního řešení (PBŘ).
Dodavatel sídlí na Slovensku a v ČR primárně dodává projektovou dokumentaci. Výstavbu domu na klíč zajišťuje jen v regionech poblíž hranice se Slovenskem (Moravskoslezský, Zlínský a Jihomoravský kraj).
Cena domu na klíč bude stanovena na základě individuální poptávky.
Moderní, nadčasový bungalov s jednoduchými a čistými liniemi. Dům na půdorysu ve tvaru L umožňuje orientaci všech obytných místností na soukromou terasu. Zajímavým architektonickým prvkem je přesah střechy chránící terasu.
Společenskou část domu tvoří obytný velkoprostor s krbem, propojený s jídelnou a kuchyňským koutem, kde nechybí praktická spíž. Bohaté prosklení je zárukou dokonalého prosvětlení interiéru a ničím nerušeného výhledu do zahrady.
Privátní zóna domu se nachází v samostatném křídle a tvoří ji 3 pokoje, 2 koupelny, samostatná toaleta a chodba s úložnými prostory. Všechny pokoje jsou díky velkým francouzským oknům dokonale propojeny s terasou.
Zdrojem vytápění je kvalitní tepelné čerpadlo vzduch/voda značky Daikin. Rozvody jsou v celém domě řešeny jako teplovodní podlahové topení.
Větrání je zajištěno pomocí rekuperační jednotky.
Dodavatelem projektu je společnost
.
Její obchodní zástupce Vás bude kontaktovat v nejbližším možném termínu.
Děkujeme za poptávku.
Mám zájem o více informací k domu
Dům 302.
Prosím, kontaktujte mě.
* Tento údaj je povinný
Počet obytných místností: 4
Užitná plocha: 183 m2
Cena domu na klíč: 7 652 146 Kč
Počet obytných místností: 4
Užitná plocha: 156,8 m2
Cena domu na klíč: 6 556 592 Kč
Počet obytných místností: 4
Užitná plocha: 166,7 m2
Cena domu na klíč: 6 970 560 Kč
Počet obytných místností: 4
Užitná plocha: 100 m2
Cena domu na klíč: 4 181 500 Kč
LÍBÍ SE VÁM TENTO DŮM?
Poptejte nezávazně více informací
Dodavatelem projektu je společnost
.
Její obchodní zástupce Vás bude kontaktovat v nejbližším možném termínu.
Děkujeme za poptávku.
Mám zájem o více informací k domu
Dům 302.
Prosím, kontaktujte mě.
* Tento údaj je povinný
Nechcete ztrácet čas procházením našeho katalogu?
Zadejte základní parametry vašeho vysněného domu a získejte nabídky šité na míru právě Vám.
Aby web fungoval jak má - souhlas s cookies
Pro co nejlepší zážitek z prohlížení webu, aby fungovalo vyhledávání, přihlašování, abychom vás neobtěžovali nevhodnou reklamou a pro mnoho dalších věcí využívá tato stránka tzv. cookies, což jsou drobné textové informace dočasně ukládané do paměti vašeho prohlížeče. K jejich použití od vás potřebujeme souhlas. Za jeho udělení v plné šíři, či podrobné nastavení vám velmi děkujeme. Vaše rozhodnutí můžete samozřejmě kdykoliv změnit a přenastavit.
Jaké cookies používáme
Nezbytné cookies jsou bezpodmínečně nutné k fungování stránek. Bez nich by nefungovaly základní funkcionality, jako např. přihlašování nebo nakupování v e-shopu. Tyto jsou vždy automaticky povolené.
Marketingové cookies pomáhají trackovat uživatele stránek za účelem nabízení cílených reklamních sdělení. Dávají smysl pro obě strany, neboť uživatel stránek obdrží reklamu na produkty, které ho skutečně zajímají, a které např. vyhledával v minulosti, a vydavatelé reklam naopak mohou tyto reklamy cíleně nabídnout.