Obytné místnosti

4

Užitná plocha celkem

123,1 m2

Zastavěná plocha

149,6 m2

Konstrukce domu

Zděný

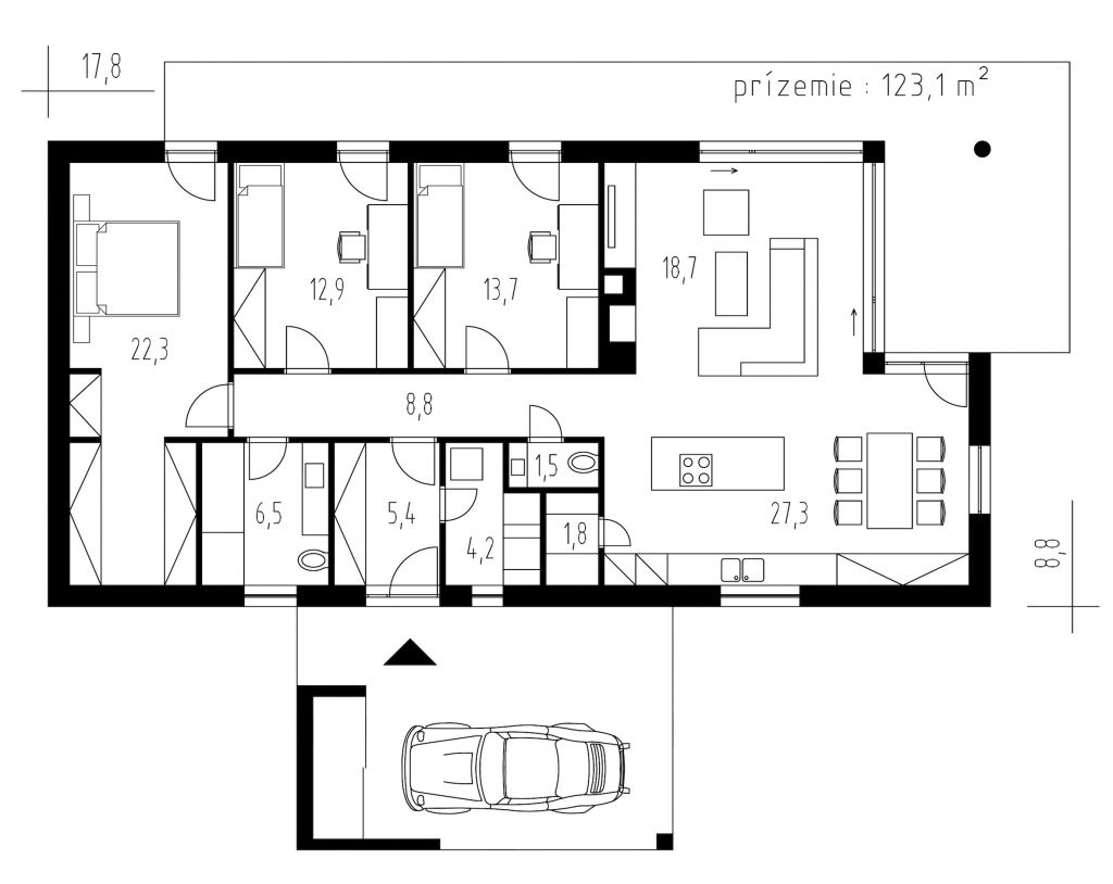
Užitná plocha přízemí:

123,1 m2

Půdorysné rozměry domu:

17,8 x 8,8 m

Výška hřebenu střechy:

4,8 m

Min. rozměr pozemku:

22 x 16 m

Počet parkovacích stání:

1 (kryté parkovací stání)

Počet koupelen:

1

Tvar půdorysu:

Obdélník

Typ střechy:

Valbová

Provedení fasády:

Omítka

Styl domu:

Moderní

Doporučená orientace vstupu:

Sever, Západ

Vybavení domu:

Samostatné WC, Samostatná spíž, Samostatná šatna, Krb, Terasa

1. NP

Obývací prostor

18,7 m2

Jídelna s kuch. koutem

27,3 m2

Spíž

1,8 m2

Ložnice se šatnou

22,3 m2

Pokoj

12,9 m2

Pokoj

13,7 m2

WC

1,5 m2

Koupelna

6,5 m2

Zádveří

5,4 m2

Šatna/Tech. místnost

4,2 m2

Chodba

8,8 m2


Cena projektové dokumentace

88 540

Cena včetně DPH. Cena kompletní projektové dokumentace včetně Průkazu energetické náročnosti budovy (PENB) a Požárně bezpečnostního řešení (PBŘ).

Cena domu k dokončení

5 147 430

Cena včetně DPH při optimalizovaném standardu použitých materiálů a technologií v poměru cena/výkon.
Cena obsahuje základovou desku, tepelné čerpadlo vzduch/voda, systém řízeného větrání s rekuperací.
Cena neobsahuje finální povrchy podlah a stěn (obklady, dlažby, plovoucí podlahy, výmalba), zařizovací předměty koupelen a wc, interiérové dveře a zárubně.
Cena dále neobsahuje komínový systém a krbovou vložku, žaluzie, kuchyňskou linku ani žádný jiný nábytek, terasu, okapové chodníky, zpevněné plochy na pozemku, přípojky inženýrských sítí, sadové úpravy, oplocení pozemku.

Cena domu na klíč

Bude stanovena na základě individuální poptávky.

Popis stavby

Kompaktní, 4pokojový, rodinný dům tybu bungalov s krytým parkovacím stáním. Dům je ideální pro pohodlné bydlení 4-5členné domácnosti. Charakteristickým a zárověň praktickým prvkem je terasa krytá přesahem střechy.

Srdcem domu je obytný velkoprostor s krbem, propojený s jídelnou a kuchyňským koutem. Velké prosklené plochy zajišťují dokonalé prosvětlení interiéru denním světlem a jeho přirozené propojení s exteriérem domu. V kuchyni je navržen praktický sklad potravin.

V domě jsou dále umíštěny 2 dětské pokoje, koupelna s vanou i sprchovým koutem a rozlehlá ložnice rodičů s vlastní šatnou. Z každého pokoje je možný výstup francouzským oknem na terasu.

V domě je navrženo velké množství úložných prostor, kromě šatny je ve všech pokojích a v zádveří navržen prostor pro vestavěné skříně.

Součástí domu je i kryté parkovací stání.

Náš tip

Zdrojem vytápění je kvalitní tepelné čerpadlo vzduch/voda značky Daikin. Rozvody jsou v celém domě řešeny jako teplovodní podlahové topení.
Větrání je zajištěno pomocí rekuperační jednotky.

Nechcete ztrácet čas procházením našeho katalogu?

Zadejte základní parametry vašeho vysněného domu a získejte nabídky šité na míru právě Vám.

 ZAVŘÍT

Aby web fungoval jak má - souhlas s cookies

Pro co nejlepší zážitek z prohlížení webu, aby fungovalo vyhledávání, přihlašování, abychom vás neobtěžovali nevhodnou reklamou a pro mnoho dalších věcí využívá tato stránka tzv. cookies, což jsou drobné textové informace dočasně ukládané do paměti vašeho prohlížeče. K jejich použití od vás potřebujeme souhlas. Za jeho udělení v plné šíři, či podrobné nastavení vám velmi děkujeme. Vaše rozhodnutí můžete samozřejmě kdykoliv změnit a přenastavit.

Jaké cookies používáme

Nezbytné

Nezbytné cookies jsou bezpodmínečně nutné k fungování stránek. Bez nich by nefungovaly základní funkcionality, jako např. přihlašování nebo nakupování v e-shopu. Tyto jsou vždy automaticky povolené.

Statistické

Tyto cookies pomáhají s měřením a analýzou návštěvnosti stránek.

sembako4d sembako4d sembako4d balaitoto balaitoto sembako4d sembako4d balaitoto indosattoto bengbeng toto login bengbengtoto login bengbengtoto login bengbengtoto login bengbengtoto login bengbengtoto login bengbengtoto indosattoto indosattoto balaitoto cahayatoto cahayatoto cahayatoto cahayatoto cahayatoto indosattoto indosattoto ohtogel ohtogel ohtogel ohtogel ohtogel ohtogel ohtogel jualtoto mineraltoto

Marketingové

Marketingové cookies pomáhají trackovat uživatele stránek za účelem nabízení cílených reklamních sdělení. Dávají smysl pro obě strany, neboť uživatel stránek obdrží reklamu na produkty, které ho skutečně zajímají, a které např. vyhledával v minulosti, a vydavatelé reklam naopak mohou tyto reklamy cíleně nabídnout.

Přijmout vše Přijmout vybrané Podrobné nastavení