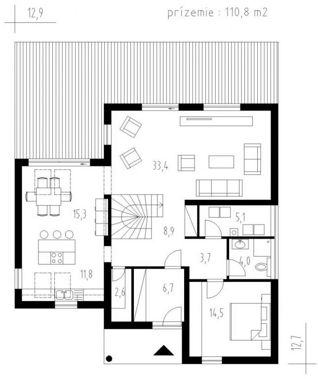
Obytné místnosti

5

Užitná plocha celkem

183,1 m2

Zastavěná plocha

133,3 m2

Konstrukce domu

Zděný

Užitná plocha přízemí:

110,8 m2

Užitná plocha patra:

72,3 m2

Půdorysné rozměry domu:

12,9 x 12,7 m

Výška hřebenu střechy:

7,2 m

Min. rozměr pozemku:

25 x 17 m

Počet koupelen:

2

Tvar půdorysu:

L

Typ střechy:

Sedlová

Provedení fasády:

Omítka

Styl domu:

Tradiční

Doporučená orientace vstupu:

Sever, Východ

Vybavení domu:

Samostatná spíž, Samostatná šatna, Pracovna, Pokoj pro hosty, Hobby místnost, Krb, Terasa

1. NP

Obývací prostor

33,4 m2

Jídelna

15,3 m2

Kuchyň

11,8 m2

Spíž

2,6 m2

Pracovna/Pokoj pro hosty/Hobby místnost

14,5 m2

Koupelna

4 m2

Chodba

3,7 m2

Hala

8,9 m2

Tech. místnost/Prádelna

5,1 m2

Zádveří

6,7 m2

2. NP

Hala se šatnou

17,3 m2

Ložnice

12,3 m2

Šatna

7,1 m2

Koupelna

9,9 m2

Pokoj

13,4 m2

Pokoj

12,3 m2


Cena projektové dokumentace

92 140

Cena včetně DPH. Cena kompletní projektové dokumentace včetně Průkazu energetické náročnosti budovy (PENB) a Požárně bezpečnostního řešení (PBŘ).

Cena domu k dokončení

7 195 830

Cena včetně DPH při optimalizovaném standardu použitých materiálů a technologií v poměru cena/výkon.
Cena obsahuje základovou desku, tepelné čerpadlo vzduch/voda, systém řízeného větrání s rekuperací.
Cena neobsahuje finální povrchy podlah a stěn (obklady, dlažby, plovoucí podlahy, výmalba), zařizovací předměty koupelen a wc, interiérové dveře a zárubně.
Cena dále neobsahuje komínový systém a krbovou vložku, žaluzie, kuchyňskou linku ani žádný jiný nábytek, terasu, okapové chodníky, zpevněné plochy na pozemku, přípojky inženýrských sítí, sadové úpravy, oplocení pozemku.

Cena domu na klíč

Bude stanovena na základě individuální poptávky.

Popis stavby

Prostorný, 5pokojový, podkrovní rodinný dům klasického tvaru se sedlovou střechou. Půdorys domu ve tvaru L zajišťuje pocit soukromí na terase.

V přízemí se nachází obytný velkoprostor s oddělenou kuchyňskou a jídelní částí, které jsou umístěny v samostatném křídle domu. Ke kuchyni náleží spíž pro pohodlné skladování potravin. Bohaté prosklení interiér propojuje s terasou a zajišťuje jeho dokonalé prosvětlení.

V přízemí dále najdeme koupelnu se sprchovým koutem a pokoj, který podle potřeby může sloužit jako pracovna, pokoj pro hosty, dětský pokoj nebo hobby místnost. Prostorná technická místnost může být zároveň využívána jako prádelna se sušárnou.

V podkroví je umístěna velkorysá ložnice rodičů s vlastní šatnou. Dále nadstandardně velká koupelna s vanou i sprchovým koutem a 2 dětské pokoje s výstupem na balkón.

Na chodbě je navržen prostor na vybudování další šatny pro dětské pokoje.

Náš tip

Zdrojem vytápění je kvalitní tepelné čerpadlo vzduch/voda značky Daikin. Rozvody jsou v celém domě řešeny jako teplovodní podlahové topení.
Větrání je zajištěno pomocí rekuperační jednotky.

Nechcete ztrácet čas procházením našeho katalogu?

Zadejte základní parametry vašeho vysněného domu a získejte nabídky šité na míru právě Vám.

 ZAVŘÍT

Aby web fungoval jak má - souhlas s cookies

Pro co nejlepší zážitek z prohlížení webu, aby fungovalo vyhledávání, přihlašování, abychom vás neobtěžovali nevhodnou reklamou a pro mnoho dalších věcí využívá tato stránka tzv. cookies, což jsou drobné textové informace dočasně ukládané do paměti vašeho prohlížeče. K jejich použití od vás potřebujeme souhlas. Za jeho udělení v plné šíři, či podrobné nastavení vám velmi děkujeme. Vaše rozhodnutí můžete samozřejmě kdykoliv změnit a přenastavit.

Jaké cookies používáme

Nezbytné

Nezbytné cookies jsou bezpodmínečně nutné k fungování stránek. Bez nich by nefungovaly základní funkcionality, jako např. přihlašování nebo nakupování v e-shopu. Tyto jsou vždy automaticky povolené.

Statistické

Tyto cookies pomáhají s měřením a analýzou návštěvnosti stránek.

sembako4d sembako4d sembako4d balaitoto balaitoto sembako4d sembako4d balaitoto indosattoto bengbeng toto login bengbengtoto login bengbengtoto login bengbengtoto login bengbengtoto login bengbengtoto login bengbengtoto indosattoto indosattoto balaitoto cahayatoto cahayatoto cahayatoto cahayatoto cahayatoto indosattoto indosattoto ohtogel ohtogel ohtogel ohtogel ohtogel ohtogel ohtogel jualtoto mineraltoto

Marketingové

Marketingové cookies pomáhají trackovat uživatele stránek za účelem nabízení cílených reklamních sdělení. Dávají smysl pro obě strany, neboť uživatel stránek obdrží reklamu na produkty, které ho skutečně zajímají, a které např. vyhledával v minulosti, a vydavatelé reklam naopak mohou tyto reklamy cíleně nabídnout.

Přijmout vše Přijmout vybrané Podrobné nastavení