Obytné místnosti

4

Užitná plocha celkem

146 m2

Zastavěná plocha

170 m2

Konstrukce domu

Zděný

Užitná plocha přízemí:

146 m2

Půdorysné rozměry domu:

23 x 7,4 m

Výška hřebenu střechy:

5,4 m

Min. rozměr pozemku:

29 x 12 m

Počet koupelen:

2

Tvar půdorysu:

Obdélník

Typ střechy:

Sedlová

Provedení fasády:

Omítka, Dřevěný obklad

Styl domu:

Moderní, Přírodní

Doporučená orientace vstupu:

Sever

Vybavení domu:

Samostatné WC, Samostatná spíž, Samostatná šatna, Hlavní ložnice s vlastní koupelnou, Krb, Terasa

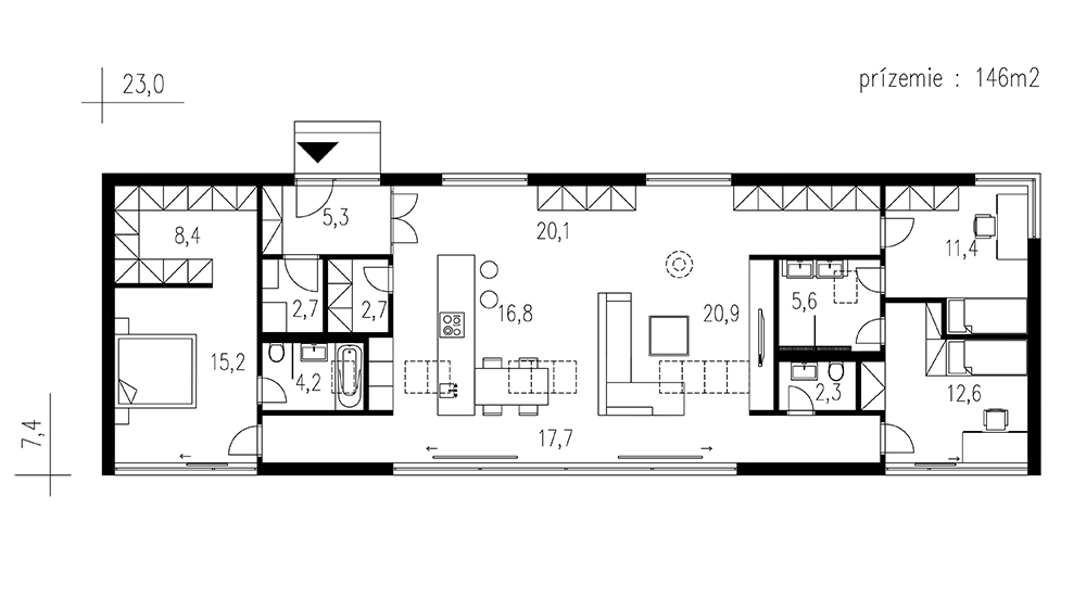
1. NP

Obývací prostor

20,9 m2

Kuchyňský kout s jídelnou

16,8 m2

Ložnice

15,2 m2

Šatna

8,4 m2

Koupelna

4,2 m2

Pokoj

12,6 m2

Pokoj

11,4 m2

Koupelna

5,6 m2

WC

2,3 m2

Chodba

17,7 m2

Chodba

20,1 m2

Zádveří

5,3 m2

Technická místnost

2,7 m2

Spíž

2,7 m2


Cena projektové dokumentace

88 650

Cena včetně DPH. Cena kompletní projektové dokumentace včetně Průkazu energetické náročnosti budovy (PENB) a Požárně bezpečnostního řešení (PBŘ).

Cena domu k dokončení

6 104 990

Cena včetně DPH při optimalizovaném standardu použitých materiálů a technologií v poměru cena/výkon.
Cena obsahuje základovou desku, tepelné čerpadlo vzduch/voda, systém řízeného větrání s rekuperací.
Cena neobsahuje finální povrchy podlah a stěn (obklady, dlažby, plovoucí podlahy, výmalba), zařizovací předměty koupelen a wc, interiérové dveře a zárubně.
Cena dále neobsahuje komínový systém a krbovou vložku, žaluzie, kuchyňskou linku ani žádný jiný nábytek, terasu, okapové chodníky, zpevněné plochy na pozemku, přípojky inženýrských sítí, sadové úpravy, oplocení pozemku.

Cena domu na klíč

Bude stanovena na základě individuální poptávky.

Popis stavby

Moderní bungalov se sedlovou střechou a velkými prosklenými plochami, který se hodí na dlouhé pozemky. Dům je vhodný pro pohodlné bydlení 4-5členné rodiny. Použití dřevěného obkladu na části fasády dodává domu atraktivní vzhled.

Společenskou zónu domu tvoří velký obývací prostor s jídelnou a kuchyňským koutem. V kuchyni je navržen varný ostrůvek s barovým sezením a praktická spíž pro pohodlné ukládání potravin. Celý společenský prostor působí otevřeně a vzdušně díky stropu zvýšenému až ke krovu a velké ploše francouzských a střešních oken.

Zóna rodičů je umístěna na opačné straně domu než zóna dětí a tvoří ji velká ložnice s vlastní koupelnou a šatnou. V dětské zóně jsou umístěny 2 pokoje se společnou koupelnou a samostatné WC.

V domě je navrženo velké množství úložných prostor.

Náš tip

Zdrojem vytápění je kvalitní tepelné čerpadlo vzduch/voda značky Daikin. Rozvody jsou v celém domě řešeny jako teplovodní podlahové topení.
Větrání je zajištěno pomocí rekuperační jednotky.

Nechcete ztrácet čas procházením našeho katalogu?

Zadejte základní parametry vašeho vysněného domu a získejte nabídky šité na míru právě Vám.

 ZAVŘÍT

Aby web fungoval jak má - souhlas s cookies

Pro co nejlepší zážitek z prohlížení webu, aby fungovalo vyhledávání, přihlašování, abychom vás neobtěžovali nevhodnou reklamou a pro mnoho dalších věcí využívá tato stránka tzv. cookies, což jsou drobné textové informace dočasně ukládané do paměti vašeho prohlížeče. K jejich použití od vás potřebujeme souhlas. Za jeho udělení v plné šíři, či podrobné nastavení vám velmi děkujeme. Vaše rozhodnutí můžete samozřejmě kdykoliv změnit a přenastavit.

Jaké cookies používáme

Nezbytné

Nezbytné cookies jsou bezpodmínečně nutné k fungování stránek. Bez nich by nefungovaly základní funkcionality, jako např. přihlašování nebo nakupování v e-shopu. Tyto jsou vždy automaticky povolené.

Statistické

Tyto cookies pomáhají s měřením a analýzou návštěvnosti stránek.

sembako4d sembako4d sembako4d balaitoto balaitoto sembako4d sembako4d balaitoto indosattoto bengbeng toto login bengbengtoto login bengbengtoto login bengbengtoto login bengbengtoto login bengbengtoto login bengbengtoto indosattoto indosattoto balaitoto cahayatoto cahayatoto cahayatoto cahayatoto cahayatoto indosattoto indosattoto ohtogel ohtogel ohtogel ohtogel ohtogel ohtogel ohtogel jualtoto mineraltoto

Marketingové

Marketingové cookies pomáhají trackovat uživatele stránek za účelem nabízení cílených reklamních sdělení. Dávají smysl pro obě strany, neboť uživatel stránek obdrží reklamu na produkty, které ho skutečně zajímají, a které např. vyhledával v minulosti, a vydavatelé reklam naopak mohou tyto reklamy cíleně nabídnout.

Přijmout vše Přijmout vybrané Podrobné nastavení