Dům 441
Dřevostavba 5kk, sedlová střecha

Obytné místnosti

5

Užitná plocha celkem

146,58 m2

Zastavěná plocha

96,97 m2

Konstrukce domu

Dřevostavba

Užitná plocha přízemí:

77,96 m2

Užitná plocha patra:

68,62 m2

Půdorysné rozměry domu:

10,36 x 9,36 m

Sklon střechy:

38°

Počet koupelen:

2

Tvar půdorysu:

Obdélník

Typ střechy:

Sedlová

Provedení fasády:

Omítka, Dřevěný obklad

Styl domu:

Moderní

Doporučená orientace vstupu:

Sever, Východ

Vybavení domu:

Samostatné WC, Pracovna, Pokoj pro hosty, Hobby místnost, Krb, Terasa

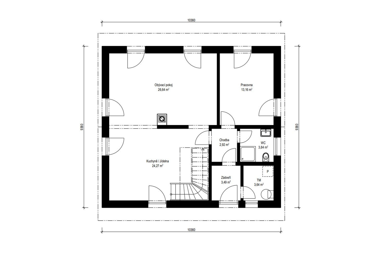
1. NP

Obytný prostor

26,64 m2

Kuch. kout s jídelnou

24,27 m2

Pracovna/Pokoj pro hosty/Hobby místnost

13,16 m2

Koupelna

3,84 m2

Chodba

2,92 m2

Technická místnost

3,64 m2

Zádveří

3,49 m2

2. NP

Ložnice

19,05 m2

Pokoj

16,0 m2

Pokoj

20,20 m2

Koupelna

7,84 m2

WC

1,86 m2

Galerie

3,67 m2


Cena domu k dokončení

4 627 100

Cena včetně DPH. Cena dále zahrnuje komínový systém, tepelné čerpadlo, podlahové vytápění, centrální rekuperaci vzduchu, dřevěná nebo plasthliníková okna.
Cena neobsahuje realizaci základové desky.
Dům k dokončení neobsahuje finální povrchy podlah a stěn (obklady, dlažby, podlahové krytiny, výmalba), zařizovací předměty koupelen a wc, interiérové dveře a zárubně, krbová kamna nebo krbovou vložku.

Cena domu na klíč

5 666 900

Cena včetně DPH. Cena dále zahrnuje komínový systém, tepelné čerpadlo, podlahové vytápění, centrální rekuperaci vzduchu, dřevěná nebo plasthliníková okna.
Cena neobsahuje realizaci základové desky.
Cena dále neobsahuje krbová kamna nebo krbovou vložku, žaluzie, kuchyňskou linku ani žádný jiný nábytek, terasu, okapové chodníky, zpevněné plochy na pozemku, přípojky inženýrských sítí, sadové úpravy, oplocení pozemku.

Popis stavby

Praktický, dvoupodlažní rodinný dům tradičního vzhledu se sedlovou střechou. Dřevěný obklad na části fasády vytváří atraktivní vzhled domu. Dům bude plně vyhovovat potřebám 5-6členné rodiny.

V přízemí se nachází společenská část domu, která je tvořena obytným prostorem propojeným s jídelnou a kuchyňským koutem. Dostatečné množství denního světla zajišťují francouzská okna, která nabízejí možnost vyjít z obývacího pokoje rovnou na terasu. Pro navození útulné atmosféry je zde navržen krb.

V přízemí dále najdeme koupelnu se sprchovým koutem a pokoj, který podle potřeby může sloužit jako pracovna, hobby místnost nebo pokoj pro hosty.

V patře se nachází 2 dětské pokoje, prostorná ložnice rodičů a velkorysá koupelna s vanou i sprchovým koutem. Najdeme zde také samostatné WC.

Ve všech pokojích a v zádveří je navržen prostor pro vestavěné skříně.

Náš tip

Zdrojem vytápění je kvalitní tepelné čerpadlo vzduch/voda s napojením na teplovodní podlahové topení.
O tepelný komfort a nízké náklady na energie se starají certifikované vnější stěny Thermo-Protect®, vybavené Klima-kontroll membránou.

POPTAT DŮM

ZAVŘÍT  

Dodavatelem projektu je společnost
.
Její obchodní zástupce Vás bude kontaktovat v nejbližším možném termínu.

Děkujeme za poptávku.

Mám zájem o více informací k domu
Dům 441.
Prosím, kontaktujte mě.

* Tento údaj je povinný

Vyplněním údajů a odesláním formuláře souhlasíte s jejich zpracováním a uchováním společností Online House. s.r.o. Více o ochraně osobních údajů.

LÍBÍ SE VÁM TENTO DŮM?
Poptejte nezávazně více informací

ZAVŘÍT  

Dodavatelem projektu je společnost
.
Její obchodní zástupce Vás bude kontaktovat v nejbližším možném termínu.

Děkujeme za poptávku.

Mám zájem o více informací k domu
Dům 441.
Prosím, kontaktujte mě.

* Tento údaj je povinný

Vyplněním údajů a odesláním formuláře souhlasíte s jejich zpracováním a uchováním společností Online House. s.r.o. Více o ochraně osobních údajů.

Nechcete ztrácet čas procházením našeho katalogu?

Zadejte základní parametry vašeho vysněného domu a získejte nabídky šité na míru právě Vám.

 ZAVŘÍT

Aby web fungoval jak má - souhlas s cookies

Pro co nejlepší zážitek z prohlížení webu, aby fungovalo vyhledávání, přihlašování, abychom vás neobtěžovali nevhodnou reklamou a pro mnoho dalších věcí využívá tato stránka tzv. cookies, což jsou drobné textové informace dočasně ukládané do paměti vašeho prohlížeče. K jejich použití od vás potřebujeme souhlas. Za jeho udělení v plné šíři, či podrobné nastavení vám velmi děkujeme. Vaše rozhodnutí můžete samozřejmě kdykoliv změnit a přenastavit.

Jaké cookies používáme

Nezbytné

Nezbytné cookies jsou bezpodmínečně nutné k fungování stránek. Bez nich by nefungovaly základní funkcionality, jako např. přihlašování nebo nakupování v e-shopu. Tyto jsou vždy automaticky povolené.

Statistické

Tyto cookies pomáhají s měřením a analýzou návštěvnosti stránek.

sembako4d sembako4d sembako4d balaitoto balaitoto sembako4d sembako4d balaitoto indosattoto bengbeng toto login bengbengtoto login bengbengtoto login bengbengtoto login bengbengtoto login bengbengtoto login bengbengtoto indosattoto indosattoto balaitoto cahayatoto cahayatoto cahayatoto cahayatoto cahayatoto indosattoto indosattoto ohtogel ohtogel ohtogel ohtogel ohtogel ohtogel ohtogel jualtoto mineraltoto

Marketingové

Marketingové cookies pomáhají trackovat uživatele stránek za účelem nabízení cílených reklamních sdělení. Dávají smysl pro obě strany, neboť uživatel stránek obdrží reklamu na produkty, které ho skutečně zajímají, a které např. vyhledával v minulosti, a vydavatelé reklam naopak mohou tyto reklamy cíleně nabídnout.

Přijmout vše Přijmout vybrané Podrobné nastavení