Nechcete ztrácet čas procházením našeho katalogu?
Zadejte základní parametry vašeho vysněného domu a získejte nabídky šité na míru právě Vám.
VÝBĚR DOMU
Dodavatelem projektu je společnost 
.
 Její obchodní zástupce Vás bude kontaktovat v nejbližším možném termínu. 
Děkujeme za poptávku.
        Mám zájem o více informací k domu 
Dům 447.
        Prosím, kontaktujte mě.
    
* Tento údaj je povinný
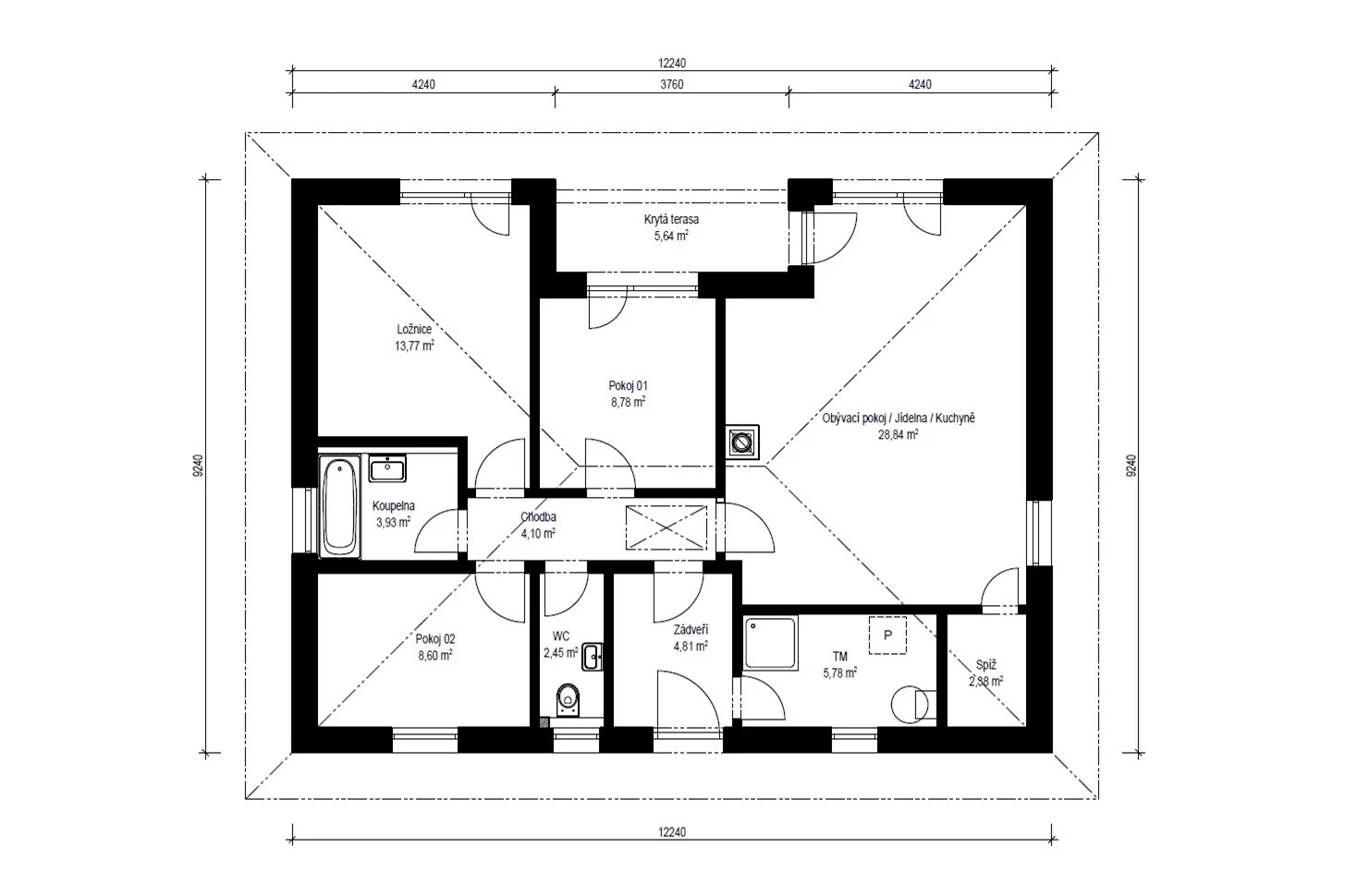
Obytné místnosti
4
Užitná plocha celkem
83,44 m2
Zastavěná plocha
113,1 m2
Konstrukce domu
Užitná plocha přízemí:
83,44 m2
Půdorysné rozměry domu:
12,24 x 9,24 m
Sklon střechy:
25°
Počet koupelen:
2
Tvar půdorysu:
U
Typ střechy:
Valbová
Provedení fasády:
Omítka
Styl domu:
Tradiční
Doporučená orientace vstupu:
Sever
Vybavení domu:
Samostatné WC, Samostatná spíž, Krb, Terasa
Obytný prostor s jídelnou a kuch. koutem
28,84 m2
Spíž
2,38 m2
Chodba
4,10 m2
Ložnice
13,77 m2
Pokoj
8,60 m2
Pokoj
8,78 m2
Koupelna
3,93 m2
WC
2,45 m2
Koupelna/Tech. místnost
5,78 m2
Zádveří
4,81 m2
Krytá terasa
5,64 m2
Cena včetně DPH. Cena dále zahrnuje komínový systém, tepelné čerpadlo, podlahové vytápění, centrální rekuperaci vzduchu, dřevěná nebo plasthliníková okna.
Cena neobsahuje realizaci základové desky.
Dům k dokončení neobsahuje finální povrchy podlah a stěn (obklady, dlažby, podlahové krytiny, výmalba), zařizovací předměty koupelen a wc, interiérové dveře a zárubně, krbová kamna nebo krbovou vložku.
Cena včetně DPH. Cena dále zahrnuje komínový systém, tepelné čerpadlo, podlahové vytápění, centrální rekuperaci vzduchu, dřevěná nebo plasthliníková okna.
Cena neobsahuje realizaci základové desky.
Cena dále neobsahuje krbová kamna nebo krbovou vložku, žaluzie, kuchyňskou linku ani žádný jiný nábytek, terasu, okapové chodníky, zpevněné plochy na pozemku, přípojky inženýrských sítí, sadové úpravy, oplocení pozemku.
Kompaktní, 4pokojový bungalov s efektivně využitým půdorysem s malým podílem chodeb. Praktickým prvkem domu je terasa zapuštěná do hmoty domu a překrytá přesahem střechy.
Obývací prostor je propojený s jídelnou a kuchyní, kde je navržena praktická spíž. Francouzská okna zajišťují dokonalé prosvětlení interiéru a jeho propojení s krytou terasou. Pro navození útulné atmosféry nechybí ani krb.
V domě dále najdeme ložnici rodičů s francouzským oknem a výstupem na terasu a 2 dětské pokoje. Příslušenství doplňují 2 koupelny - jedna s vanou, druhá se sprchovým koutem, a samostatná toaleta.
Ve všech pokojích a v zádveří je navržen prostor pro instalaci vestavěných skříní.
Zdrojem vytápění je kvalitní tepelné čerpadlo vzduch/voda s napojením na teplovodní podlahové topení.
O tepelný komfort a nízké náklady na energie se starají certifikované vnější stěny Thermo-Protect®, vybavené Klima-kontroll membránou.
Dodavatelem projektu je společnost 
.
 Její obchodní zástupce Vás bude kontaktovat v nejbližším možném termínu. 
Děkujeme za poptávku.
        Mám zájem o více informací k domu 
Dům 447.
        Prosím, kontaktujte mě.
    
* Tento údaj je povinný
											Počet obytných místností: 4
											Užitná plocha: 142 m2
											Cena domu na klíč: 5 937 730 Kč
										
											Počet obytných místností: 4
											Užitná plocha: 100 m2
											Cena domu na klíč: 4 181 500 Kč
										
											Počet obytných místností: 4
											Užitná plocha: 112,4 m2
											Cena domu na klíč: 4 683 280 Kč
										
											Počet obytných místností: 4
											Užitná plocha: 120,3 m2
											Cena domu na klíč: 4 130 985 Kč
										
LÍBÍ SE VÁM TENTO DŮM?
Poptejte nezávazně více informací
Dodavatelem projektu je společnost 
.
 Její obchodní zástupce Vás bude kontaktovat v nejbližším možném termínu. 
Děkujeme za poptávku.
        Mám zájem o více informací k domu 
Dům 447.
        Prosím, kontaktujte mě.
    
* Tento údaj je povinný
Nechcete ztrácet čas procházením našeho katalogu?
Zadejte základní parametry vašeho vysněného domu a získejte nabídky šité na míru právě Vám.
 
	Aby web fungoval jak má - souhlas s cookies
Pro co nejlepší zážitek z prohlížení webu, aby fungovalo vyhledávání, přihlašování, abychom vás neobtěžovali nevhodnou reklamou a pro mnoho dalších věcí využívá tato stránka tzv. cookies, což jsou drobné textové informace dočasně ukládané do paměti vašeho prohlížeče. K jejich použití od vás potřebujeme souhlas. Za jeho udělení v plné šíři, či podrobné nastavení vám velmi děkujeme. Vaše rozhodnutí můžete samozřejmě kdykoliv změnit a přenastavit.
Jaké cookies používáme
Nezbytné cookies jsou bezpodmínečně nutné k fungování stránek. Bez nich by nefungovaly základní funkcionality, jako např. přihlašování nebo nakupování v e-shopu. Tyto jsou vždy automaticky povolené.
Marketingové cookies pomáhají trackovat uživatele stránek za účelem nabízení cílených reklamních sdělení. Dávají smysl pro obě strany, neboť uživatel stránek obdrží reklamu na produkty, které ho skutečně zajímají, a které např. vyhledával v minulosti, a vydavatelé reklam naopak mohou tyto reklamy cíleně nabídnout.