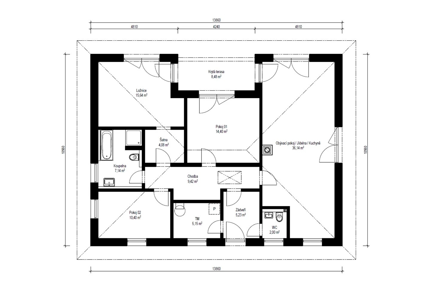
Obytné místnosti

4

Užitná plocha celkem

109,6 m2

Zastavěná plocha

146,36 m2

Konstrukce domu

Dřevostavba

Užitná plocha přízemí:

109,6 m2

Půdorysné rozměry domu:

13,86 x 10,56 m

Sklon střechy:

25°

Počet koupelen:

1

Tvar půdorysu:

U

Typ střechy:

Valbová

Provedení fasády:

Omítka

Styl domu:

Tradiční

Doporučená orientace vstupu:

Sever

Vybavení domu:

Samostatné WC, Samostatná šatna, Krb, Terasa

1. NP

Obytný prostor s jídelnou a kuch. koutem

36,14 m2

Chodba

9,42 m2

Ložnice

15,64 m2

Šatna

4,08 m2

Pokoj

14,40 m2

Pokoj

10,40 m2

Koupelna

7,14 m2

WC

2 m2

Tech. místnost

5,15 m2

Zádveří

5,23 m2

Krytá terasa

8,48 m2


Cena domu k dokončení

4 066 100

Cena včetně DPH. Cena dále zahrnuje komínový systém, tepelné čerpadlo, podlahové vytápění, centrální rekuperaci vzduchu, dřevěná nebo plasthliníková okna.
Cena neobsahuje realizaci základové desky.
Dům k dokončení neobsahuje finální povrchy podlah a stěn (obklady, dlažby, podlahové krytiny, výmalba), zařizovací předměty koupelen a wc, interiérové dveře a zárubně, krbová kamna nebo krbovou vložku.

Cena domu na klíč

4 867 900

Cena včetně DPH. Cena dále zahrnuje komínový systém, tepelné čerpadlo, podlahové vytápění, centrální rekuperaci vzduchu, dřevěná nebo plasthliníková okna.
Cena neobsahuje realizaci základové desky.
Cena dále neobsahuje krbová kamna nebo krbovou vložku, žaluzie, kuchyňskou linku ani žádný jiný nábytek, terasu, okapové chodníky, zpevněné plochy na pozemku, přípojky inženýrských sítí, sadové úpravy, oplocení pozemku.

Popis stavby

Kompaktní, 4pokojový bungalov, ideální pro pohodlné bydlení 4-5členné rodiny. Praktickým prvkem domu je terasa zapuštěná do hmoty domu a překrytá přesahem střechy.

Obývací prostor je propojený s jídelnou a kuchyní. Pro navození útulné atmosféry nechybí ani krb. Bohaté prosklení je zárukou dostatku denního světla v interiéru a ničím nerušeného výhledu do zahrady.

V domě je dále navržena ložnice rodičů s vlastní šatnou a výstupem na terasu a 2 dětské pokoje. Nadstandardně velká koupelna nabízí vanu i sprchový kout.

Dostatek úložných prostor zajišťují kromě šatny také vestavěné skříně, navržené ve všech pokojích, na chodbě a v zádveří.

Náš tip

Zdrojem vytápění je kvalitní tepelné čerpadlo vzduch/voda s napojením na teplovodní podlahové topení.
O tepelný komfort a nízké náklady na energie se starají certifikované vnější stěny Thermo-Protect®, vybavené Klima-kontroll membránou.

POPTAT DŮM

ZAVŘÍT  

Dodavatelem projektu je společnost
.
Její obchodní zástupce Vás bude kontaktovat v nejbližším možném termínu.

Děkujeme za poptávku.

Mám zájem o více informací k domu
Dům 451.
Prosím, kontaktujte mě.

* Tento údaj je povinný

Vyplněním údajů a odesláním formuláře souhlasíte s jejich zpracováním a uchováním společností Online House. s.r.o. Více o ochraně osobních údajů.

LÍBÍ SE VÁM TENTO DŮM?
Poptejte nezávazně více informací

ZAVŘÍT  

Dodavatelem projektu je společnost
.
Její obchodní zástupce Vás bude kontaktovat v nejbližším možném termínu.

Děkujeme za poptávku.

Mám zájem o více informací k domu
Dům 451.
Prosím, kontaktujte mě.

* Tento údaj je povinný

Vyplněním údajů a odesláním formuláře souhlasíte s jejich zpracováním a uchováním společností Online House. s.r.o. Více o ochraně osobních údajů.

Nechcete ztrácet čas procházením našeho katalogu?

Zadejte základní parametry vašeho vysněného domu a získejte nabídky šité na míru právě Vám.

 ZAVŘÍT

Aby web fungoval jak má - souhlas s cookies

Pro co nejlepší zážitek z prohlížení webu, aby fungovalo vyhledávání, přihlašování, abychom vás neobtěžovali nevhodnou reklamou a pro mnoho dalších věcí využívá tato stránka tzv. cookies, což jsou drobné textové informace dočasně ukládané do paměti vašeho prohlížeče. K jejich použití od vás potřebujeme souhlas. Za jeho udělení v plné šíři, či podrobné nastavení vám velmi děkujeme. Vaše rozhodnutí můžete samozřejmě kdykoliv změnit a přenastavit.

Jaké cookies používáme

Nezbytné

Nezbytné cookies jsou bezpodmínečně nutné k fungování stránek. Bez nich by nefungovaly základní funkcionality, jako např. přihlašování nebo nakupování v e-shopu. Tyto jsou vždy automaticky povolené.

Statistické

Tyto cookies pomáhají s měřením a analýzou návštěvnosti stránek.

sembako4d sembako4d sembako4d balaitoto balaitoto sembako4d sembako4d balaitoto indosattoto bengbeng toto login bengbengtoto login bengbengtoto login bengbengtoto login bengbengtoto login bengbengtoto login bengbengtoto indosattoto indosattoto balaitoto cahayatoto cahayatoto cahayatoto cahayatoto cahayatoto indosattoto indosattoto ohtogel ohtogel ohtogel ohtogel ohtogel ohtogel ohtogel jualtoto mineraltoto

Marketingové

Marketingové cookies pomáhají trackovat uživatele stránek za účelem nabízení cílených reklamních sdělení. Dávají smysl pro obě strany, neboť uživatel stránek obdrží reklamu na produkty, které ho skutečně zajímají, a které např. vyhledával v minulosti, a vydavatelé reklam naopak mohou tyto reklamy cíleně nabídnout.

Přijmout vše Přijmout vybrané Podrobné nastavení