Nechcete ztrácet čas procházením našeho katalogu?
Zadejte základní parametry vašeho vysněného domu a získejte nabídky šité na míru právě Vám.
VÝBĚR DOMU
Dodavatelem projektu je společnost 
.
 Její obchodní zástupce Vás bude kontaktovat v nejbližším možném termínu. 
Děkujeme za poptávku.
        Mám zájem o více informací k domu 
Dům 461.
        Prosím, kontaktujte mě.
    
* Tento údaj je povinný
Obytné místnosti
4
Užitná plocha celkem
150,54 m2
Zastavěná plocha
135,9 m2
Konstrukce domu
Užitná plocha přízemí:
78,27 m2
Užitná plocha patra:
72,27 m2
Půdorysné rozměry domu:
12,89 x 12,69 m
Počet koupelen:
2
Tvar půdorysu:
L
Typ střechy:
Rovná
Provedení fasády:
Omítka, Dřevěný obklad
Styl domu:
Moderní, Přírodní
Doporučená orientace vstupu:
Západ
Vybavení domu:
Samostatné WC, Samostatná šatna, Krb, Terasa
Obývací prostor
28,38 m2
Jídelna/Schodiště
23,42 m2
Kuchyně
11,95 m2
Koupelna/Tech. místnost
6,18 m2
WC
2,24 m2
Zádveří
6,10 m2
Krytý vstup
4,90 m2
Krytá terasa
31,56 m2
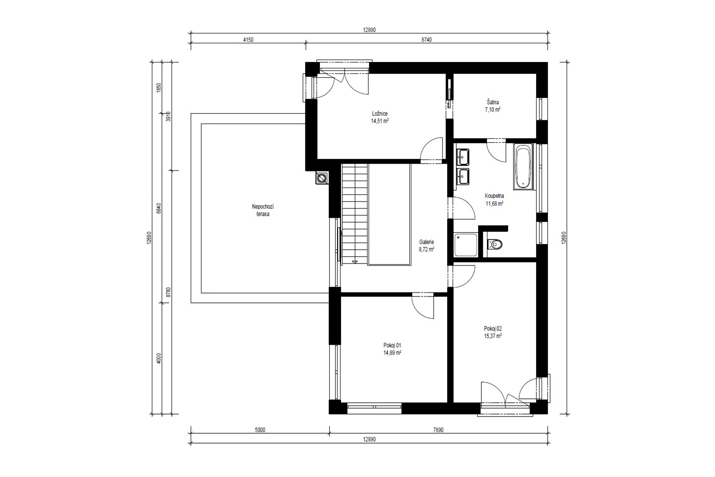
Ložnice
14,51 m2
Šatna
7,10 m2
Pokoj
15,37 m2
Pokoj
14,89 m2
Koupelna
11,68 m2
Galerie
8,72 m2
Cena včetně DPH. Cena dále zahrnuje komínový systém, tepelné čerpadlo, podlahové vytápění, centrální rekuperaci vzduchu, dřevěná nebo plasthliníková okna.
Cena neobsahuje realizaci základové desky.
Dům k dokončení neobsahuje finální povrchy podlah a stěn (obklady, dlažby, podlahové krytiny, výmalba), zařizovací předměty koupelen a wc, interiérové dveře a zárubně, krbová kamna nebo krbovou vložku.
Cena včetně DPH. Cena dále zahrnuje komínový systém, tepelné čerpadlo, podlahové vytápění, centrální rekuperaci vzduchu, dřevěná nebo plasthliníková okna.
Cena neobsahuje realizaci základové desky.
Cena dále neobsahuje krbová kamna nebo krbovou vložku, žaluzie, kuchyňskou linku ani žádný jiný nábytek, terasu, okapové chodníky, zpevněné plochy na pozemku, přípojky inženýrských sítí, sadové úpravy, oplocení pozemku.
Moderní rodinná vila s jednoduchými liniemi a plochou střechou. Zjímavým architektonickým prvkem je terasa krytá přesahem hmoty horního podlaží. Použití dřevěného obkladu na fasádě dodává domu atraktivní vzhled a odkazuje na soulad s přírodou.
Celé přízemí zaujímá obytný velkoprostor, propojený s jídelnou a kuchyní. Velké prosklené plochy jsou zárukou dokonalého prosvětlení interiéru denním světlem a ničím nerušeného výhledu do zahrady. Pro navození útulné atmosféry nechybí ani krb.
V patře je umístěna ložnice rodičů s vlastní šatnou, prostorná koupelna s vanou i sprchovým koutem a 2 dětské pokoje.
Zdrojem vytápění je kvalitní tepelné čerpadlo vzduch/voda s napojením na teplovodní podlahové topení.
O tepelný komfort a nízké náklady na energie se starají certifikované vnější stěny Thermo-Protect®, vybavené Klima-kontroll membránou.
Dodavatelem projektu je společnost 
.
 Její obchodní zástupce Vás bude kontaktovat v nejbližším možném termínu. 
Děkujeme za poptávku.
        Mám zájem o více informací k domu 
Dům 461.
        Prosím, kontaktujte mě.
    
* Tento údaj je povinný
											Počet obytných místností: 4
											Užitná plocha: 126,5 m2
											Cena domu na klíč: 4 971 450 Kč
										
											Počet obytných místností: 5
											Užitná plocha: 122,5 m2
											Cena domu na klíč: 4 814 250 Kč
										
											Počet obytných místností: 5
											Užitná plocha: 161,1 m2
											Cena domu na klíč: 5 796 750 Kč
										
											Počet obytných místností: 4
											Užitná plocha: 143 m2
											Cena domu na klíč: 5 619 900 Kč
										
LÍBÍ SE VÁM TENTO DŮM?
Poptejte nezávazně více informací
Dodavatelem projektu je společnost 
.
 Její obchodní zástupce Vás bude kontaktovat v nejbližším možném termínu. 
Děkujeme za poptávku.
        Mám zájem o více informací k domu 
Dům 461.
        Prosím, kontaktujte mě.
    
* Tento údaj je povinný
Nechcete ztrácet čas procházením našeho katalogu?
Zadejte základní parametry vašeho vysněného domu a získejte nabídky šité na míru právě Vám.
 
	Aby web fungoval jak má - souhlas s cookies
Pro co nejlepší zážitek z prohlížení webu, aby fungovalo vyhledávání, přihlašování, abychom vás neobtěžovali nevhodnou reklamou a pro mnoho dalších věcí využívá tato stránka tzv. cookies, což jsou drobné textové informace dočasně ukládané do paměti vašeho prohlížeče. K jejich použití od vás potřebujeme souhlas. Za jeho udělení v plné šíři, či podrobné nastavení vám velmi děkujeme. Vaše rozhodnutí můžete samozřejmě kdykoliv změnit a přenastavit.
Jaké cookies používáme
Nezbytné cookies jsou bezpodmínečně nutné k fungování stránek. Bez nich by nefungovaly základní funkcionality, jako např. přihlašování nebo nakupování v e-shopu. Tyto jsou vždy automaticky povolené.
Marketingové cookies pomáhají trackovat uživatele stránek za účelem nabízení cílených reklamních sdělení. Dávají smysl pro obě strany, neboť uživatel stránek obdrží reklamu na produkty, které ho skutečně zajímají, a které např. vyhledával v minulosti, a vydavatelé reklam naopak mohou tyto reklamy cíleně nabídnout.