Nechcete ztrácet čas procházením našeho katalogu?
Zadejte základní parametry vašeho vysněného domu a získejte nabídky šité na míru právě Vám.
VÝBĚR DOMU
Dodavatelem projektu je společnost 
.
 Její obchodní zástupce Vás bude kontaktovat v nejbližším možném termínu. 
Děkujeme za poptávku.
        Mám zájem o více informací k domu 
Dům 466.
        Prosím, kontaktujte mě.
    
* Tento údaj je povinný
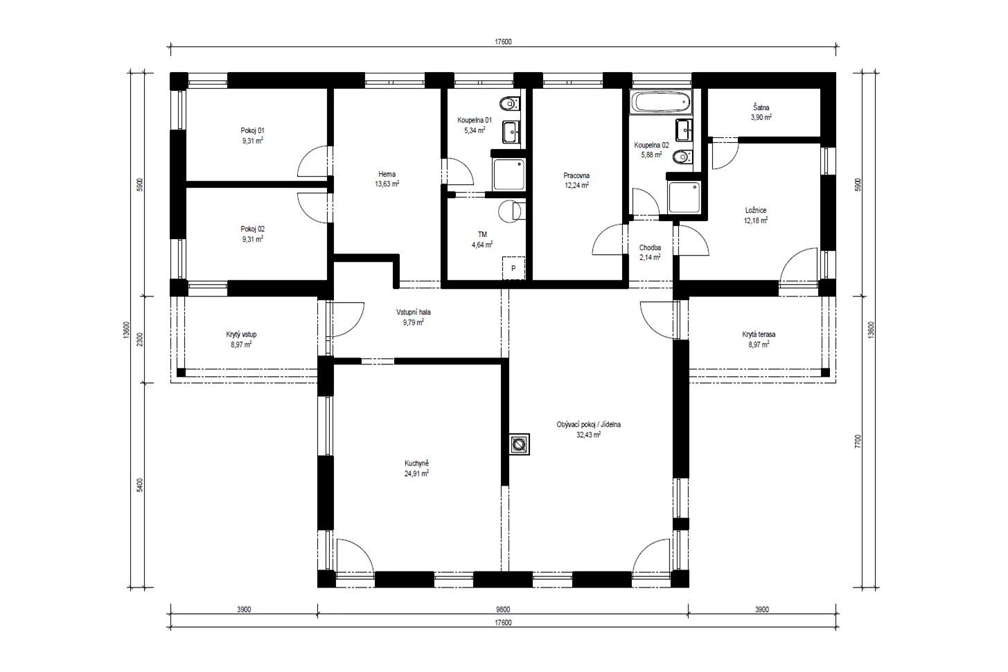
Obytné místnosti
5
Užitná plocha celkem
145,7 m2
Zastavěná plocha
197,24 m2
Konstrukce domu
Užitná plocha přízemí:
145,7 m2
Půdorysné rozměry domu:
17,60 x 13,60 m
Počet koupelen:
2
Tvar půdorysu:
L
Typ střechy:
Rovná
Provedení fasády:
Omítka, Dřevěný obklad
Styl domu:
Moderní, Přírodní
Doporučená orientace vstupu:
Sever, Západ
Vybavení domu:
Samostatná šatna, Pracovna, Pokoj pro hosty, Hobby místnost, Krb, Terasa
Obytný prostor s jídelnou
32,43 m2
Kuchyně
24,91 m2
Ložnice
12,18 m2
Šatna
3,90 m2
Koupelna
5,88 m2
Chodba
2,14 m2
Pracovna/Pokoj pro hosty/Hobby místnost
12,24 m2
Pokoj
9,31 m2
Pokoj
9,31 m2
Koupelna
5,34 m2
Technická místnost
4,64 m2
Herna
13,63 m2
Vstupná hala
9,79 m2
Krytý vstup
8,97 m2
Krytá terasa
8,97 m2
Cena včetně DPH. Cena dále zahrnuje komínový systém, tepelné čerpadlo, podlahové vytápění, centrální rekuperaci vzduchu, dřevěná nebo plasthliníková okna.
Cena neobsahuje realizaci základové desky.
Dům k dokončení neobsahuje finální povrchy podlah a stěn (obklady, dlažby, podlahové krytiny, výmalba), zařizovací předměty koupelen a wc, interiérové dveře a zárubně, krbová kamna nebo krbovou vložku.
Cena včetně DPH. Cena dále zahrnuje komínový systém, tepelné čerpadlo, podlahové vytápění, centrální rekuperaci vzduchu, dřevěná nebo plasthliníková okna.
Cena neobsahuje realizaci základové desky.
Cena dále neobsahuje krbová kamna nebo krbovou vložku, žaluzie, kuchyňskou linku ani žádný jiný nábytek, terasu, okapové chodníky, zpevněné plochy na pozemku, přípojky inženýrských sítí, sadové úpravy, oplocení pozemku.
Moderní, prostorný bungalov s plochou střechou, ideální pro pohodlné bydlení větší rodiny. Praktickým prvkem domu je terasa a vstup, které jsou kryté přesahem střechy. Dřevěný obklad na fasádě dodává domu moderní vzhled a odkazuje na soulad s přírodou.
Srdcem domu je velkorysý obytný prostor s krbem, částečně propojený s kuchyní, která ale může být v případě potřeby úplně oddělena. Francouzská okna zajišťují dostatek denního světla v interiéru a jeho přirozené propojení s krytou terasou.
Privátní část domu je rozdělena na zónu dětí a zónu rodičů. Dětská zóna zahrnuje 2 dětské pokoje, koupelnu a rozlehlou hernu.
Ložnice rodičů má vlastní šatnu a díky francouzskému oknu i výstup na terasu. Nadstandardně velká koupelna nabízí vanu i sprchový kout.
Dále zde najdeme pokoj, který podle potřeby může sloužit jako pracovna, pokoj pro hosty, dětský pokoj nebo hobby místnost.
Zdrojem vytápění je kvalitní tepelné čerpadlo vzduch/voda s napojením na teplovodní podlahové topení.
O tepelný komfort a nízké náklady na energie se starají certifikované vnější stěny Thermo-Protect®, vybavené Klima-kontroll membránou.
Dodavatelem projektu je společnost 
.
 Její obchodní zástupce Vás bude kontaktovat v nejbližším možném termínu. 
Děkujeme za poptávku.
        Mám zájem o více informací k domu 
Dům 466.
        Prosím, kontaktujte mě.
    
* Tento údaj je povinný
											Počet obytných místností: 4
											Užitná plocha: 166,7 m2
											Cena domu na klíč: 6 970 560 Kč
										
											Počet obytných místností: 4
											Užitná plocha: 100 m2
											Cena domu na klíč: 4 181 500 Kč
										
											Počet obytných místností: 4
											Užitná plocha: 123,2 m2
											Cena domu na klíč: 5 151 608 Kč
										
											Počet obytných místností: 4
											Užitná plocha: 183 m2
											Cena domu na klíč: 7 652 146 Kč
										
LÍBÍ SE VÁM TENTO DŮM?
Poptejte nezávazně více informací
Dodavatelem projektu je společnost 
.
 Její obchodní zástupce Vás bude kontaktovat v nejbližším možném termínu. 
Děkujeme za poptávku.
        Mám zájem o více informací k domu 
Dům 466.
        Prosím, kontaktujte mě.
    
* Tento údaj je povinný
Nechcete ztrácet čas procházením našeho katalogu?
Zadejte základní parametry vašeho vysněného domu a získejte nabídky šité na míru právě Vám.
 
	Aby web fungoval jak má - souhlas s cookies
Pro co nejlepší zážitek z prohlížení webu, aby fungovalo vyhledávání, přihlašování, abychom vás neobtěžovali nevhodnou reklamou a pro mnoho dalších věcí využívá tato stránka tzv. cookies, což jsou drobné textové informace dočasně ukládané do paměti vašeho prohlížeče. K jejich použití od vás potřebujeme souhlas. Za jeho udělení v plné šíři, či podrobné nastavení vám velmi děkujeme. Vaše rozhodnutí můžete samozřejmě kdykoliv změnit a přenastavit.
Jaké cookies používáme
Nezbytné cookies jsou bezpodmínečně nutné k fungování stránek. Bez nich by nefungovaly základní funkcionality, jako např. přihlašování nebo nakupování v e-shopu. Tyto jsou vždy automaticky povolené.
Marketingové cookies pomáhají trackovat uživatele stránek za účelem nabízení cílených reklamních sdělení. Dávají smysl pro obě strany, neboť uživatel stránek obdrží reklamu na produkty, které ho skutečně zajímají, a které např. vyhledával v minulosti, a vydavatelé reklam naopak mohou tyto reklamy cíleně nabídnout.