Obytné místnosti

6

Užitná plocha celkem

287,87 m2

Zastavěná plocha

284,95 m2

Konstrukce domu

Dřevostavba

Užitná plocha přízemí:

178,17 m2

Užitná plocha patra:

109,7 m2

Půdorysné rozměry domu:

24,12 x 15,12 m

Počet parkovacích stání:

1 (garáž)

Počet koupelen:

3

Tvar půdorysu:

L

Typ střechy:

Rovná

Provedení fasády:

Omítka, Dřevěný obklad

Styl domu:

Moderní, Přírodní

Doporučená orientace vstupu:

Západ

Vybavení domu:

Samostatné WC, Samostatná spíž, Samostatná šatna, Hlavní ložnice s vlastní koupelnou, Pracovna, Pokoj pro hosty, Hobby místnost, Krb, Terasa, Garáž

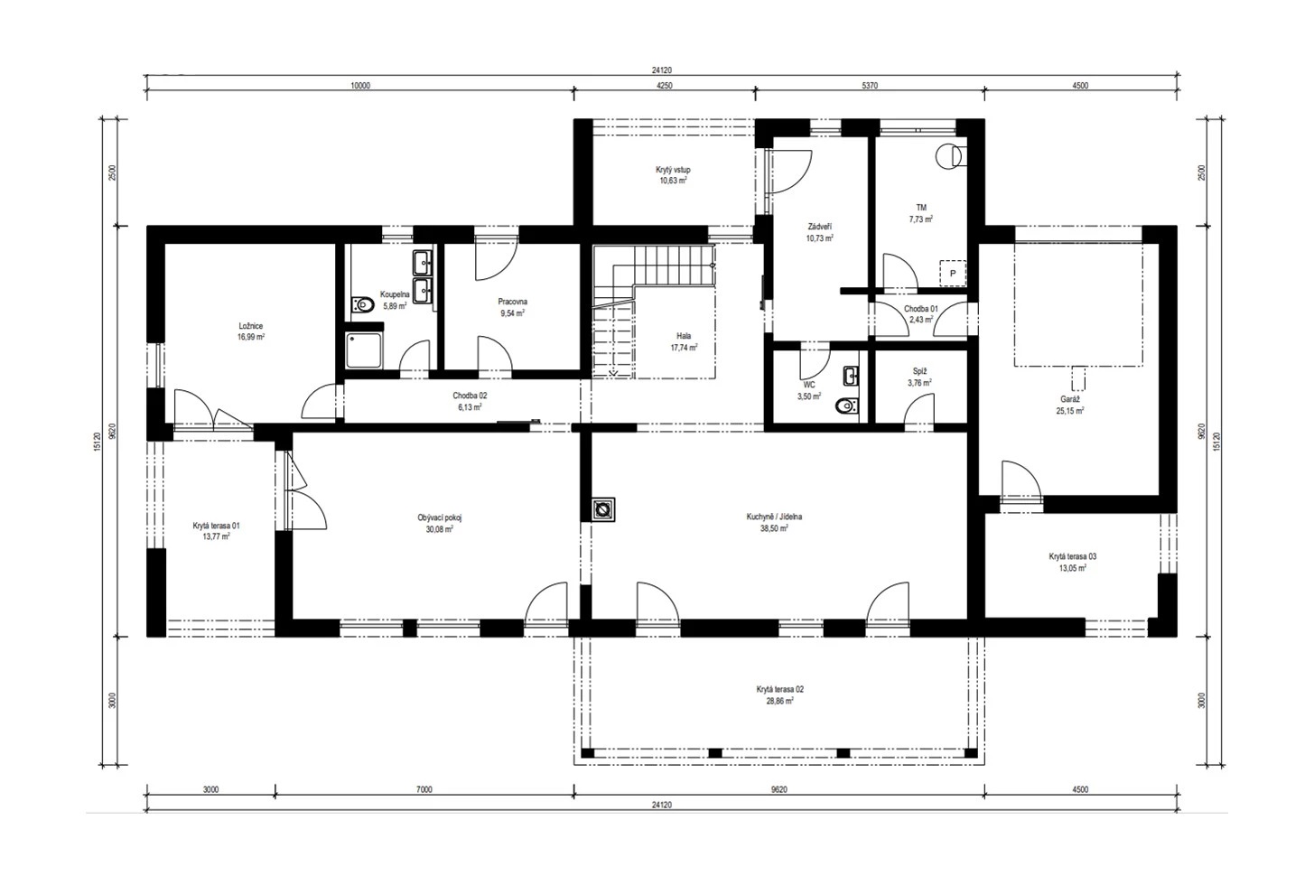
1. NP

Obývací prostor

30,08 m2

Kuchyně/Jídelna

38,50 m2

Spíž

3,76 m2

Chodba

6,13 m2

Ložnice

16,99 m2

Koupelna

5,89 m2

Pracovna/Pokoj pro hosty/Hobby místnost

9,54 m2

Hala

17,74 m2

WC

3,50 m2

Tech. místnost

7,73 m2

Zádveří

10,73 m2

Garáž

25,15 m2

Krytý vstup

10,63 m2

Krytá terasa

28,86 m2

Krytá terasa

13,05 m2

Krytá terasa

13,77 m2

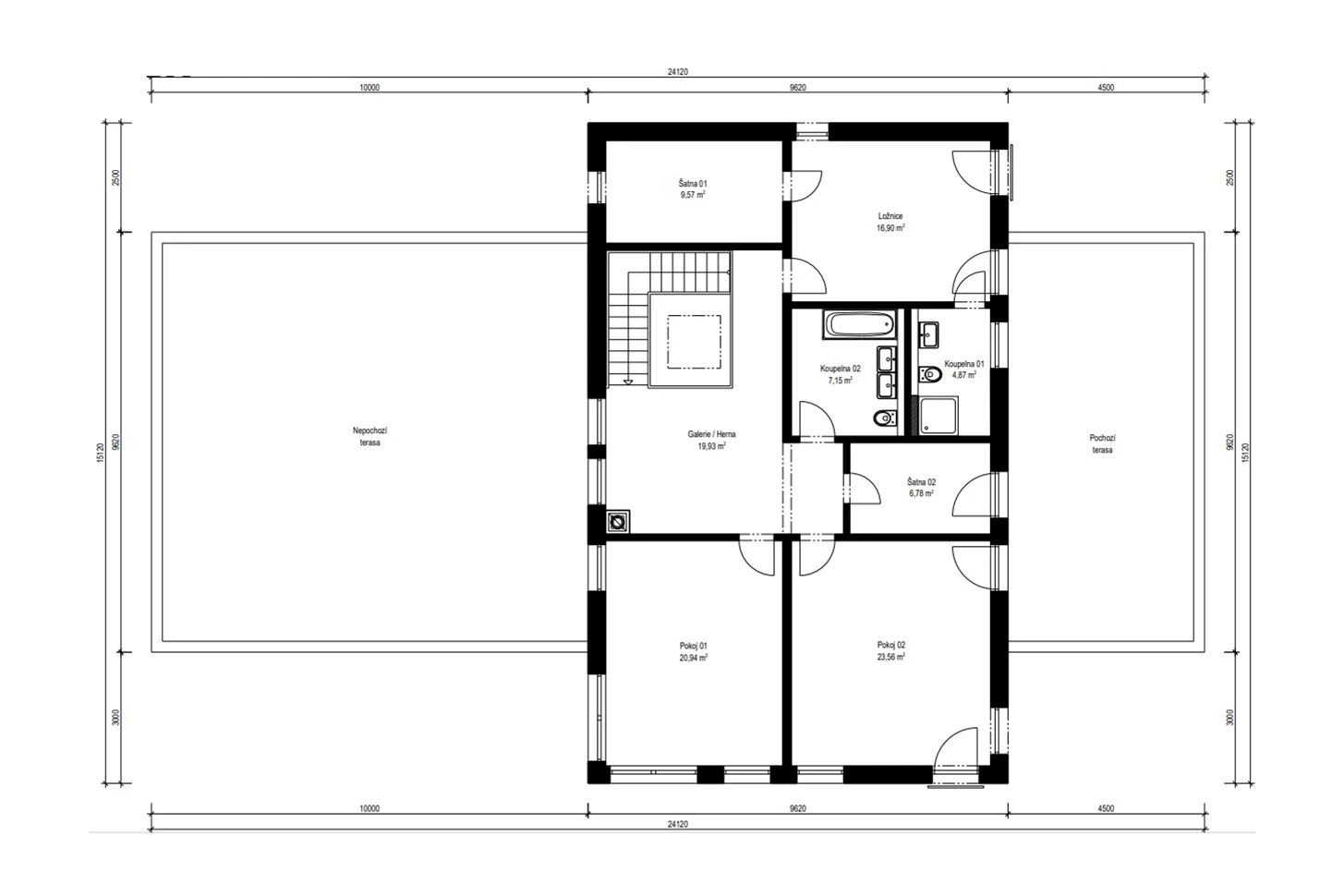
2. NP

Ložnice

16,90 m2

Šatna

9,57 m2

Koupelna

4,87 m2

Pokoj

23,56 m2

Pokoj

20,94 m2

Šatna

6,78 m2

Koupelna

7,15 m2

Galerie/Herna

19,93 m2


Cena domu k dokončení

11 797 500

Cena včetně DPH. Cena dále zahrnuje komínový systém, tepelné čerpadlo, podlahové vytápění, centrální rekuperaci vzduchu, dřevěná nebo plasthliníková okna.
Cena neobsahuje realizaci základové desky.
Dům k dokončení neobsahuje finální povrchy podlah a stěn (obklady, dlažby, podlahové krytiny, výmalba), zařizovací předměty koupelen a wc, interiérové dveře a zárubně, krbová kamna nebo krbovou vložku.

Cena domu na klíč

13 897 100

Cena včetně DPH. Cena dále zahrnuje komínový systém, tepelné čerpadlo, podlahové vytápění, centrální rekuperaci vzduchu, dřevěná nebo plasthliníková okna.
Cena neobsahuje realizaci základové desky.
Cena dále neobsahuje krbová kamna nebo krbovou vložku, žaluzie, kuchyňskou linku ani žádný jiný nábytek, terasu, okapové chodníky, zpevněné plochy na pozemku, přípojky inženýrských sítí, sadové úpravy, oplocení pozemku.

Popis stavby

Moderní, velkorysá rodinná vila s elegantními liniemi a plochou střechou, ideální pro pohodlné bydlení velké rodiny. Dům je tvořen dvěma kvádrovitými hmotami, které jsou materiálově odlišeny - zatímco jednopodlažní část má klasickou fasádu, dvoupodlažní je obložena dřevěným obkladem. Přesah hmoty horního podlaží zároveň kryje terasu v přízemí. Součástí domu je i garáž.

V přízemí je umístěn obytný velkoprostor s krbem, propojený s jídelnou a kuchyní, kde je navržen varný ostrůvek s barovým sezením. Nechybí ani spíž pro pohodlné skladování potravin. Bohaté prosklení je zárukou dokonalého prosvětlení interiéru denním světlem a ničím nerušeného výhledu do zahrady.

V přízemí dále najdeme koupelnu se sprchou, samostatné WC, ložnici a pokoj, který může podle potřeby sloužit jako pracovna, pokoj pro hosty nebo třeba hobby místnost.

V patře je navržena prostorná ložnice rodičů s vlastní koupelnou a šatnou a 2 rozlehlé dětské pokoje, které mají k dispozici další koupelnu a šatnu. Z ložnice a jednoho z pokojů je navíc výstup na terasu.

Velká galerie může sloužit jako herna pro děti nebo čítárna.

Náš tip

Zdrojem vytápění je kvalitní tepelné čerpadlo vzduch/voda s napojením na teplovodní podlahové topení.
O tepelný komfort a nízké náklady na energie se starají certifikované vnější stěny Thermo-Protect®, vybavené Klima-kontroll membránou.

POPTAT DŮM

ZAVŘÍT  

Dodavatelem projektu je společnost
.
Její obchodní zástupce Vás bude kontaktovat v nejbližším možném termínu.

Děkujeme za poptávku.

Mám zájem o více informací k domu
Dům 474.
Prosím, kontaktujte mě.

* Tento údaj je povinný

Vyplněním údajů a odesláním formuláře souhlasíte s jejich zpracováním a uchováním společností Online House. s.r.o. Více o ochraně osobních údajů.

LÍBÍ SE VÁM TENTO DŮM?
Poptejte nezávazně více informací

ZAVŘÍT  

Dodavatelem projektu je společnost
.
Její obchodní zástupce Vás bude kontaktovat v nejbližším možném termínu.

Děkujeme za poptávku.

Mám zájem o více informací k domu
Dům 474.
Prosím, kontaktujte mě.

* Tento údaj je povinný

Vyplněním údajů a odesláním formuláře souhlasíte s jejich zpracováním a uchováním společností Online House. s.r.o. Více o ochraně osobních údajů.

Nechcete ztrácet čas procházením našeho katalogu?

Zadejte základní parametry vašeho vysněného domu a získejte nabídky šité na míru právě Vám.

 ZAVŘÍT

Aby web fungoval jak má - souhlas s cookies

Pro co nejlepší zážitek z prohlížení webu, aby fungovalo vyhledávání, přihlašování, abychom vás neobtěžovali nevhodnou reklamou a pro mnoho dalších věcí využívá tato stránka tzv. cookies, což jsou drobné textové informace dočasně ukládané do paměti vašeho prohlížeče. K jejich použití od vás potřebujeme souhlas. Za jeho udělení v plné šíři, či podrobné nastavení vám velmi děkujeme. Vaše rozhodnutí můžete samozřejmě kdykoliv změnit a přenastavit.

Jaké cookies používáme

Nezbytné

Nezbytné cookies jsou bezpodmínečně nutné k fungování stránek. Bez nich by nefungovaly základní funkcionality, jako např. přihlašování nebo nakupování v e-shopu. Tyto jsou vždy automaticky povolené.

Statistické

Tyto cookies pomáhají s měřením a analýzou návštěvnosti stránek.

sembako4d sembako4d sembako4d balaitoto balaitoto sembako4d sembako4d balaitoto indosattoto bengbeng toto login bengbengtoto login bengbengtoto login bengbengtoto login bengbengtoto login bengbengtoto login bengbengtoto indosattoto indosattoto balaitoto cahayatoto cahayatoto cahayatoto cahayatoto cahayatoto indosattoto indosattoto ohtogel ohtogel ohtogel ohtogel ohtogel ohtogel ohtogel jualtoto mineraltoto

Marketingové

Marketingové cookies pomáhají trackovat uživatele stránek za účelem nabízení cílených reklamních sdělení. Dávají smysl pro obě strany, neboť uživatel stránek obdrží reklamu na produkty, které ho skutečně zajímají, a které např. vyhledával v minulosti, a vydavatelé reklam naopak mohou tyto reklamy cíleně nabídnout.

Přijmout vše Přijmout vybrané Podrobné nastavení