Nechcete ztrácet čas procházením našeho katalogu?
Zadejte základní parametry vašeho vysněného domu a získejte nabídky šité na míru právě Vám.
VÝBĚR DOMU
Obytné místnosti
5
Užitná plocha celkem
116,41 m2
Zastavěná plocha
76,84 m2
Konstrukce domu
Půdorysné rozměry domu:
8,28 x 9,28 m
Sklon střechy:
22°
Počet koupelen:
2
Tvar půdorysu:
Obdélník
Typ střechy:
Valbová
Provedení fasády:
Omítka, Dřevěný obklad
Styl domu:
Moderní, Přírodní
Doporučená orientace vstupu:
Sever, Východ
Vybavení domu:
Samostatné WC, Pracovna, Pokoj pro hosty, Hobby místnost, Krb, Terasa
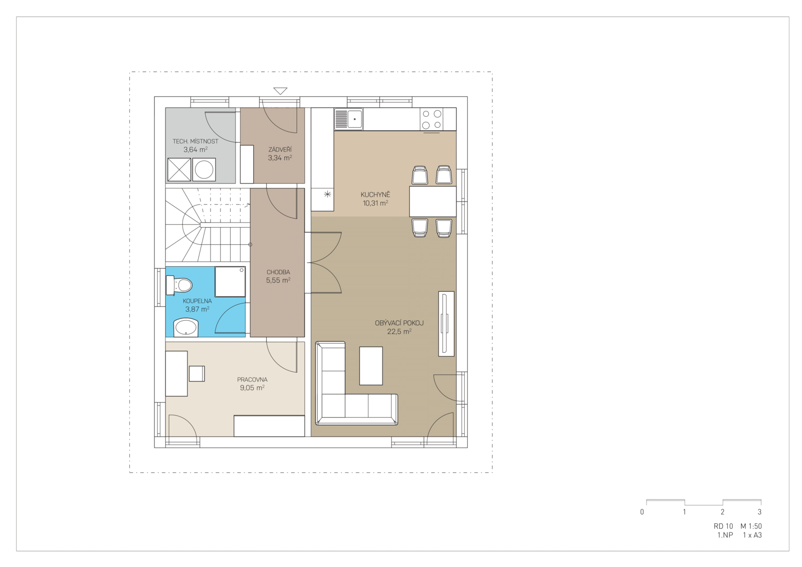
Obývací prostor
22,5 m2
Kuchyňský kout s jídelnou
10,31 m2
Pracovna/Pokoj pro hosty/Hobby místnost
9,05 m2
Koupelna
3,87 m2
Chodba
5,55 m2
Tech. místnost
3,64 m2
Zádveří
3,34 m2
Ložnice
15,3 m2
Pokoj
17,03 m2
Pokoj
11,8 m2
Koupelna
7,23 m2
WC
2,3 m2
Chodba
4,5 m2
Cena včetně DPH. Cena dále zahrnuje projektovou dokumentaci, komínový systém, bleskosvod, tepelné čerpadlo.
Cena neobsahuje realizaci základové desky.
Dům k dokončení neobsahuje finální povrchy podlah a stěn (obklady, dlažby, podlahové krytiny), zařizovací předměty koupelen a wc, interiérové dveře a zárubně, krbová kamna nebo krbovou vložku.
Cena včetně DPH. Cena dále zahrnuje projektovou dokumentaci, komínový systém, bleskosvod, tepelné čerpadlo.
Cena neobsahuje realizaci základové desky.
Cena dále neobsahuje krbová kamna nebo krbovou vložku, žaluzie, kuchyňskou linku ani žádný jiný nábytek, terasu, okapové chodníky, zpevněné plochy na pozemku, přípojky inženýrských sítí, sadové úpravy, oplocení pozemku.
Moderní, dvoupodlažní rodinný dům s plnohodnotným patrem. Dům je ideální pro pohodlné bydlení 4-5členné rodiny. Použití dřevěného obkladu na části fasády dodává domu atraktivní vzhled.
V přízemí se nachází prostorný obývací pokoj, propojený s jídelnou a kuchyňským koutem. Velká francouzská okna zajišťují dokonalé prosvětlení interiéru denním světlem a jeho přirozené propojení s exteriérem domu.
V přízemí dále najdeme menší koupelnu a pokoj, který může podle potřeby sloužit jako pracovna, pokoj pro hosty, dětský pokoj nebo hobby místnost.
V patře je umístěna ložnice rodičů, 2 prostorné dětské pokoje, samostatné WC a nadstandardně velká koupelna s vanou i sprchovým koutem.
Difuzně otevřený konstrukční systém - dřevostavba "dýchá".
Komplexní certifikovaný zateplovací systém od společnosti STO (ETICS STO Therm Wood) zaručuje minimální náklady na vytápění a zároveň zabraňuje přehřívání domu v letním období.
Zdrojem tepla je tepelné čerpadlo.
Počet obytných místností: 4
Užitná plocha: 167 m2
Cena domu na klíč: 7 300 000 Kč
Počet obytných místností: 5
Užitná plocha: 128 m2
Cena domu na klíč: 5 859 092 Kč
Počet obytných místností: 4
Užitná plocha: 75 m2
Cena domu na klíč: 4 500 000 Kč
Počet obytných místností: 6
Užitná plocha: 202,3 m2
Cena domu na klíč: 7 950 390 Kč
Nechcete ztrácet čas procházením našeho katalogu?
Zadejte základní parametry vašeho vysněného domu a získejte nabídky šité na míru právě Vám.
Aby web fungoval jak má - souhlas s cookies
Pro co nejlepší zážitek z prohlížení webu, aby fungovalo vyhledávání, přihlašování, abychom vás neobtěžovali nevhodnou reklamou a pro mnoho dalších věcí využívá tato stránka tzv. cookies, což jsou drobné textové informace dočasně ukládané do paměti vašeho prohlížeče. K jejich použití od vás potřebujeme souhlas. Za jeho udělení v plné šíři, či podrobné nastavení vám velmi děkujeme. Vaše rozhodnutí můžete samozřejmě kdykoliv změnit a přenastavit.
Jaké cookies používáme
Nezbytné cookies jsou bezpodmínečně nutné k fungování stránek. Bez nich by nefungovaly základní funkcionality, jako např. přihlašování nebo nakupování v e-shopu. Tyto jsou vždy automaticky povolené.
Marketingové cookies pomáhají trackovat uživatele stránek za účelem nabízení cílených reklamních sdělení. Dávají smysl pro obě strany, neboť uživatel stránek obdrží reklamu na produkty, které ho skutečně zajímají, a které např. vyhledával v minulosti, a vydavatelé reklam naopak mohou tyto reklamy cíleně nabídnout.