Nechcete ztrácet čas procházením našeho katalogu?
Zadejte základní parametry vašeho vysněného domu a získejte nabídky šité na míru právě Vám.
VÝBĚR DOMU
Dodavatelem projektu je společnost 
.
 Její obchodní zástupce Vás bude kontaktovat v nejbližším možném termínu. 
Děkujeme za poptávku.
        Mám zájem o více informací k domu 
Dům 335.
        Prosím, kontaktujte mě.
    
* Tento údaj je povinný
Obytné místnosti
6
Užitná plocha celkem
202,3 m2
Zastavěná plocha
167,1 m2
Konstrukce domu
Užitná plocha přízemí:
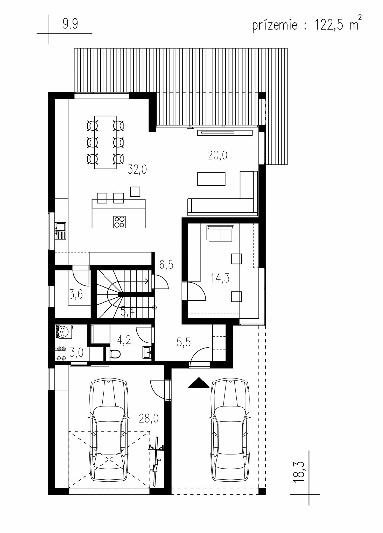
122,5 m2
Užitná plocha patra:
79,8 m2
Půdorysné rozměry domu:
18,3 x 9,9 m
Min. rozměr pozemku:
30 x 17 m
Počet parkovacích stání:
2 (garáž + kryté parkovací stání)
Počet koupelen:
2
Tvar půdorysu:
Obdélník
Typ střechy:
Valbová
Provedení fasády:
Omítka, Dřevěný obklad, Cihlový obklad (klinker)
Styl domu:
Moderní
Doporučená orientace vstupu:
Sever, Západ
Vybavení domu:
Samostatné WC, Samostatná spíž, Samostatná šatna, Pracovna, Pokoj pro hosty, Hobby místnost, Krb, Terasa, Garáž
Obývací prostor
20,0 m2
Kuch. kout s jídelnou
32,0 m2
Spíž
3,6 m2
Pracovna/Pokoj pro hosty/Hobby místnost
14,3 m2
Koupelna
4,2 m2
Technická místnost
3,0 m2
Chodba
6,5 m2
Zádveří
5,5 m2
Schodiště
5,4 m2
Garáž
28,0 m2
Ložnice
15,8 m2
Šatna
3,2 m2
Šatna
3,1 m2
Pokoj
10,2 m2
Šatna
2,0 m2
Pokoj
10,8 m2
Pokoj
10,8 m2
Koupelna
7,2 m2
WC
1,5 m2
Prádelna
3,9 m2
Chodba
11,3 m2
Cena včetně DPH. Cena kompletní projektové dokumentace včetně Průkazu energetické náročnosti budovy (PENB) a Požárně bezpečnostního řešení (PBŘ).
Dodavatel sídlí na Slovensku a v ČR primárně dodává projektovou dokumentaci. Výstavbu domu na klíč zajišťuje jen v regionech poblíž hranice se Slovenskem (Moravskoslezský, Zlínský a Jihomoravský kraj).
Cena domu na klíč bude stanovena na základě individuální poptávky.
Moderní, patrový rodinný dům s garáží, který zaujme svou velikostí a variabilitou obytných pokojů. Dům je vhodný pro pohodlné bydlení 5-6členné rodiny. Atraktivním doplňkem fasády je kombinace dřevěného a cihlového obkladu.
Dům je rozdělen na společenskou a soukromou část. Společenskou část domu tvoří obytný velkoprostor, spojený s jídelnou a kuchyňským koutem. Velké prosklené stěny ve společenské části zajišťují dostatek světla v interiéru i propojení s krytou terasou. V kuchyni je navržen varný ostrůvek s barovým sezením a také praktická spíž pro pohodlné ukládání potravin.
Dále je v přízemí umístěna koupelna se sprchovým koutem a pokoj, který může sloužit jako pracovna, pokoj pro hosty, ložnice nebo třeba hobby místnost.
V patře jsou navrženy 3 rozlehlé pokoje, koupelna s vanou i sprchovým koutem a samostatné WC. Ložnice rodičů má dvě vlastní šatny. Největší pokoj lze příčkou rozdělit na dva samostatné pokoje. V domě je navrženo velké množství úložných prostor.
Součástí domu je garáž a kryté parkovací stání vytvořené přesahem střechy.
Zdrojem vytápění je kvalitní tepelné čerpadlo vzduch/voda značky Daikin. Rozvody jsou v celém domě řešeny jako teplovodní podlahové topení.
Větrání je zajištěno pomocí rekuperační jednotky.
Dodavatelem projektu je společnost 
.
 Její obchodní zástupce Vás bude kontaktovat v nejbližším možném termínu. 
Děkujeme za poptávku.
        Mám zájem o více informací k domu 
Dům 335.
        Prosím, kontaktujte mě.
    
* Tento údaj je povinný
											Počet obytných místností: 5
											Užitná plocha: 128 m2
											Cena domu na klíč: 5 859 092 Kč
										
											Počet obytných místností: 5
											Užitná plocha: 164,04 m2
											Cena domu na klíč: 7 308 900 Kč
										
											Počet obytných místností: 5
											Užitná plocha: 144,78 m2
											Cena domu na klíč: 6 328 100 Kč
										
											Počet obytných místností: 5
											Užitná plocha: 176 m2
											Cena domu na klíč: 7 820 600 Kč
										
LÍBÍ SE VÁM TENTO DŮM?
Poptejte nezávazně více informací
Dodavatelem projektu je společnost 
.
 Její obchodní zástupce Vás bude kontaktovat v nejbližším možném termínu. 
Děkujeme za poptávku.
        Mám zájem o více informací k domu 
Dům 335.
        Prosím, kontaktujte mě.
    
* Tento údaj je povinný
Nechcete ztrácet čas procházením našeho katalogu?
Zadejte základní parametry vašeho vysněného domu a získejte nabídky šité na míru právě Vám.
 
	Aby web fungoval jak má - souhlas s cookies
Pro co nejlepší zážitek z prohlížení webu, aby fungovalo vyhledávání, přihlašování, abychom vás neobtěžovali nevhodnou reklamou a pro mnoho dalších věcí využívá tato stránka tzv. cookies, což jsou drobné textové informace dočasně ukládané do paměti vašeho prohlížeče. K jejich použití od vás potřebujeme souhlas. Za jeho udělení v plné šíři, či podrobné nastavení vám velmi děkujeme. Vaše rozhodnutí můžete samozřejmě kdykoliv změnit a přenastavit.
Jaké cookies používáme
Nezbytné cookies jsou bezpodmínečně nutné k fungování stránek. Bez nich by nefungovaly základní funkcionality, jako např. přihlašování nebo nakupování v e-shopu. Tyto jsou vždy automaticky povolené.
Marketingové cookies pomáhají trackovat uživatele stránek za účelem nabízení cílených reklamních sdělení. Dávají smysl pro obě strany, neboť uživatel stránek obdrží reklamu na produkty, které ho skutečně zajímají, a které např. vyhledával v minulosti, a vydavatelé reklam naopak mohou tyto reklamy cíleně nabídnout.