Nechcete ztrácet čas procházením našeho katalogu?
Zadejte základní parametry vašeho vysněného domu a získejte nabídky šité na míru právě Vám.
VÝBĚR DOMU
Dodavatelem projektu je společnost 
.
 Její obchodní zástupce Vás bude kontaktovat v nejbližším možném termínu. 
Děkujeme za poptávku.
        Mám zájem o více informací k domu 
Dům 592.
        Prosím, kontaktujte mě.
    
* Tento údaj je povinný
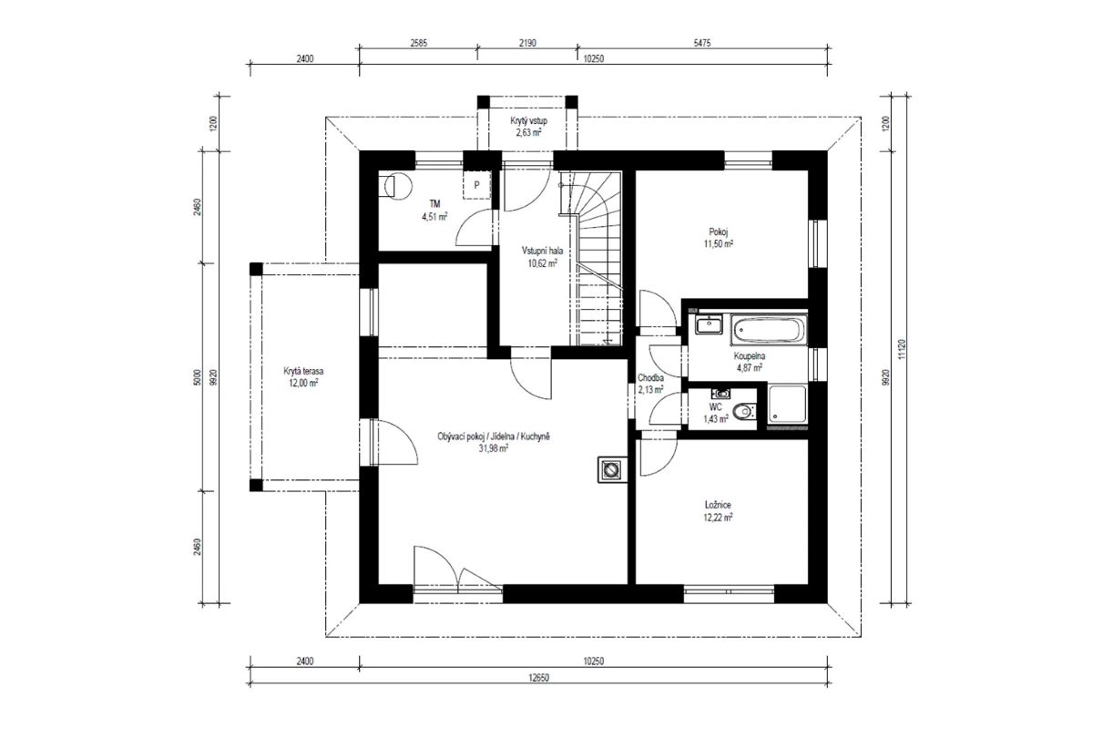
Obytné místnosti
6
Užitná plocha celkem
154,19 m2
Zastavěná plocha
116,31 m2
Konstrukce domu
Užitná plocha přízemí:
79,26 m2
Užitná plocha patra:
74,93 m2
Půdorysné rozměry domu:
12,65 x 11,12 m
Sklon střechy:
25°
Počet koupelen:
2
Tvar půdorysu:
Obdélník
Typ střechy:
Valbová
Provedení fasády:
Omítka, Dřevěný obklad
Styl domu:
Tradiční
Doporučená orientace vstupu:
Sever, Západ
Vybavení domu:
Samostatné WC, Pracovna, Pokoj pro hosty, Hobby místnost, Krb, Terasa
Obývací pokoj s jídelnou a kuch. koutem
31,98 m2
Ložnice
12,22 m2
Pokoj
11,50 m2
Koupelna
4,87 m2
WC
1,43 m2
Chodba
2,13 m2
Tech. místnost
4,51 m2
Vstupní hala
10,62 m2
Krytá terasa
12 m2
Obývací pokoj s jídelnou a kuch. koutem
37,87 m2
Ložnice
12,03 m2
Pokoj
11,50 m2
Koupelna
4,87 m2
WC
1,43 m2
Chodba
6,07 m2
Terasa
12 m2
Cena včetně DPH. Cena dále zahrnuje komínový systém, tepelné čerpadlo, podlahové vytápění, centrální rekuperaci vzduchu, dřevěná nebo plasthliníková okna.
Cena neobsahuje realizaci základové desky.
Dům k dokončení neobsahuje finální povrchy podlah a stěn (obklady, dlažby, podlahové krytiny, výmalba), zařizovací předměty koupelen a wc, interiérové dveře a zárubně, krbová kamna nebo krbovou vložku.
Cena včetně DPH. Cena dále zahrnuje komínový systém, tepelné čerpadlo, podlahové vytápění, centrální rekuperaci vzduchu, dřevěná nebo plasthliníková okna.
Cena neobsahuje realizaci základové desky.
Cena dále neobsahuje krbová kamna nebo krbovou vložku, žaluzie, kuchyňskou linku ani žádný jiný nábytek, terasu, okapové chodníky, zpevněné plochy na pozemku, přípojky inženýrských sítí, sadové úpravy, oplocení pozemku.
Patrový dvougenerační dům se 2 oddělenými bytovými jednotkami 3+kk. Dům má společný vstup a společnou vstupní halu, ale každý z bytů zaujímá celé jedno podlaží. Oba byty jsou tak naprosto samostatné a mohou být využity i ke komerčnímu pronájmu.
Byt v přízemí se skládá z velkorysého obývacího prostoru, který je propojen s jídelnou a kuchyňským koutem. Je zde navržen také krb. Velká francouzská okna dokonale prosvětlují interiér a umožňují vstup na krytou terasu.
Dále jsou zde navrženy 2 pohodlné ložnice s prostorem pro vestavěné skříně, samostatná toaleta a prostorná koupelna s vanou i sprchovým koutem.
V patře je umístěn druhý byt 3kk, který má obrovský obývací prostor, taktéž propojený s jídelnou a kuchyní. Ani zde nechybí terasa, která je s interiérem propojena francouzskými okny.
Klidová část je totožná s bytem v přízemí a je tvořena dvěma ložnicemi, samostatnou toaletou a koupelnou.
Dům je ideální pro vícegenerační bydlení stejně tak jako ke komerčnímu pronájmu.
Zdrojem vytápění je kvalitní tepelné čerpadlo vzduch/voda s napojením na teplovodní podlahové topení.
O tepelný komfort a nízké náklady na energie se starají certifikované vnější stěny Thermo-Protect®, vybavené Klima-kontroll membránou.
Dodavatelem projektu je společnost 
.
 Její obchodní zástupce Vás bude kontaktovat v nejbližším možném termínu. 
Děkujeme za poptávku.
        Mám zájem o více informací k domu 
Dům 592.
        Prosím, kontaktujte mě.
    
* Tento údaj je povinný
											Počet obytných místností: 5
											Užitná plocha: 128 m2
											Cena domu na klíč: 5 859 092 Kč
										
											Počet obytných místností: 6
											Užitná plocha: 202,3 m2
											Cena domu na klíč: 7 950 390 Kč
										
											Počet obytných místností: 5
											Užitná plocha: 164,04 m2
											Cena domu na klíč: 7 308 900 Kč
										
											Počet obytných místností: 5
											Užitná plocha: 144,78 m2
											Cena domu na klíč: 6 328 100 Kč
										
LÍBÍ SE VÁM TENTO DŮM?
Poptejte nezávazně více informací
Dodavatelem projektu je společnost 
.
 Její obchodní zástupce Vás bude kontaktovat v nejbližším možném termínu. 
Děkujeme za poptávku.
        Mám zájem o více informací k domu 
Dům 592.
        Prosím, kontaktujte mě.
    
* Tento údaj je povinný
Nechcete ztrácet čas procházením našeho katalogu?
Zadejte základní parametry vašeho vysněného domu a získejte nabídky šité na míru právě Vám.
 
	Aby web fungoval jak má - souhlas s cookies
Pro co nejlepší zážitek z prohlížení webu, aby fungovalo vyhledávání, přihlašování, abychom vás neobtěžovali nevhodnou reklamou a pro mnoho dalších věcí využívá tato stránka tzv. cookies, což jsou drobné textové informace dočasně ukládané do paměti vašeho prohlížeče. K jejich použití od vás potřebujeme souhlas. Za jeho udělení v plné šíři, či podrobné nastavení vám velmi děkujeme. Vaše rozhodnutí můžete samozřejmě kdykoliv změnit a přenastavit.
Jaké cookies používáme
Nezbytné cookies jsou bezpodmínečně nutné k fungování stránek. Bez nich by nefungovaly základní funkcionality, jako např. přihlašování nebo nakupování v e-shopu. Tyto jsou vždy automaticky povolené.
Marketingové cookies pomáhají trackovat uživatele stránek za účelem nabízení cílených reklamních sdělení. Dávají smysl pro obě strany, neboť uživatel stránek obdrží reklamu na produkty, které ho skutečně zajímají, a které např. vyhledával v minulosti, a vydavatelé reklam naopak mohou tyto reklamy cíleně nabídnout.