Nechcete ztrácet čas procházením našeho katalogu?
Zadejte základní parametry vašeho vysněného domu a získejte nabídky šité na míru právě Vám.
VÝBĚR DOMU
Dodavatelem projektu je společnost 
.
 Její obchodní zástupce Vás bude kontaktovat v nejbližším možném termínu. 
Děkujeme za poptávku.
        Mám zájem o více informací k domu 
Dům 597.
        Prosím, kontaktujte mě.
    
* Tento údaj je povinný
Obytné místnosti
8
Užitná plocha celkem
230,26 m2
Zastavěná plocha
155 m2
Konstrukce domu
Užitná plocha přízemí:
120,6 m2
Užitná plocha patra:
109,66 m2
Půdorysné rozměry domu:
22,48 x 7,54 m
Sklon střechy:
38°
Počet parkovacích stání:
2x garáž
Počet koupelen:
4
Tvar půdorysu:
Obdélník
Typ střechy:
Sedlová
Provedení fasády:
Omítka, Dřevěný obklad
Styl domu:
Tradiční
Doporučená orientace vstupu:
Sever
Vybavení domu:
Pracovna, Pokoj pro hosty, Hobby místnost, Krb, Terasa, Garáž
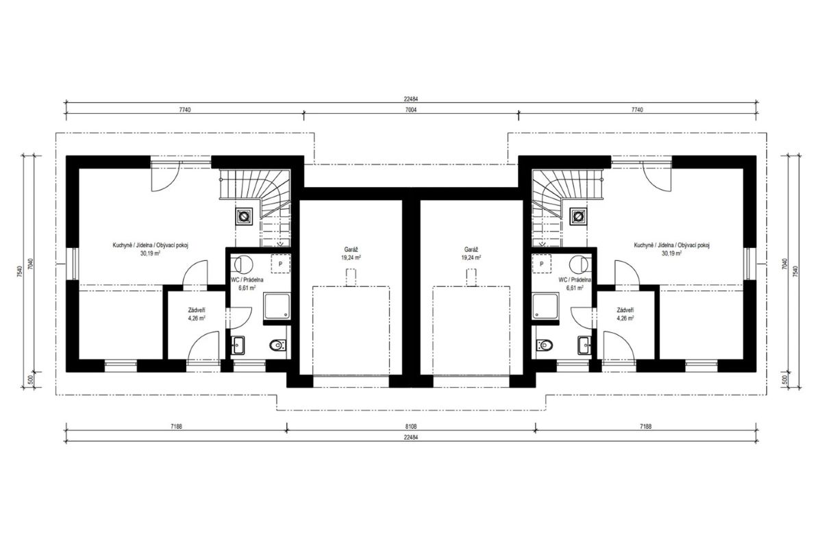
Obývací pokoj s jídelnou a kuch. koutem
30,19 m2
Koupelna/Prádelna
6,61 m2
Zádveří
4,26 m2
Garáž
19,24 m2
Ložnice
14,17 m2
Pokoj
11,41 m2
Koupelna
5,59 m2
Galerie
4,42 m2
Studio/Pracovna/Fitness
19,24 m2
Cena včetně DPH. Cena dále zahrnuje komínový systém, tepelné čerpadlo, podlahové vytápění, centrální rekuperaci vzduchu, dřevěná nebo plasthliníková okna.
Cena neobsahuje realizaci základové desky.
Dům k dokončení neobsahuje finální povrchy podlah a stěn (obklady, dlažby, podlahové krytiny, výmalba), zařizovací předměty koupelen a wc, interiérové dveře a zárubně, krbová kamna nebo krbovou vložku.
Cena včetně DPH. Cena dále zahrnuje komínový systém, tepelné čerpadlo, podlahové vytápění, centrální rekuperaci vzduchu, dřevěná nebo plasthliníková okna.
Cena neobsahuje realizaci základové desky.
Cena dále neobsahuje krbová kamna nebo krbovou vložku, žaluzie, kuchyňskou linku ani žádný jiný nábytek, terasu, okapové chodníky, zpevněné plochy na pozemku, přípojky inženýrských sítí, sadové úpravy, oplocení pozemku.
Patrový dvojdům se sedlovou střechou a garáží. Oba domy jsou identické, zrcadlově otočené, dispozice 4kk s garáží.
Každý z domů nabízí v přízemí velkorysý obytný prostor propojený s jídelnou a kuchyňským koutem, dále koupelnu se sprchovým koutem a toaletou a zádveří s navrženým prostorem pro vestavěnou skříň.
V patře jsou umístěny 2 pohodlné ložnice, koupelna s vanou a další rozlehlý prostor - studio, který může mít nejrůznější využití, od dětské herny, přes pracovnu, až po domácí tělocvičnu s fitness.
Každý z domů má svoji garáž.
Domy jsou ideální pro vícegenerační bydlení, bydlení 2 spřátelených rodin nebo ke komerčnímu pronájmu.
Zdrojem vytápění je kvalitní tepelné čerpadlo vzduch/voda s napojením na teplovodní podlahové topení.
O tepelný komfort a nízké náklady na energie se starají certifikované vnější stěny Thermo-Protect®, vybavené Klima-kontroll membránou.
Dodavatelem projektu je společnost 
.
 Její obchodní zástupce Vás bude kontaktovat v nejbližším možném termínu. 
Děkujeme za poptávku.
        Mám zájem o více informací k domu 
Dům 597.
        Prosím, kontaktujte mě.
    
* Tento údaj je povinný
LÍBÍ SE VÁM TENTO DŮM?
Poptejte nezávazně více informací
Dodavatelem projektu je společnost 
.
 Její obchodní zástupce Vás bude kontaktovat v nejbližším možném termínu. 
Děkujeme za poptávku.
        Mám zájem o více informací k domu 
Dům 597.
        Prosím, kontaktujte mě.
    
* Tento údaj je povinný
Nechcete ztrácet čas procházením našeho katalogu?
Zadejte základní parametry vašeho vysněného domu a získejte nabídky šité na míru právě Vám.
 
	Aby web fungoval jak má - souhlas s cookies
Pro co nejlepší zážitek z prohlížení webu, aby fungovalo vyhledávání, přihlašování, abychom vás neobtěžovali nevhodnou reklamou a pro mnoho dalších věcí využívá tato stránka tzv. cookies, což jsou drobné textové informace dočasně ukládané do paměti vašeho prohlížeče. K jejich použití od vás potřebujeme souhlas. Za jeho udělení v plné šíři, či podrobné nastavení vám velmi děkujeme. Vaše rozhodnutí můžete samozřejmě kdykoliv změnit a přenastavit.
Jaké cookies používáme
Nezbytné cookies jsou bezpodmínečně nutné k fungování stránek. Bez nich by nefungovaly základní funkcionality, jako např. přihlašování nebo nakupování v e-shopu. Tyto jsou vždy automaticky povolené.
Marketingové cookies pomáhají trackovat uživatele stránek za účelem nabízení cílených reklamních sdělení. Dávají smysl pro obě strany, neboť uživatel stránek obdrží reklamu na produkty, které ho skutečně zajímají, a které např. vyhledával v minulosti, a vydavatelé reklam naopak mohou tyto reklamy cíleně nabídnout.