Nechcete ztrácet čas procházením našeho katalogu?
Zadejte základní parametry vašeho vysněného domu a získejte nabídky šité na míru právě Vám.
VÝBĚR DOMU
Dodavatelem projektu je společnost 
.
 Její obchodní zástupce Vás bude kontaktovat v nejbližším možném termínu. 
Děkujeme za poptávku.
        Mám zájem o více informací k domu 
Dům 599.
        Prosím, kontaktujte mě.
    
* Tento údaj je povinný
Obytné místnosti
8
Užitná plocha celkem
209,82 m2
Zastavěná plocha
139,82 m2
Konstrukce domu
Užitná plocha přízemí:
109,4 m2
Užitná plocha patra:
100,42 m2
Půdorysné rozměry domu:
14,40 x 9,72 m
Sklon střechy:
7°
Počet koupelen:
4
Tvar půdorysu:
Obdélník
Typ střechy:
Pultová
Provedení fasády:
Omítka
Styl domu:
Moderní
Doporučená orientace vstupu:
Sever
Vybavení domu:
Samostatná šatna, Krb, Terasa
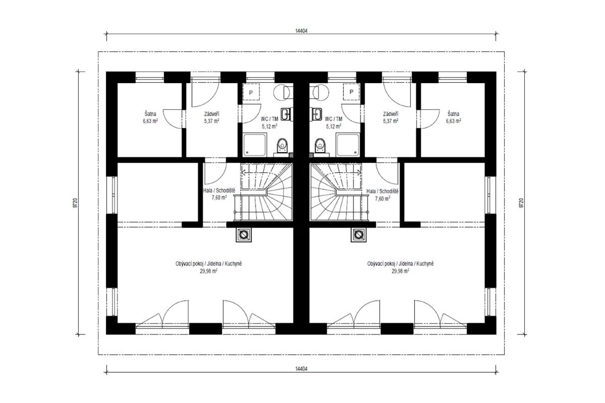
Obývací pokoj s jídelnou a kuch. koutem
29,98 m2
Hala/Schodiště
7,60 m2
Koupelna/Tech. místnost
5,12 m2
Šatna
6,63 m2
Zádveří
5,37 m2
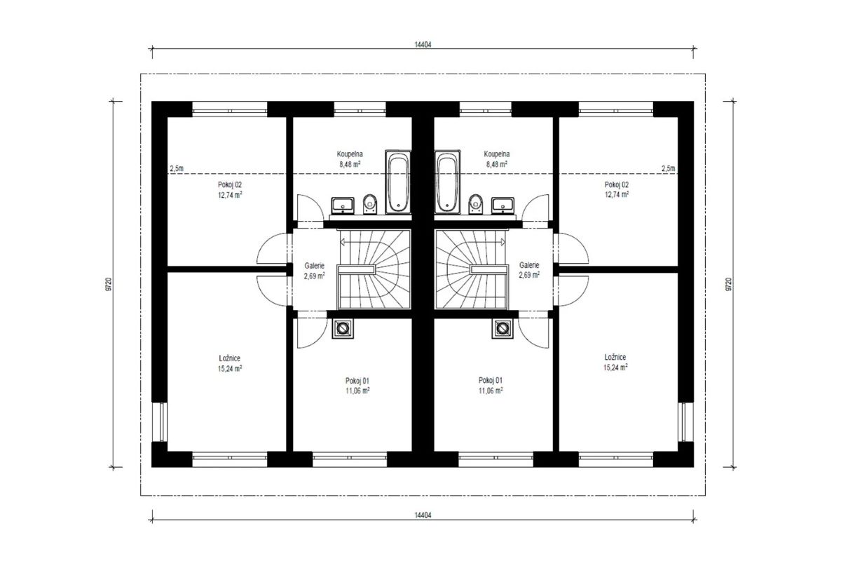
Ložnice
15,24 m2
Pokoj
12,74 m2
Pokoj
11,06 m2
Koupelna
8,48 m2
Galerie
2,69 m2
Cena včetně DPH. Cena dále zahrnuje komínový systém, tepelné čerpadlo, podlahové vytápění, centrální rekuperaci vzduchu, dřevěná nebo plasthliníková okna.
Cena neobsahuje realizaci základové desky.
Dům k dokončení neobsahuje finální povrchy podlah a stěn (obklady, dlažby, podlahové krytiny, výmalba), zařizovací předměty koupelen a wc, interiérové dveře a zárubně, krbová kamna nebo krbovou vložku.
Cena včetně DPH. Cena dále zahrnuje komínový systém, tepelné čerpadlo, podlahové vytápění, centrální rekuperaci vzduchu, dřevěná nebo plasthliníková okna.
Cena neobsahuje realizaci základové desky.
Cena dále neobsahuje krbová kamna nebo krbovou vložku, žaluzie, kuchyňskou linku ani žádný jiný nábytek, terasu, okapové chodníky, zpevněné plochy na pozemku, přípojky inženýrských sítí, sadové úpravy, oplocení pozemku.
Moderní dvojdům s pultovou střechou a identickými domy s dispozicí 4kk.
V přízemí je umístěn velkorysý obytný prostor s krbem, propojený s jídelnou a kuchyňským koutem. Velké prosklené plochy dokonale prosvětlují interiér a zároveň ho přirozeně propojují s terasou.
V přízemí dále najdeme koupelnu s toaletou a praktickou šatnu umístěnou vedle zádveří.
V obytném podkroví jsou navrženy 3 pohodlné ložnice a prostorná koupelna s vanou.
Dvojdomy mohou sloužit pro vícegenerační bydlení nebo jako bydlení spojené s investicí. V jednom domě bydlíte a druhý pronajímáte. Vaši investici tak máte doslova pod kontrolou.
Zdrojem vytápění je kvalitní tepelné čerpadlo vzduch/voda s napojením na teplovodní podlahové topení.
O tepelný komfort a nízké náklady na energie se starají certifikované vnější stěny Thermo-Protect®, vybavené Klima-kontroll membránou.
Dodavatelem projektu je společnost 
.
 Její obchodní zástupce Vás bude kontaktovat v nejbližším možném termínu. 
Děkujeme za poptávku.
        Mám zájem o více informací k domu 
Dům 599.
        Prosím, kontaktujte mě.
    
* Tento údaj je povinný
LÍBÍ SE VÁM TENTO DŮM?
Poptejte nezávazně více informací
Dodavatelem projektu je společnost 
.
 Její obchodní zástupce Vás bude kontaktovat v nejbližším možném termínu. 
Děkujeme za poptávku.
        Mám zájem o více informací k domu 
Dům 599.
        Prosím, kontaktujte mě.
    
* Tento údaj je povinný
Nechcete ztrácet čas procházením našeho katalogu?
Zadejte základní parametry vašeho vysněného domu a získejte nabídky šité na míru právě Vám.
 
	Aby web fungoval jak má - souhlas s cookies
Pro co nejlepší zážitek z prohlížení webu, aby fungovalo vyhledávání, přihlašování, abychom vás neobtěžovali nevhodnou reklamou a pro mnoho dalších věcí využívá tato stránka tzv. cookies, což jsou drobné textové informace dočasně ukládané do paměti vašeho prohlížeče. K jejich použití od vás potřebujeme souhlas. Za jeho udělení v plné šíři, či podrobné nastavení vám velmi děkujeme. Vaše rozhodnutí můžete samozřejmě kdykoliv změnit a přenastavit.
Jaké cookies používáme
Nezbytné cookies jsou bezpodmínečně nutné k fungování stránek. Bez nich by nefungovaly základní funkcionality, jako např. přihlašování nebo nakupování v e-shopu. Tyto jsou vždy automaticky povolené.
Marketingové cookies pomáhají trackovat uživatele stránek za účelem nabízení cílených reklamních sdělení. Dávají smysl pro obě strany, neboť uživatel stránek obdrží reklamu na produkty, které ho skutečně zajímají, a které např. vyhledával v minulosti, a vydavatelé reklam naopak mohou tyto reklamy cíleně nabídnout.