Nechcete ztrácet čas procházením našeho katalogu?
Zadejte základní parametry vašeho vysněného domu a získejte nabídky šité na míru právě Vám.
VÝBĚR DOMU
Dodavatelem projektu je společnost 
.
 Její obchodní zástupce Vás bude kontaktovat v nejbližším možném termínu. 
Děkujeme za poptávku.
        Mám zájem o více informací k domu 
Dům 169.
        Prosím, kontaktujte mě.
    
* Tento údaj je povinný
Obytné místnosti
3
Užitná plocha celkem
81,8 m2
Zastavěná plocha
56,7 m2
Konstrukce domu
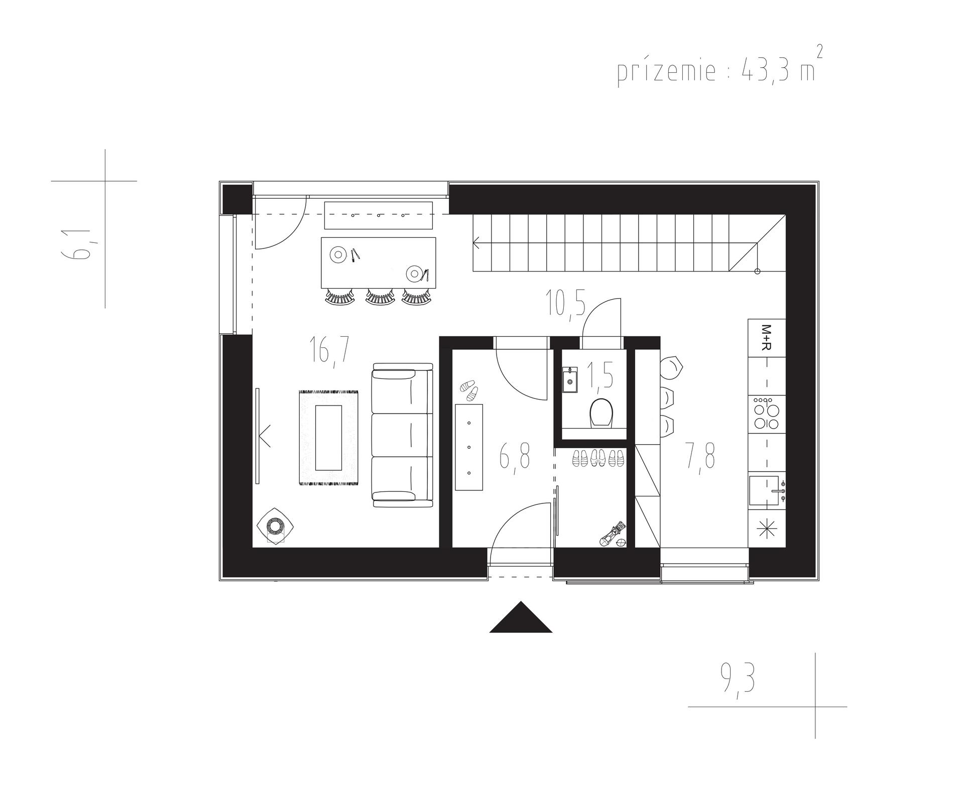
Užitná plocha přízemí:
43,3 m2
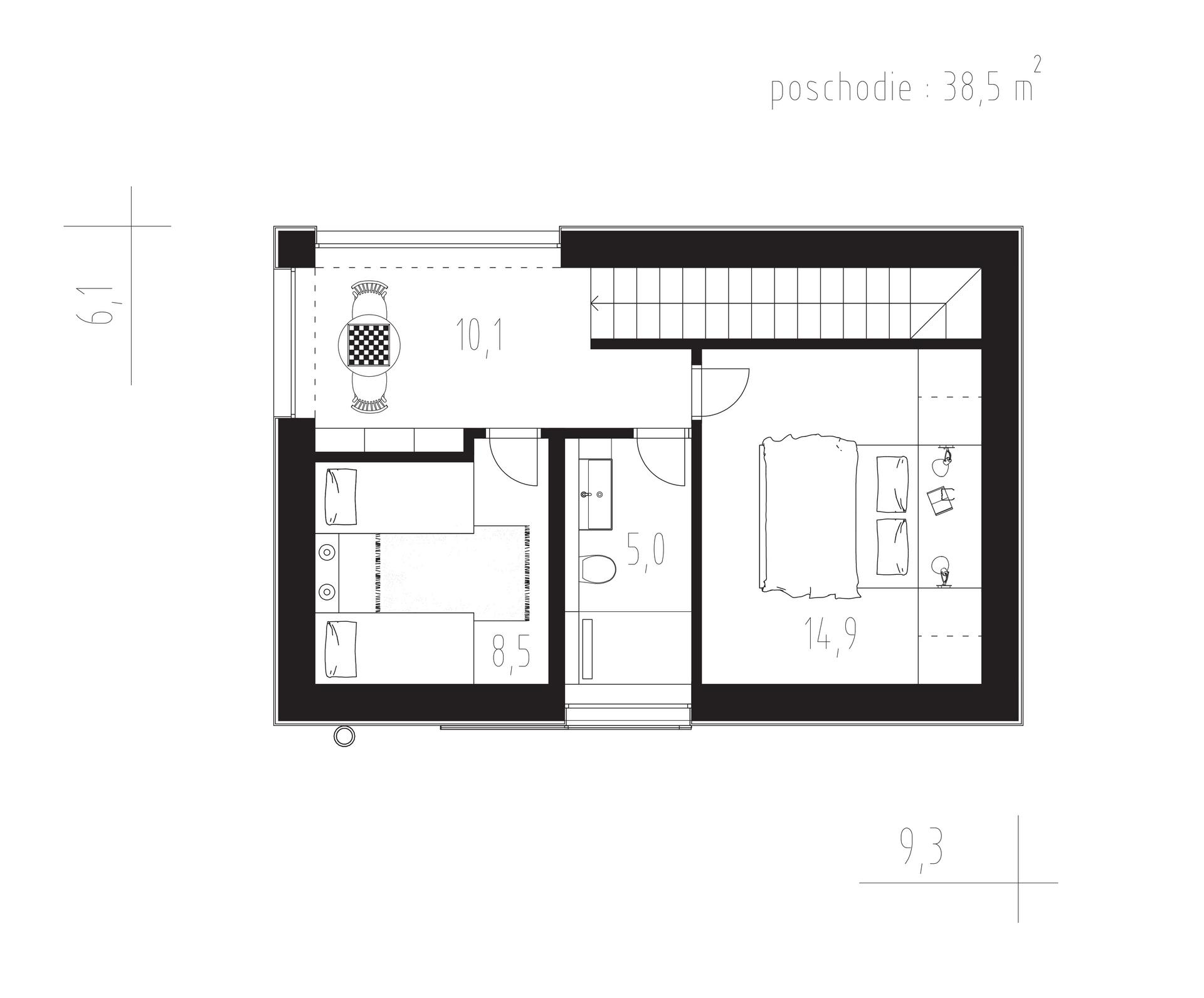
Užitná plocha patra:
38,5 m2
Půdorysné rozměry domu:
9,3 x 6,1 m
Výška hřebenu střechy:
8,6 m
Min. rozměr pozemku:
16,3 x 13,1 m
Počet koupelen:
1
Tvar půdorysu:
Obdélník
Typ střechy:
Pultová
Provedení fasády:
Dřevěný obklad
Styl domu:
Moderní, Přírodní
Doporučená orientace vstupu:
Sever, Východ
Vybavení domu:
Samostatné WC, Samostatná šatna, Pracovna, Hobby místnost, Krb, Terasa
Obývací prostor s jídelnou
16,7 m2
Kuchyňský kout
7,8 m2
Hala/Schodiště
10,5 m2
WC
1,5 m2
Sklad/Šatna
1,8 m2
Zádveří
6,8 m2
Hala/Čítárna/Herna
10,1 m2
Ložnice
14,9 m2
Ložnice
8,5 m2
Koupelna s toaletou
5 m2
Cena včetně DPH. Cena kompletní projektové dokumentace včetně Průkazu energetické náročnosti budovy (PENB) a Požárně bezpečnostního řešení (PBŘ).
Dodavatel sídlí na Slovensku a v ČR primárně dodává projektovou dokumentaci. Výstavbu domu na klíč zajišťuje jen v regionech poblíž hranice se Slovenskem (Moravskoslezský, Zlínský a Jihomoravský kraj).
Cena domu na klíč bude stanovena na základě individuální poptávky.
Jednoduchý, minimalistický 2podlažní dům s malou zastavěnou plochou, vhodný jako chata obklopená přírodou. Respekt k okolní přírodě vyjadřuje dřevěný obklad použitý na fasádě a velké prosklené plochy, které zajišťují dokonalé prosvětlení interiéru denním světlem a ničím nerušený výhled do okolí.
Do objektu se vstupuje přes zádveří, které nabízí oddělený úložný prostor na lyže a turistické vybavení. Obývací prostor s jídelnou je přes halu propojen s kuchyňským koutem. Pro navození útulné atmosféry zejména v zimních měsících zde nechybí ani krb.
V patře najdeme 2 pohodlné ložnice a koupelnu s toaletou. Hala prosvětlená velkými okny může být využita jako herna, čítárna nebo pracovna.
Zdrojem vytápění je kvalitní tepelné čerpadlo vzduch/voda značky Daikin. Rozvody jsou v celém domě řešeny jako teplovodní podlahové topení.
Větrání je zajištěno pomocí rekuperační jednotky.
Dodavatelem projektu je společnost 
.
 Její obchodní zástupce Vás bude kontaktovat v nejbližším možném termínu. 
Děkujeme za poptávku.
        Mám zájem o více informací k domu 
Dům 169.
        Prosím, kontaktujte mě.
    
* Tento údaj je povinný
										Počet obytných místností: 3
										Užitná plocha: 88,4 m2
										Cena domu na klíč: 3 562 520 Kč
									
											Počet obytných místností: 4
											Užitná plocha: 106 m2
											Cena domu na klíč: 4 165 800 Kč
										
											Počet obytných místností: 4
											Užitná plocha: 107 m2
											Cena domu na klíč: 5 390 316 Kč
										
LÍBÍ SE VÁM TENTO DŮM?
Poptejte nezávazně více informací
Dodavatelem projektu je společnost 
.
 Její obchodní zástupce Vás bude kontaktovat v nejbližším možném termínu. 
Děkujeme za poptávku.
        Mám zájem o více informací k domu 
Dům 169.
        Prosím, kontaktujte mě.
    
* Tento údaj je povinný
Nechcete ztrácet čas procházením našeho katalogu?
Zadejte základní parametry vašeho vysněného domu a získejte nabídky šité na míru právě Vám.
 
	Aby web fungoval jak má - souhlas s cookies
Pro co nejlepší zážitek z prohlížení webu, aby fungovalo vyhledávání, přihlašování, abychom vás neobtěžovali nevhodnou reklamou a pro mnoho dalších věcí využívá tato stránka tzv. cookies, což jsou drobné textové informace dočasně ukládané do paměti vašeho prohlížeče. K jejich použití od vás potřebujeme souhlas. Za jeho udělení v plné šíři, či podrobné nastavení vám velmi děkujeme. Vaše rozhodnutí můžete samozřejmě kdykoliv změnit a přenastavit.
Jaké cookies používáme
Nezbytné cookies jsou bezpodmínečně nutné k fungování stránek. Bez nich by nefungovaly základní funkcionality, jako např. přihlašování nebo nakupování v e-shopu. Tyto jsou vždy automaticky povolené.
Marketingové cookies pomáhají trackovat uživatele stránek za účelem nabízení cílených reklamních sdělení. Dávají smysl pro obě strany, neboť uživatel stránek obdrží reklamu na produkty, které ho skutečně zajímají, a které např. vyhledával v minulosti, a vydavatelé reklam naopak mohou tyto reklamy cíleně nabídnout.