Nechcete ztrácet čas procházením našeho katalogu?
Zadejte základní parametry vašeho vysněného domu a získejte nabídky šité na míru právě Vám.
VÝBĚR DOMU
Dodavatelem projektu je společnost 
.
 Její obchodní zástupce Vás bude kontaktovat v nejbližším možném termínu. 
Děkujeme za poptávku.
        Mám zájem o více informací k domu 
Dům 198.
        Prosím, kontaktujte mě.
    
* Tento údaj je povinný
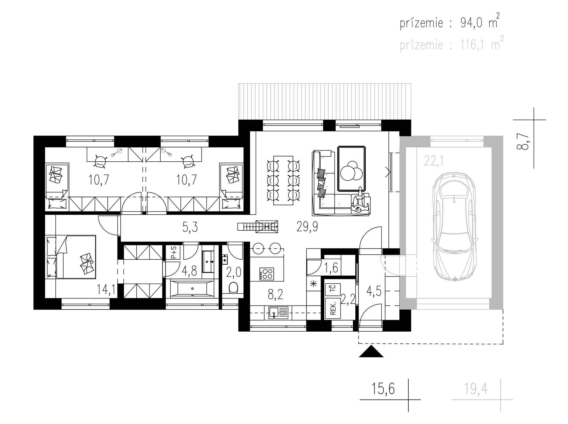
Obytné místnosti
4
Užitná plocha celkem
94 m2
Zastavěná plocha
122,2 m2
Konstrukce domu
Užitná plocha přízemí:
94 m2
Půdorysné rozměry domu:
15,6 x 8,7 m
Výška hřebenu střechy:
5,8 m
Počet parkovacích stání:
možnost připojení garáže
Počet koupelen:
1
Tvar půdorysu:
Obdélník
Typ střechy:
Rovná
Provedení fasády:
Omítka
Styl domu:
Moderní
Doporučená orientace vstupu:
Sever, Východ
Vybavení domu:
Samostatné WC, Samostatná spíž, Samostatná šatna, Terasa
Obývací prostor s jídelnou
29,9 m2
Kuchyňský kout
8,2 m2
Spíž
1,6 m2
Chodba
5,3 m2
WC
2 m2
Koupelna
4,8 m2
Ložnice se šatnou
14,1 m2
Pokoj
10,7 m2
Pokoj
10,7 m2
Tech. místnost
2,2 m2
Zádveří
4,5 m2
Cena včetně DPH. Cena kompletní projektové dokumentace včetně Průkazu energetické náročnosti budovy (PENB) a Požárně bezpečnostního řešení (PBŘ).
Dodavatel sídlí na Slovensku a v ČR primárně dodává projektovou dokumentaci. Výstavbu domu na klíč zajišťuje jen v regionech poblíž hranice se Slovenskem (Moravskoslezský, Zlínský a Jihomoravský kraj).
Cena domu na klíč bude stanovena na základě individuální poptávky.
Jednoduchý, nadčasový bungalov s kombinací ploché a pultové střechy, charakteristický čistými, elegantními liniemii.
V části domu s pultovou střechou je umístěna společenská část domu - velkorysý obytný prostor, propojený s jídelnou a kuchyňským koutem. Nechybí ani praktická spíž pro pohodlné skladování potravin. Velká francouzská okna zajišťují dokonalé prosvětlení interiéru a jeho propojení s terasou.
V části domu s plochou střechou se nachází privátní zóna se 2 dětskými pokoji a ložnicí rodičů, která má vlastní šatnu.
K domu je možné připojit garáž (není součástí projektové dokumentace).
Zdrojem vytápění je kvalitní tepelné čerpadlo vzduch/voda značky Daikin. Rozvody jsou v celém domě řešeny jako teplovodní podlahové topení.
Větrání je zajištěno pomocí rekuperační jednotky.
Dodavatelem projektu je společnost 
.
 Její obchodní zástupce Vás bude kontaktovat v nejbližším možném termínu. 
Děkujeme za poptávku.
        Mám zájem o více informací k domu 
Dům 198.
        Prosím, kontaktujte mě.
    
* Tento údaj je povinný
										Počet obytných místností: 4
										Užitná plocha: 109,4 m2
										Cena domu na klíč: 4 574 561 Kč
									
										Počet obytných místností: 4
										Užitná plocha: 129 m2
										Cena domu na klíč: 5 394 135 Kč
									
											Počet obytných místností: 4
											Užitná plocha: 166,7 m2
											Cena domu na klíč: 6 970 560 Kč
										
											Počet obytných místností: 4
											Užitná plocha: 100 m2
											Cena domu na klíč: 4 181 500 Kč
										
LÍBÍ SE VÁM TENTO DŮM?
Poptejte nezávazně více informací
Dodavatelem projektu je společnost 
.
 Její obchodní zástupce Vás bude kontaktovat v nejbližším možném termínu. 
Děkujeme za poptávku.
        Mám zájem o více informací k domu 
Dům 198.
        Prosím, kontaktujte mě.
    
* Tento údaj je povinný
Nechcete ztrácet čas procházením našeho katalogu?
Zadejte základní parametry vašeho vysněného domu a získejte nabídky šité na míru právě Vám.
 
	Aby web fungoval jak má - souhlas s cookies
Pro co nejlepší zážitek z prohlížení webu, aby fungovalo vyhledávání, přihlašování, abychom vás neobtěžovali nevhodnou reklamou a pro mnoho dalších věcí využívá tato stránka tzv. cookies, což jsou drobné textové informace dočasně ukládané do paměti vašeho prohlížeče. K jejich použití od vás potřebujeme souhlas. Za jeho udělení v plné šíři, či podrobné nastavení vám velmi děkujeme. Vaše rozhodnutí můžete samozřejmě kdykoliv změnit a přenastavit.
Jaké cookies používáme
Nezbytné cookies jsou bezpodmínečně nutné k fungování stránek. Bez nich by nefungovaly základní funkcionality, jako např. přihlašování nebo nakupování v e-shopu. Tyto jsou vždy automaticky povolené.
Marketingové cookies pomáhají trackovat uživatele stránek za účelem nabízení cílených reklamních sdělení. Dávají smysl pro obě strany, neboť uživatel stránek obdrží reklamu na produkty, které ho skutečně zajímají, a které např. vyhledával v minulosti, a vydavatelé reklam naopak mohou tyto reklamy cíleně nabídnout.