Nechcete ztrácet čas procházením našeho katalogu?
Zadejte základní parametry vašeho vysněného domu a získejte nabídky šité na míru právě Vám.
VÝBĚR DOMU
Dodavatelem projektu je společnost 
.
 Její obchodní zástupce Vás bude kontaktovat v nejbližším možném termínu. 
Děkujeme za poptávku.
        Mám zájem o více informací k domu 
Dům 203.
        Prosím, kontaktujte mě.
    
* Tento údaj je povinný
Obytné místnosti
4
Užitná plocha celkem
143 m2
Zastavěná plocha
121,6 m2
Konstrukce domu
Užitná plocha přízemí:
85,8 m2
Užitná plocha patra:
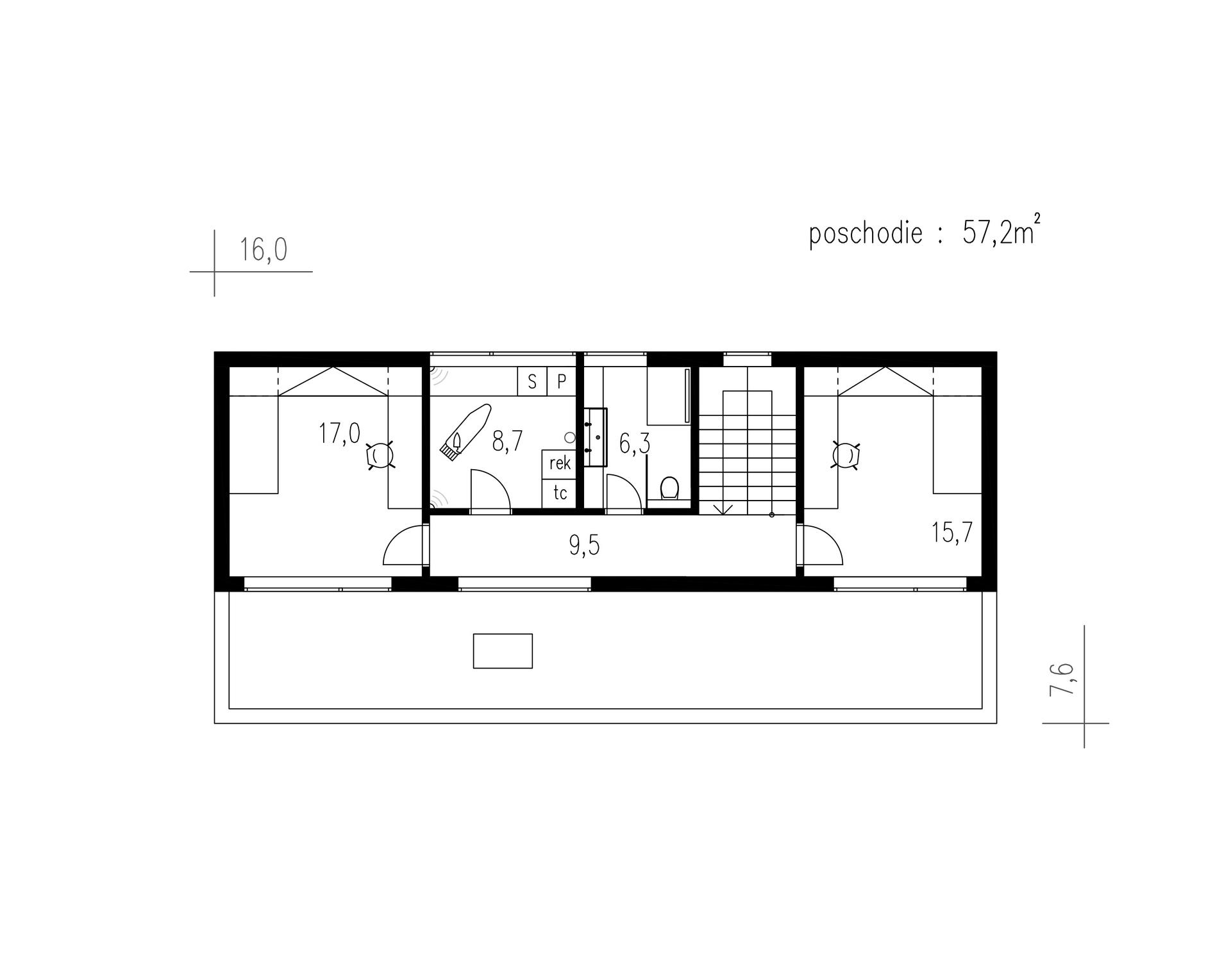
57,2 m2
Půdorysné rozměry domu:
16 x 7,6 m
Výška hřebenu střechy:
6,7 m
Min. rozměr pozemku:
23 x 16 m
Počet koupelen:
2
Tvar půdorysu:
Obdélník
Typ střechy:
Rovná
Provedení fasády:
Omítka
Styl domu:
Moderní
Doporučená orientace vstupu:
Sever, Západ
Vybavení domu:
Samostatné WC, Samostatná spíž, Krb, Terasa
Obývací prostor
17,5 m2
Kuchyně s jídelnou
22,5 m2
Sklad potravin
2,6 m2
Chodba
5,7 m2
Ložnice
15,7 m2
WC
2,5 m2
Koupelna
4,9 m2
Schodiště
6 m2
Sklad
2 m2
Zádveří
6,4 m2
Chodba
9,5 m2
Pokoj
17 m2
Pokoj
15,7 m2
Koupelna
6,3 m2
Tech. místnost/Sklad
8,7 m2
Cena včetně DPH. Cena kompletní projektové dokumentace včetně Průkazu energetické náročnosti budovy (PENB) a Požárně bezpečnostního řešení (PBŘ).
Dodavatel sídlí na Slovensku a v ČR primárně dodává projektovou dokumentaci. Výstavbu domu na klíč zajišťuje jen v regionech poblíž hranice se Slovenskem (Moravskoslezský, Zlínský a Jihomoravský kraj).
Cena domu na klíč bude stanovena na základě individuální poptávky.
Moderní, dvoupodlažní rodinný dům s plochou střechou a elegantním, nadčasovým designem. Charakteristickými prvky jsou velké prosklené plochy a terasy překryté přesahem střechy.
V přízemí se nachází obytný velkoprostor s jídelnou a kuchyňským koutem, kde nechybí spíž pro pohodlné skladování potravin. Velké prosklené plochy zajišťují dostatek denního světla v interiéru a přirozené propojení s terasou.
V přízemí je dále navržena ložnice rodičů, která má vlastní terasu, koupelna s vanou a samostatné wc.
V horním podlaží jsou umístěny 2 dětské pokoje, koupelna s toaletou a velká technická místnost, sloužící také jako prádelna a sklad.
Zdrojem vytápění je kvalitní tepelné čerpadlo vzduch/voda značky Daikin. Rozvody jsou v celém domě řešeny jako teplovodní podlahové topení.
Větrání je zajištěno pomocí rekuperační jednotky.
Dodavatelem projektu je společnost 
.
 Její obchodní zástupce Vás bude kontaktovat v nejbližším možném termínu. 
Děkujeme za poptávku.
        Mám zájem o více informací k domu 
Dům 203.
        Prosím, kontaktujte mě.
    
* Tento údaj je povinný
										Počet obytných místností: 4
										Užitná plocha: 126,5 m2
										Cena domu na klíč: 4 971 450 Kč
									
										Počet obytných místností: 5
										Užitná plocha: 161,1 m2
										Cena domu na klíč: 5 796 750 Kč
									
											Počet obytných místností: 4
											Užitná plocha: 126,5 m2
											Cena domu na klíč: 4 971 450 Kč
										
											Počet obytných místností: 5
											Užitná plocha: 122,5 m2
											Cena domu na klíč: 4 814 250 Kč
										
LÍBÍ SE VÁM TENTO DŮM?
Poptejte nezávazně více informací
Dodavatelem projektu je společnost 
.
 Její obchodní zástupce Vás bude kontaktovat v nejbližším možném termínu. 
Děkujeme za poptávku.
        Mám zájem o více informací k domu 
Dům 203.
        Prosím, kontaktujte mě.
    
* Tento údaj je povinný
Nechcete ztrácet čas procházením našeho katalogu?
Zadejte základní parametry vašeho vysněného domu a získejte nabídky šité na míru právě Vám.
 
	Aby web fungoval jak má - souhlas s cookies
Pro co nejlepší zážitek z prohlížení webu, aby fungovalo vyhledávání, přihlašování, abychom vás neobtěžovali nevhodnou reklamou a pro mnoho dalších věcí využívá tato stránka tzv. cookies, což jsou drobné textové informace dočasně ukládané do paměti vašeho prohlížeče. K jejich použití od vás potřebujeme souhlas. Za jeho udělení v plné šíři, či podrobné nastavení vám velmi děkujeme. Vaše rozhodnutí můžete samozřejmě kdykoliv změnit a přenastavit.
Jaké cookies používáme
Nezbytné cookies jsou bezpodmínečně nutné k fungování stránek. Bez nich by nefungovaly základní funkcionality, jako např. přihlašování nebo nakupování v e-shopu. Tyto jsou vždy automaticky povolené.
Marketingové cookies pomáhají trackovat uživatele stránek za účelem nabízení cílených reklamních sdělení. Dávají smysl pro obě strany, neboť uživatel stránek obdrží reklamu na produkty, které ho skutečně zajímají, a které např. vyhledával v minulosti, a vydavatelé reklam naopak mohou tyto reklamy cíleně nabídnout.