Nechcete ztrácet čas procházením našeho katalogu?
Zadejte základní parametry vašeho vysněného domu a získejte nabídky šité na míru právě Vám.
VÝBĚR DOMU
Dodavatelem projektu je společnost 
.
 Její obchodní zástupce Vás bude kontaktovat v nejbližším možném termínu. 
Děkujeme za poptávku.
        Mám zájem o více informací k domu 
Dům 204.
        Prosím, kontaktujte mě.
    
* Tento údaj je povinný
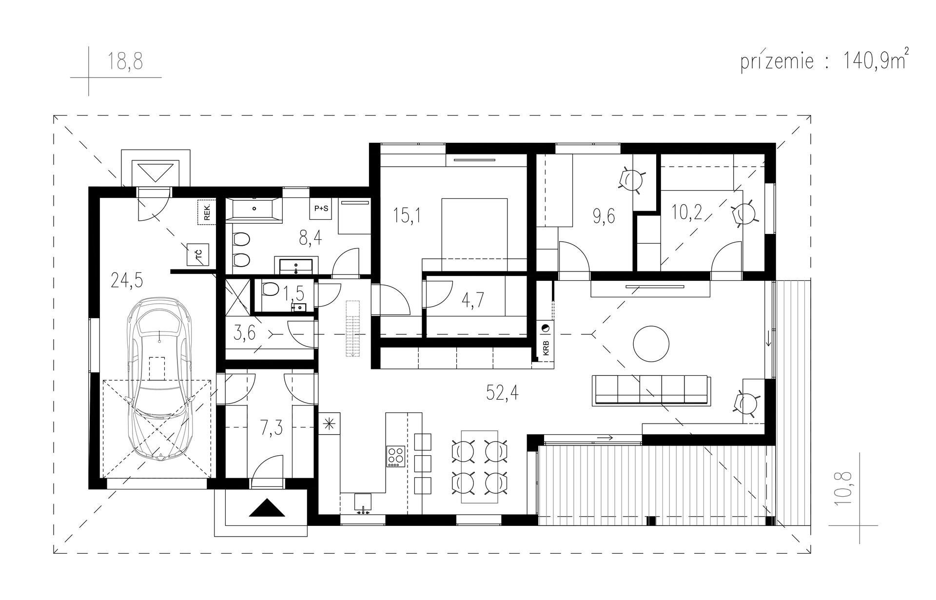
Obytné místnosti
4
Užitná plocha celkem
140,9 m2
Zastavěná plocha
190,8 m2
Konstrukce domu
Užitná plocha přízemí:
140,9 m2
Půdorysné rozměry domu:
18,8 x 10,8 m
Výška hřebenu střechy:
5,9 m
Min. rozměr pozemku:
25,8 x 18,8 m
Počet parkovacích stání:
1 (garáž)
Počet koupelen:
1
Tvar půdorysu:
Obdélník
Typ střechy:
Valbová
Provedení fasády:
Omítka
Styl domu:
Tradiční
Doporučená orientace vstupu:
Jih, Západ
Vybavení domu:
Samostatné WC, Samostatná šatna, Krb, Terasa, Garáž
Obývací prostor s jídelnou a kuch. koutem
52,4 m2
Sklad
3,6 m2
WC
1,5 m2
Ložnice
15,1 m2
Šatna
4,7 m2
Koupelna
8,4 m2
Pokoj
10,2 m2
Pokoj
9,6 m2
Zádveří
7,3 m2
Garáž/Tech. místnost
24,5 m2
Cena včetně DPH. Cena kompletní projektové dokumentace včetně Průkazu energetické náročnosti budovy (PENB) a Požárně bezpečnostního řešení (PBŘ).
Dodavatel sídlí na Slovensku a v ČR primárně dodává projektovou dokumentaci. Výstavbu domu na klíč zajišťuje jen v regionech poblíž hranice se Slovenskem (Moravskoslezský, Zlínský a Jihomoravský kraj).
Cena domu na klíč bude stanovena na základě individuální poptávky.
Kompaktní 4pokojový rodinný dům typu bungalov s efektivně využitým půdorysem s minimem chodeb. Dům je ideální pro pohodlné bydlení 4členné domácnosti. Charakteristickým a zároveň praktickým prvkem je terasa chráněná přesahem střechy.
Srdcem domu je obytný velkoprostor s krbem, propojený s jídelnou a kuchyňským koutem. Velká francouzská okna zajišťují dokonalé prosvětlení interiéru denním světlem a ničím nerušený výhled do zahrady.
V domě jsou dále umístěny 2 dětské pokoje a ložnice rodičů s vlastní šatnou. Nadstandardně velká koupelna nabízí vanu i sprchový kout.
V domě je navrženo velké množství úložných prostor - samostatný sklad, šatna, vestavěné skříně v zádveří a obytných místnostech. Další skladovací plocha je vytvořena v podstřešním prostoru, přístupném skládacím stropním schodištěm.
Součástí domu je garáž.
Zdrojem vytápění je kvalitní tepelné čerpadlo vzduch/voda značky Daikin. Rozvody jsou v celém domě řešeny jako teplovodní podlahové topení.
Větrání je zajištěno pomocí rekuperační jednotky.
Dodavatelem projektu je společnost 
.
 Její obchodní zástupce Vás bude kontaktovat v nejbližším možném termínu. 
Děkujeme za poptávku.
        Mám zájem o více informací k domu 
Dům 204.
        Prosím, kontaktujte mě.
    
* Tento údaj je povinný
										Počet obytných místností: 4
										Užitná plocha: 100 m2
										Cena domu na klíč: 4 181 500 Kč
									
										Počet obytných místností: 4
										Užitná plocha: 112,4 m2
										Cena domu na klíč: 4 683 280 Kč
									
										Počet obytných místností: 4
										Užitná plocha: 120,3 m2
										Cena domu na klíč: 4 130 985 Kč
									
											Počet obytných místností: 4
											Užitná plocha: 142 m2
											Cena domu na klíč: 5 937 730 Kč
										
LÍBÍ SE VÁM TENTO DŮM?
Poptejte nezávazně více informací
Dodavatelem projektu je společnost 
.
 Její obchodní zástupce Vás bude kontaktovat v nejbližším možném termínu. 
Děkujeme za poptávku.
        Mám zájem o více informací k domu 
Dům 204.
        Prosím, kontaktujte mě.
    
* Tento údaj je povinný
Nechcete ztrácet čas procházením našeho katalogu?
Zadejte základní parametry vašeho vysněného domu a získejte nabídky šité na míru právě Vám.
 
	Aby web fungoval jak má - souhlas s cookies
Pro co nejlepší zážitek z prohlížení webu, aby fungovalo vyhledávání, přihlašování, abychom vás neobtěžovali nevhodnou reklamou a pro mnoho dalších věcí využívá tato stránka tzv. cookies, což jsou drobné textové informace dočasně ukládané do paměti vašeho prohlížeče. K jejich použití od vás potřebujeme souhlas. Za jeho udělení v plné šíři, či podrobné nastavení vám velmi děkujeme. Vaše rozhodnutí můžete samozřejmě kdykoliv změnit a přenastavit.
Jaké cookies používáme
Nezbytné cookies jsou bezpodmínečně nutné k fungování stránek. Bez nich by nefungovaly základní funkcionality, jako např. přihlašování nebo nakupování v e-shopu. Tyto jsou vždy automaticky povolené.
Marketingové cookies pomáhají trackovat uživatele stránek za účelem nabízení cílených reklamních sdělení. Dávají smysl pro obě strany, neboť uživatel stránek obdrží reklamu na produkty, které ho skutečně zajímají, a které např. vyhledával v minulosti, a vydavatelé reklam naopak mohou tyto reklamy cíleně nabídnout.