Nechcete ztrácet čas procházením našeho katalogu?
Zadejte základní parametry vašeho vysněného domu a získejte nabídky šité na míru právě Vám.
VÝBĚR DOMU
Dodavatelem projektu je společnost 
.
 Její obchodní zástupce Vás bude kontaktovat v nejbližším možném termínu. 
Děkujeme za poptávku.
        Mám zájem o více informací k domu 
Dům 304.
        Prosím, kontaktujte mě.
    
* Tento údaj je povinný
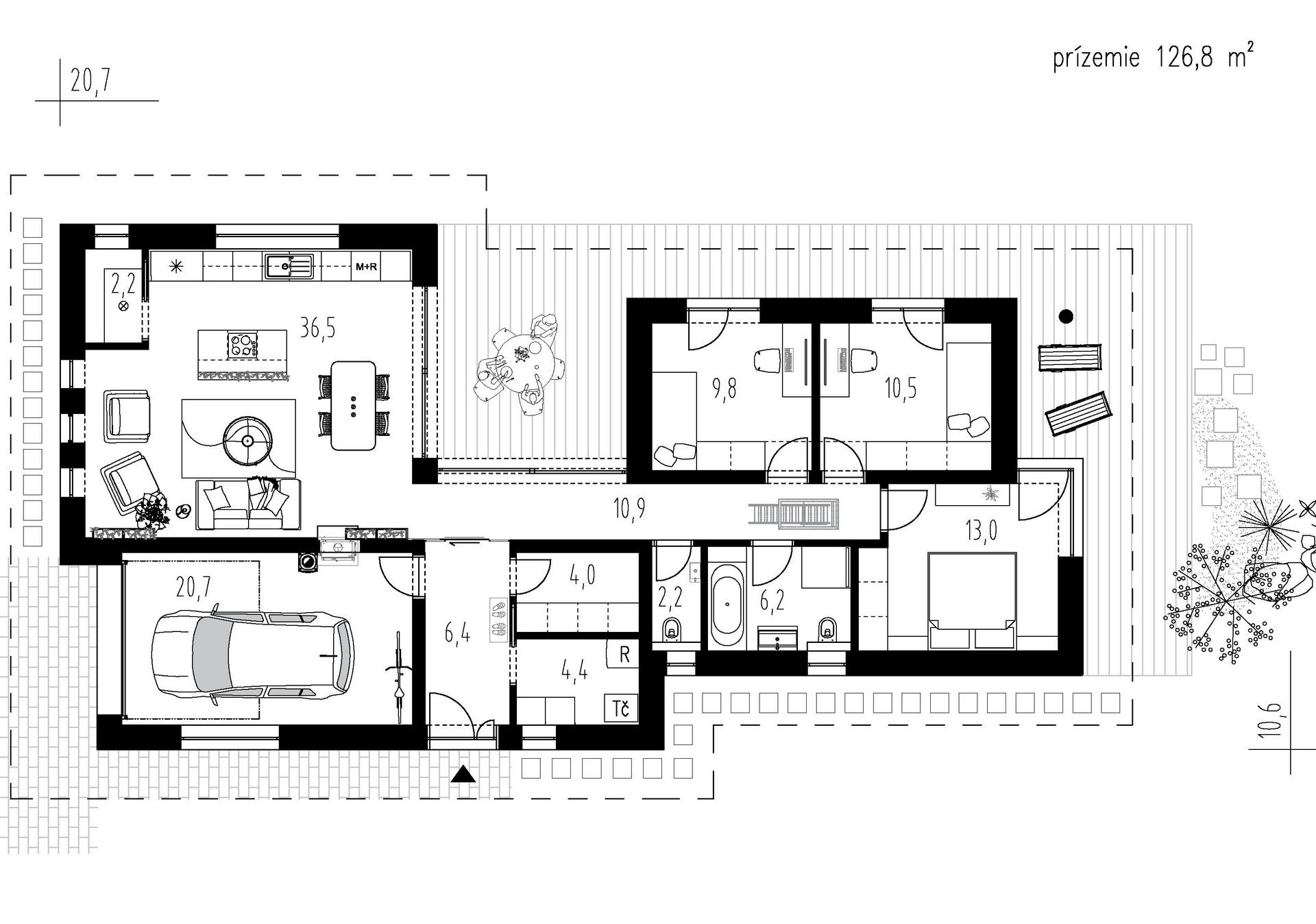
Obytné místnosti
4
Užitná plocha celkem
126,8 m2
Zastavěná plocha
168,9 m2
Konstrukce domu
Užitná plocha přízemí:
126,8 m2
Půdorysné rozměry domu:
20,7 x 10,6 m
Výška hřebenu střechy:
5,7 m
Min. rozměr pozemku:
14,6 x 28 m
Počet parkovacích stání:
1 (garáž)
Počet koupelen:
1
Tvar půdorysu:
L
Typ střechy:
Valbová
Provedení fasády:
Omítka
Styl domu:
Moderní
Doporučená orientace vstupu:
Sever, Východ
Vybavení domu:
Samostatné WC, Samostatná spíž, Samostatná šatna, Krb, Terasa, Garáž
Obývací prostor s jídelnou a kuch. koutem
36,5 m2
Ložnice
13,0 m2
Pokoj
10,5 m2
Pokoj
9,8 m2
Koupelna
6,2 m2
WC
2,2 m2
Šatna
4,0 m2
Technická místnost
4,4 m2
Chodba
10,9 m2
Zádveří
6,4 m2
Garáž
20,7 m2
Spíž
2,2 m2
Cena včetně DPH. Cena kompletní projektové dokumentace včetně Průkazu energetické náročnosti budovy (PENB) a Požárně bezpečnostního řešení (PBŘ).
Dodavatel sídlí na Slovensku a v ČR primárně dodává projektovou dokumentaci. Výstavbu domu na klíč zajišťuje jen v regionech poblíž hranice se Slovenskem (Moravskoslezský, Zlínský a Jihomoravský kraj).
Cena domu na klíč bude stanovena na základě individuální poptávky.
Moderní rodinný dům typu bungalov, který má dvě kryté terasy a garáž. Dům je ideální pro pohodlné bydlení 4členné domácnosti.
Dům je prakticky rozdělen chodbou na denní a noční část. Denní část domu tvoří prostorný obývací pokoj s krbem, který je propojený s jídelnou a kuchyňským koutem. V kuchyni je navržen varný ostrůvek a najdeme zde i praktickou spíž pro pohodlné ukládání potravin. Velké francouzské okno propojuje společenskou místnost se zastřešenou terasou, která nabádá ke stolovaní a relaxaci i za nepříznivého počasí.
Noční část domu tvoří ložnice se vstupem na vlastní zastřešenou terasu, dva dětské pokoje a koupelna s vanou a spchovým koutem. Nechybí ani samostatné WC. Kromě šatny, která je přístupná ze zádveří, najdeme v domě dostatek prostoru pro instalaci vestavěných skříní. Ke skladování může být využita i podstřešní plocha, přístupná skládacím stropním schodištěm z chodby.
Součástí domu je garáž.
Zdrojem vytápění je kvalitní tepelné čerpadlo vzduch/voda značky Daikin. Rozvody jsou v celém domě řešeny jako teplovodní podlahové topení.
Větrání je zajištěno pomocí rekuperační jednotky.
Dodavatelem projektu je společnost 
.
 Její obchodní zástupce Vás bude kontaktovat v nejbližším možném termínu. 
Děkujeme za poptávku.
        Mám zájem o více informací k domu 
Dům 304.
        Prosím, kontaktujte mě.
    
* Tento údaj je povinný
										Počet obytných místností: 4
										Užitná plocha: 120,3 m2
										Cena domu na klíč: 4 130 985 Kč
									
										Počet obytných místností: 4
										Užitná plocha: 114,2 m2
										Cena domu na klíč: 4 766 910 Kč
									
											Počet obytných místností: 4
											Užitná plocha: 142 m2
											Cena domu na klíč: 5 937 730 Kč
										
											Počet obytných místností: 4
											Užitná plocha: 100 m2
											Cena domu na klíč: 4 181 500 Kč
										
LÍBÍ SE VÁM TENTO DŮM?
Poptejte nezávazně více informací
Dodavatelem projektu je společnost 
.
 Její obchodní zástupce Vás bude kontaktovat v nejbližším možném termínu. 
Děkujeme za poptávku.
        Mám zájem o více informací k domu 
Dům 304.
        Prosím, kontaktujte mě.
    
* Tento údaj je povinný
Nechcete ztrácet čas procházením našeho katalogu?
Zadejte základní parametry vašeho vysněného domu a získejte nabídky šité na míru právě Vám.
Aby web fungoval jak má - souhlas s cookies
Pro co nejlepší zážitek z prohlížení webu, aby fungovalo vyhledávání, přihlašování, abychom vás neobtěžovali nevhodnou reklamou a pro mnoho dalších věcí využívá tato stránka tzv. cookies, což jsou drobné textové informace dočasně ukládané do paměti vašeho prohlížeče. K jejich použití od vás potřebujeme souhlas. Za jeho udělení v plné šíři, či podrobné nastavení vám velmi děkujeme. Vaše rozhodnutí můžete samozřejmě kdykoliv změnit a přenastavit.
Jaké cookies používáme
Nezbytné cookies jsou bezpodmínečně nutné k fungování stránek. Bez nich by nefungovaly základní funkcionality, jako např. přihlašování nebo nakupování v e-shopu. Tyto jsou vždy automaticky povolené.
Marketingové cookies pomáhají trackovat uživatele stránek za účelem nabízení cílených reklamních sdělení. Dávají smysl pro obě strany, neboť uživatel stránek obdrží reklamu na produkty, které ho skutečně zajímají, a které např. vyhledával v minulosti, a vydavatelé reklam naopak mohou tyto reklamy cíleně nabídnout.