Nechcete ztrácet čas procházením našeho katalogu?
Zadejte základní parametry vašeho vysněného domu a získejte nabídky šité na míru právě Vám.
VÝBĚR DOMU
Dodavatelem projektu je společnost
.
Její obchodní zástupce Vás bude kontaktovat v nejbližším možném termínu.
Děkujeme za poptávku.
Mám zájem o více informací k domu
Dům 305.
Prosím, kontaktujte mě.
* Tento údaj je povinný
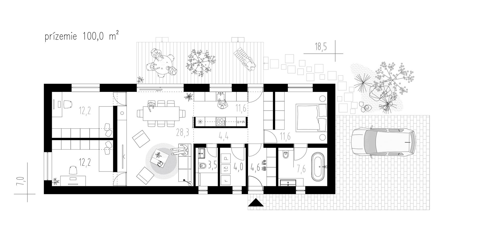
Obytné místnosti
4
Užitná plocha celkem
100 m2
Zastavěná plocha
129,5 m2
Konstrukce domu
Užitná plocha přízemí:
100 m2
Půdorysné rozměry domu:
18,5 x 7 m
Výška hřebenu střechy:
6,3 m
Min. rozměr pozemku:
26,5 x 14 m
Počet parkovacích stání:
možnost připojit zastřešené parkovací stání
Počet koupelen:
2
Tvar půdorysu:
Obdélník
Typ střechy:
Sedlová
Provedení fasády:
Omítka
Styl domu:
Moderní
Doporučená orientace vstupu:
Sever, Východ
Vybavení domu:
Hlavní ložnice s vlastní koupelnou, Krb, Terasa
Obývací prostor s jídelnou
28,3 m2
Kuchyňský kout
11,6 m2
Ložnice
11,6 m2
Koupelna
7,6 m2
Pokoj
12,2 m2
Pokoj
12,2 m2
Koupelna
3,5 m2
Technická místnost
4,0 m2
Chodba
4,4 m2
Zádveří
4,6 m2
Cena včetně DPH. Cena kompletní projektové dokumentace včetně Průkazu energetické náročnosti budovy (PENB) a Požárně bezpečnostního řešení (PBŘ).
Dodavatel sídlí na Slovensku a v ČR primárně dodává projektovou dokumentaci. Výstavbu domu na klíč zajišťuje jen v regionech poblíž hranice se Slovenskem (Moravskoslezský, Zlínský a Jihomoravský kraj).
Cena domu na klíč bude stanovena na základě individuální poptávky.
Jednoduchý bungalov s velkými čtvercovými okny a sedlovou střechou, který uspokojí nároky 4členné rodiny.
Společenskou část domu tvoří obývací pokoj spojený s jídelnou a opticky odděleným kuchyňským koutem. Pro vytvoření útulné atmosféry nechybí ani krb. Dostatečné množství světla zajišťuje velké francouzské okno, které nabízí možnost vyjít z obývacího pokoje rovnou na terasu. Z místa nad kuchyní, WC a technickou místností lze získat další prostor, který lze využívat například jako hernu.
Dále v domě najdeme ložnici rodičů, která má vlastní prostornou koupelnu s vanou a toaletou. Dva dětské pokoje, které se nacházejí na druhé straně domu, mají k dispozici menší koupelnu se sprchovým koutem.
K domu je možné připojit zastřešené parkovací stání (není součástí projektové dokumentace).
Zdrojem vytápění je kvalitní tepelné čerpadlo vzduch/voda značky Daikin. Rozvody jsou v celém domě řešeny jako teplovodní podlahové topení.
Větrání je zajištěno pomocí rekuperační jednotky.
Dodavatelem projektu je společnost
.
Její obchodní zástupce Vás bude kontaktovat v nejbližším možném termínu.
Děkujeme za poptávku.
Mám zájem o více informací k domu
Dům 305.
Prosím, kontaktujte mě.
* Tento údaj je povinný
Počet obytných místností: 4
Užitná plocha: 108,7 m2
Cena domu na klíč: 4 545 290 Kč
Počet obytných místností: 4
Užitná plocha: 115 m2
Cena domu na klíč: 4 808 725 Kč
Počet obytných místností: 4
Užitná plocha: 108,7 m2
Cena domu na klíč: 4 545 300 Kč
Počet obytných místností: 5
Užitná plocha: 139,4 m2
Cena domu na klíč: 5 829 011 Kč
LÍBÍ SE VÁM TENTO DŮM?
Poptejte nezávazně více informací
Dodavatelem projektu je společnost
.
Její obchodní zástupce Vás bude kontaktovat v nejbližším možném termínu.
Děkujeme za poptávku.
Mám zájem o více informací k domu
Dům 305.
Prosím, kontaktujte mě.
* Tento údaj je povinný
Nechcete ztrácet čas procházením našeho katalogu?
Zadejte základní parametry vašeho vysněného domu a získejte nabídky šité na míru právě Vám.
Aby web fungoval jak má - souhlas s cookies
Pro co nejlepší zážitek z prohlížení webu, aby fungovalo vyhledávání, přihlašování, abychom vás neobtěžovali nevhodnou reklamou a pro mnoho dalších věcí využívá tato stránka tzv. cookies, což jsou drobné textové informace dočasně ukládané do paměti vašeho prohlížeče. K jejich použití od vás potřebujeme souhlas. Za jeho udělení v plné šíři, či podrobné nastavení vám velmi děkujeme. Vaše rozhodnutí můžete samozřejmě kdykoliv změnit a přenastavit.
Jaké cookies používáme
Nezbytné cookies jsou bezpodmínečně nutné k fungování stránek. Bez nich by nefungovaly základní funkcionality, jako např. přihlašování nebo nakupování v e-shopu. Tyto jsou vždy automaticky povolené.
Marketingové cookies pomáhají trackovat uživatele stránek za účelem nabízení cílených reklamních sdělení. Dávají smysl pro obě strany, neboť uživatel stránek obdrží reklamu na produkty, které ho skutečně zajímají, a které např. vyhledával v minulosti, a vydavatelé reklam naopak mohou tyto reklamy cíleně nabídnout.