Nechcete ztrácet čas procházením našeho katalogu?
Zadejte základní parametry vašeho vysněného domu a získejte nabídky šité na míru právě Vám.
VÝBĚR DOMU
Dodavatelem projektu je společnost 
.
 Její obchodní zástupce Vás bude kontaktovat v nejbližším možném termínu. 
Děkujeme za poptávku.
        Mám zájem o více informací k domu 
Dům 322.
        Prosím, kontaktujte mě.
    
* Tento údaj je povinný
Obytné místnosti
5
Užitná plocha celkem
176,4 m2
Zastavěná plocha
127,6 m2
Konstrukce domu
Užitná plocha přízemí:
98 m2
Užitná plocha patra:
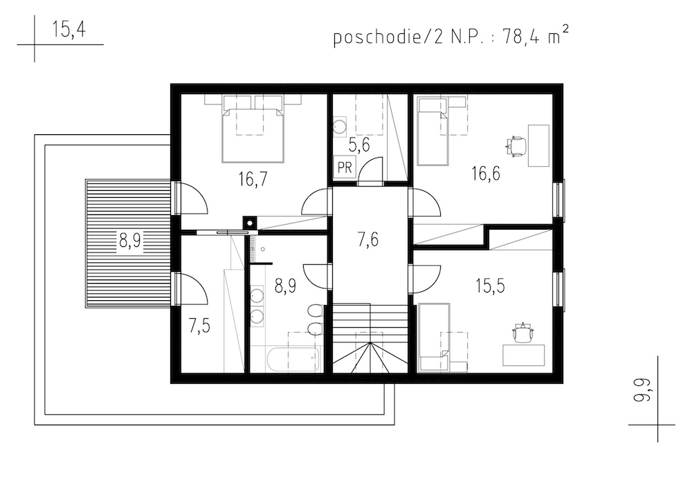
78,4 m2
Půdorysné rozměry domu:
15,4 x 9,9 m
Výška hřebenu střechy:
8,4 m
Min. rozměr pozemku:
22,4 x 19,9 m
Počet parkovacích stání:
1 (garáž)
Počet koupelen:
2
Tvar půdorysu:
Obdélník
Typ střechy:
Sedlová
Provedení fasády:
Omítka
Styl domu:
Moderní
Doporučená orientace vstupu:
Sever, Západ
Vybavení domu:
Samostatná spíž, Samostatná šatna, Pracovna, Pokoj pro hosty, Hobby místnost, Krb, Terasa, Garáž
Obývací prostor s jídelnou
28,7 m2
Kuchyňský kout
11,9 m2
Spíž
2,6 m2
Koupelna
3,6 m2
Pracovna/Pokoj pro hosty/Dětský pokoj
13,3 m2
Šatna
4,5 m2
Sklad
1,9 m2
Chodba
7 m2
Zádveří
2,5 m2
Garáž
22 m2
Hala
7,6 m2
Ložnice
16,7 m2
Šatna
7,5 m2
Terasa
8,9 m2
Koupelna
8,9 m2
Pokoj
16,6 m2
Pokoj
15,5 m2
Prádelna
5,6 m2
Cena včetně DPH. Cena kompletní projektové dokumentace včetně Průkazu energetické náročnosti budovy (PENB) a Požárně bezpečnostního řešení (PBŘ).
Dodavatel sídlí na Slovensku a v ČR primárně dodává projektovou dokumentaci. Výstavbu domu na klíč zajišťuje jen v regionech poblíž hranice se Slovenskem (Moravskoslezský, Zlínský a Jihomoravský kraj).
Cena domu na klíč bude stanovena na základě individuální poptávky.
Moderní, kompaktní rodinný dům se sedlovou střechou a obytným podkrovím. Charakteristickým prvkem domu jsou 2 kryté terasy v přízemí a další terasa v patře.
V přízemí se nachází obytný velkoprostor s krbem, propojený s jídelnou a kuchyňským koutem, kde je navržen varný ostrůvek s barovým sezením. Pro pohodlné skladování potravin nechybí spíž. Velké prosklené plochy francouzských oken zajišťují nejen dostatek denního světla v interiéru, ale také přirozené propojení s terasou a ničím nerušený výhled do zahrady.
V přízemí se dále nachází koupelna s toaletou a pokoj, který podle potřeby může sloužit jako pracovna, pokoj pro hosty, dětský pokoj nebo hobby místnost. Pod schodištěm vznikl praktický úložný prostor.
V podkroví jsou umístěny 2 dětské pokoje a prostorná ložnice rodičů s velkorysou šatnou a výstupem na terasu. Příslušenství doplňuje nadstandardně velká koupelna s vanou i sprchovým koutem a prádelna.
Součástí domu je garáž.
Zdrojem vytápění je kvalitní tepelné čerpadlo vzduch/voda značky Daikin. Rozvody jsou v celém domě řešeny jako teplovodní podlahové topení.
Větrání je zajištěno pomocí rekuperační jednotky.
Dodavatelem projektu je společnost 
.
 Její obchodní zástupce Vás bude kontaktovat v nejbližším možném termínu. 
Děkujeme za poptávku.
        Mám zájem o více informací k domu 
Dům 322.
        Prosím, kontaktujte mě.
    
* Tento údaj je povinný
										Počet obytných místností: 5
										Užitná plocha: 140,3 m2
										Cena domu na klíč: 5 513 790 Kč
									
										Počet obytných místností: 5
										Užitná plocha: 173 m2
										Cena domu na klíč: 6 798 900 Kč
									
										Počet obytných místností: 5
										Užitná plocha: 182 m2
										Cena domu na klíč: 7 152 600 Kč
									
											Počet obytných místností: 5
											Užitná plocha: 158 m2
											Cena domu na klíč: 6 209 400 Kč
										
LÍBÍ SE VÁM TENTO DŮM?
Poptejte nezávazně více informací
Dodavatelem projektu je společnost 
.
 Její obchodní zástupce Vás bude kontaktovat v nejbližším možném termínu. 
Děkujeme za poptávku.
        Mám zájem o více informací k domu 
Dům 322.
        Prosím, kontaktujte mě.
    
* Tento údaj je povinný
Nechcete ztrácet čas procházením našeho katalogu?
Zadejte základní parametry vašeho vysněného domu a získejte nabídky šité na míru právě Vám.
 
	Aby web fungoval jak má - souhlas s cookies
Pro co nejlepší zážitek z prohlížení webu, aby fungovalo vyhledávání, přihlašování, abychom vás neobtěžovali nevhodnou reklamou a pro mnoho dalších věcí využívá tato stránka tzv. cookies, což jsou drobné textové informace dočasně ukládané do paměti vašeho prohlížeče. K jejich použití od vás potřebujeme souhlas. Za jeho udělení v plné šíři, či podrobné nastavení vám velmi děkujeme. Vaše rozhodnutí můžete samozřejmě kdykoliv změnit a přenastavit.
Jaké cookies používáme
Nezbytné cookies jsou bezpodmínečně nutné k fungování stránek. Bez nich by nefungovaly základní funkcionality, jako např. přihlašování nebo nakupování v e-shopu. Tyto jsou vždy automaticky povolené.
Marketingové cookies pomáhají trackovat uživatele stránek za účelem nabízení cílených reklamních sdělení. Dávají smysl pro obě strany, neboť uživatel stránek obdrží reklamu na produkty, které ho skutečně zajímají, a které např. vyhledával v minulosti, a vydavatelé reklam naopak mohou tyto reklamy cíleně nabídnout.