Nechcete ztrácet čas procházením našeho katalogu?
Zadejte základní parametry vašeho vysněného domu a získejte nabídky šité na míru právě Vám.
VÝBĚR DOMU
Dodavatelem projektu je společnost
.
Její obchodní zástupce Vás bude kontaktovat v nejbližším možném termínu.
Děkujeme za poptávku.
Mám zájem o více informací k domu
Dům 343.
Prosím, kontaktujte mě.
* Tento údaj je povinný
Obytné místnosti
7
Užitná plocha celkem
181,7 m2
Zastavěná plocha
156 m2
Konstrukce domu
Užitná plocha přízemí:
125,8 m2
Užitná plocha patra:
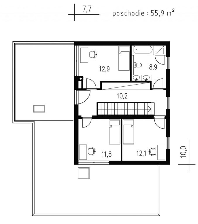
55,9 m2
Půdorysné rozměry domu:
14,1 x 12,7 m
Výška hřebenu střechy:
6,7 m
Min. rozměr pozemku:
22 x 20 m
Počet koupelen:
2
Tvar půdorysu:
Obdélník
Typ střechy:
Rovná
Provedení fasády:
Omítka, Dřevěný obklad
Styl domu:
Moderní, Přírodní
Doporučená orientace vstupu:
Sever, Jih
Vybavení domu:
Samostatné WC, Samostatná spíž, Samostatná šatna, Pracovna, Pokoj pro hosty, Hobby místnost, Krb, Terasa
Obývací prostor
24,1 m2
Kuch. kout s jídelnou
27,1 m2
Spíž
2,0 m2
Ložnice
14,7 m2
Šatna
2,4 m2
Pokoj
9,8 m2
Pokoj
11,6 m2
Koupelna
6,5 m2
WC
1,4 m2
Technická místnost
5,9 m2
Chodba
14,5 m2
Zádveří
5,8 m2
Pokoj
12,9 m2
Pokoj
12,1 m2
Pokoj
11,8 m2
Koupelna
8,9 m2
Chodba
10,2 m2
Cena včetně DPH. Cena kompletní projektové dokumentace včetně Průkazu energetické náročnosti budovy (PENB) a Požárně bezpečnostního řešení (PBŘ).
Dodavatel sídlí na Slovensku a v ČR primárně dodává projektovou dokumentaci. Výstavbu domu na klíč zajišťuje jen v regionech poblíž hranice se Slovenskem (Moravskoslezský, Zlínský a Jihomoravský kraj).
Cena domu na klíč bude stanovena na základě individuální poptávky.
Prostorný, elegantní, dvoupodlažní rodinný dům s plochou střechou, ideální pro pohodlné bydlení velké rodiny. Atraktivní vzhled domu zajišťuje dřevěný obklad na části fasády.
V přízemí se nachází vzdušný obytný prostor s jídelnou a kuchyňským koutem, kde nechybí spíž pro pohodlné skladování potravin. Obývací pokoj je od kuchyně a jídelny opticky oddělen krbem umístěným v prostoru. Velké prosklené plochy zajišťují dostatek denního světla v interiéru a přirozené propojení s terasami, které mohou být na obou stranách domu.
V přízemí dále najdeme prostornou koupelnu s vanou a sprchovým koutem, ložnici se šatnou a další dva pokoje, které lze využívat na různé účely, např. jako dětský pokoj, pokoj pro hosty, tělocvičnu, dětskou hernu nebo pracovnu. Nechybí zde ani samostatné WC.
V patře jsou umístěny 3 prostorné ložnice a velká koupelna s vanou i sprchovým koutem. Z chodby a jednoho z pokojů lze vyjít na panoramatickou terasu.
Ve všech pokojích i na chodbách je navržen dostatečný prostor pro instalaci vestavěných skříní.
Zdrojem vytápění je kvalitní tepelné čerpadlo vzduch/voda značky Daikin. Rozvody jsou v celém domě řešeny jako teplovodní podlahové topení.
Větrání je zajištěno pomocí rekuperační jednotky.
Dodavatelem projektu je společnost
.
Její obchodní zástupce Vás bude kontaktovat v nejbližším možném termínu.
Děkujeme za poptávku.
Mám zájem o více informací k domu
Dům 343.
Prosím, kontaktujte mě.
* Tento údaj je povinný
Počet obytných místností: 5
Užitná plocha: 161,1 m2
Cena domu na klíč: 5 796 750 Kč
Počet obytných místností: 5
Užitná plocha: 195,5 m2
Cena domu na klíč: 7 683 150 Kč
Počet obytných místností: 5
Užitná plocha: 171,1 m2
Cena domu na klíč: 6 724 230 Kč
Počet obytných místností: 5
Užitná plocha: 216,3 m2
Cena domu na klíč: 8 500 590 Kč
LÍBÍ SE VÁM TENTO DŮM?
Poptejte nezávazně více informací
Dodavatelem projektu je společnost
.
Její obchodní zástupce Vás bude kontaktovat v nejbližším možném termínu.
Děkujeme za poptávku.
Mám zájem o více informací k domu
Dům 343.
Prosím, kontaktujte mě.
* Tento údaj je povinný
Nechcete ztrácet čas procházením našeho katalogu?
Zadejte základní parametry vašeho vysněného domu a získejte nabídky šité na míru právě Vám.
Aby web fungoval jak má - souhlas s cookies
Pro co nejlepší zážitek z prohlížení webu, aby fungovalo vyhledávání, přihlašování, abychom vás neobtěžovali nevhodnou reklamou a pro mnoho dalších věcí využívá tato stránka tzv. cookies, což jsou drobné textové informace dočasně ukládané do paměti vašeho prohlížeče. K jejich použití od vás potřebujeme souhlas. Za jeho udělení v plné šíři, či podrobné nastavení vám velmi děkujeme. Vaše rozhodnutí můžete samozřejmě kdykoliv změnit a přenastavit.
Jaké cookies používáme
Nezbytné cookies jsou bezpodmínečně nutné k fungování stránek. Bez nich by nefungovaly základní funkcionality, jako např. přihlašování nebo nakupování v e-shopu. Tyto jsou vždy automaticky povolené.
Marketingové cookies pomáhají trackovat uživatele stránek za účelem nabízení cílených reklamních sdělení. Dávají smysl pro obě strany, neboť uživatel stránek obdrží reklamu na produkty, které ho skutečně zajímají, a které např. vyhledával v minulosti, a vydavatelé reklam naopak mohou tyto reklamy cíleně nabídnout.