Obytné místnosti

3

Užitná plocha celkem

64,7 m2

Zastavěná plocha

81,6 m2

Konstrukce domu

Zděný

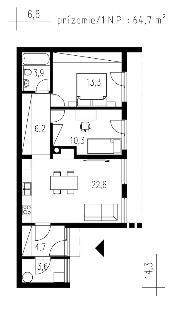
Užitná plocha přízemí:

64,7 m2

Půdorysné rozměry domu:

14,3 x 6,6 m

Výška hřebenu střechy:

3,7 m

Min. rozměr pozemku:

21,3 x 13,6 m

Počet koupelen:

1

Tvar půdorysu:

L

Typ střechy:

Pultová

Provedení fasády:

Omítka

Styl domu:

Moderní

Doporučená orientace vstupu:

Jih

Vybavení domu:

Krb, Terasa

1. NP

Obývací prostor s jídelnou a kuch. koutem

22,6 m2

Ložnice

13,3 m2

Pokoj

10,3 m2

Koupelna

3,9 m2

Technická místnost

3,6 m2

Zádveří

4,7 m2

Chodba

6,2 m2


Cena projektové dokumentace

88 550

Cena včetně DPH. Cena kompletní projektové dokumentace včetně Průkazu energetické náročnosti budovy (PENB) a Požárně bezpečnostního řešení (PBŘ).

Cena domu na klíč

Dodavatel sídlí na Slovensku a v ČR primárně dodává projektovou dokumentaci. Výstavbu domu na klíč zajišťuje jen v regionech poblíž hranice se Slovenskem (Moravskoslezský, Zlínský a Jihomoravský kraj).
Cena domu na klíč bude stanovena na základě individuální poptávky.

Popis stavby

Jednoduchý, nenáročný rodinný dům typu bungalov, ideální pro pohodlné bydlení rodiny s 1-2 dětmi. Charakteristickým prvkem je bohaté prosklení všech obytných místností.

Dispozice domu je rozdělena na denní a noční část. Denní část tvoří obytný prostor, který je propojený s jídelnou a kuchyňským koutem. Celý prostor je bohatě prosvětlen velkými francouzskými okny. Pro navození útulné atmosféry zejména v zimních měsíčích nechybí ani krb.

V noční části domu najdeme ložnici rodičů, dětský pokoj a koupelnu. Všechny pokoje mají výstup na terasu, která je částečně kryta přesahem střechy.

Dům lze postavit také ve variantě 4+kk.

Náš tip

Zdrojem vytápění je kvalitní tepelné čerpadlo vzduch/voda značky Daikin. Rozvody jsou v celém domě řešeny jako teplovodní podlahové topení.
Větrání je zajištěno pomocí rekuperační jednotky.

POPTAT DŮM

ZAVŘÍT  

Dodavatelem projektu je společnost
.
Její obchodní zástupce Vás bude kontaktovat v nejbližším možném termínu.

Děkujeme za poptávku.

Mám zájem o více informací k domu
Dům 425.
Prosím, kontaktujte mě.

* Tento údaj je povinný

Vyplněním údajů a odesláním formuláře souhlasíte s jejich zpracováním a uchováním společností Online House. s.r.o. Více o ochraně osobních údajů.

LÍBÍ SE VÁM TENTO DŮM?
Poptejte nezávazně více informací

ZAVŘÍT  

Dodavatelem projektu je společnost
.
Její obchodní zástupce Vás bude kontaktovat v nejbližším možném termínu.

Děkujeme za poptávku.

Mám zájem o více informací k domu
Dům 425.
Prosím, kontaktujte mě.

* Tento údaj je povinný

Vyplněním údajů a odesláním formuláře souhlasíte s jejich zpracováním a uchováním společností Online House. s.r.o. Více o ochraně osobních údajů.

Nechcete ztrácet čas procházením našeho katalogu?

Zadejte základní parametry vašeho vysněného domu a získejte nabídky šité na míru právě Vám.

 ZAVŘÍT

Aby web fungoval jak má - souhlas s cookies

Pro co nejlepší zážitek z prohlížení webu, aby fungovalo vyhledávání, přihlašování, abychom vás neobtěžovali nevhodnou reklamou a pro mnoho dalších věcí využívá tato stránka tzv. cookies, což jsou drobné textové informace dočasně ukládané do paměti vašeho prohlížeče. K jejich použití od vás potřebujeme souhlas. Za jeho udělení v plné šíři, či podrobné nastavení vám velmi děkujeme. Vaše rozhodnutí můžete samozřejmě kdykoliv změnit a přenastavit.

Jaké cookies používáme

Nezbytné

Nezbytné cookies jsou bezpodmínečně nutné k fungování stránek. Bez nich by nefungovaly základní funkcionality, jako např. přihlašování nebo nakupování v e-shopu. Tyto jsou vždy automaticky povolené.

Statistické

Tyto cookies pomáhají s měřením a analýzou návštěvnosti stránek.

Marketingové

Marketingové cookies pomáhají trackovat uživatele stránek za účelem nabízení cílených reklamních sdělení. Dávají smysl pro obě strany, neboť uživatel stránek obdrží reklamu na produkty, které ho skutečně zajímají, a které např. vyhledával v minulosti, a vydavatelé reklam naopak mohou tyto reklamy cíleně nabídnout.

Přijmout vše Přijmout vybrané Podrobné nastavení