Dům 498
Moderní dům 5kk, plochá střecha

Obytné místnosti

5

Užitná plocha celkem

186 m2

Zastavěná plocha

124 m2

Konstrukce domu

Dřevostavba

Půdorysné rozměry domu:

10,08 x 14,08 m

Počet koupelen:

2

Tvar půdorysu:

L

Typ střechy:

Rovná

Provedení fasády:

Omítka

Styl domu:

Moderní

Doporučená orientace vstupu:

Jih, Východ

Vybavení domu:

Samostatné WC, Samostatná šatna, Pracovna, Pokoj pro hosty, Hobby místnost, Krb, Terasa

1. NP

Obývací prostor

27,2 m2

Kuchyňský kout s jídelnou

21,3 m2

Pracovna/Pokoj pro hosty/Hobby místnost

13,5 m2

Koupelna s WC

4,8 m2

Chodba

9,9 m2

Tech. místnost

9,1 m2

WC

1,1 m2

Sklad/Kolárna

7,4 m2

Zádveří

6,9 m2

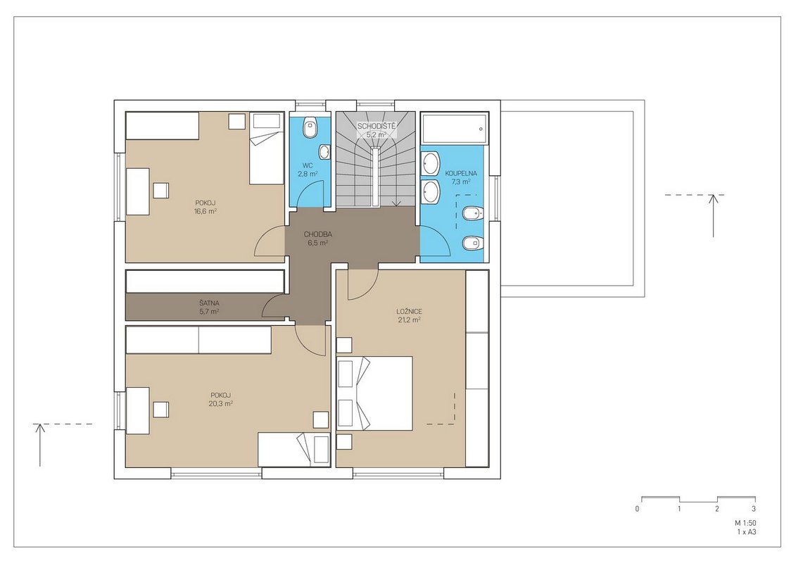
2. NP

Ložnice

21,2 m2

Šatna

5,7 m2

Pokoj

20,3 m2

Pokoj

16,6 m2

Koupelna

7,3 m2

WC

2,8 m2

Chodba

6,5 m2

Schodiště

5,2 m2


Cena domu k dokončení

6 145 000

Cena včetně DPH. Cena dále zahrnuje projektovou dokumentaci, komínový systém, bleskosvod, tepelné čerpadlo.
Cena neobsahuje realizaci základové desky.
Dům k dokončení neobsahuje finální povrchy podlah a stěn (obklady, dlažby, podlahové krytiny), zařizovací předměty koupelen a wc, interiérové dveře a zárubně, krbová kamna nebo krbovou vložku.

Cena domu na klíč

6 821 000

Cena včetně DPH. Cena dále zahrnuje projektovou dokumentaci, komínový systém, bleskosvod, tepelné čerpadlo.
Cena neobsahuje realizaci základové desky.
Cena dále neobsahuje krbová kamna nebo krbovou vložku, žaluzie, kuchyňskou linku ani žádný jiný nábytek, terasu, okapové chodníky, zpevněné plochy na pozemku, přípojky inženýrských sítí, sadové úpravy, oplocení pozemku.

Popis stavby

Moderní, dvoupodlažní rodinný dům s plochou střechou, který svými vnitřními rozměry bude vyhovovat potřebám 4-5členné rodiny.

V přízemí se nachází obytný velkoprostor s krbem, který je od jídelny s kuchyňským koutem částečně oddělen příčkou. Velké prosklené plochy zajišťují v místnosti nejen dostatek denního světla, ale také přirozené propojení s terasou.

V přízemí je dále navržen sklad zahradního nářadí, který je přístupný z exteriéru, a menší koupelna se sprchovým koutem. Najdeme zde také pokoj, který může podle potřeby sloužit jako pracovna, pokoj pro hosty, hobby místnost nebo dětský pokoj.

V patře se nachází prostorná ložnice rodičů, 2 dětské pokoje a koupelna s vanou. Na chodbě je navržena praktická šatna a najdeme zde i samostatné WC.

Náš tip

Difuzně otevřený konstrukční systém - dřevostavba "dýchá".
Komplexní certifikovaný zateplovací systém od společnosti STO (ETICS STO Therm Wood) zaručuje minimální náklady na vytápění a zároveň zabraňuje přehřívání domu v letním období.
Zdrojem tepla je tepelné čerpadlo.

Nechcete ztrácet čas procházením našeho katalogu?

Zadejte základní parametry vašeho vysněného domu a získejte nabídky šité na míru právě Vám.

 ZAVŘÍT

Aby web fungoval jak má - souhlas s cookies

Pro co nejlepší zážitek z prohlížení webu, aby fungovalo vyhledávání, přihlašování, abychom vás neobtěžovali nevhodnou reklamou a pro mnoho dalších věcí využívá tato stránka tzv. cookies, což jsou drobné textové informace dočasně ukládané do paměti vašeho prohlížeče. K jejich použití od vás potřebujeme souhlas. Za jeho udělení v plné šíři, či podrobné nastavení vám velmi děkujeme. Vaše rozhodnutí můžete samozřejmě kdykoliv změnit a přenastavit.

Jaké cookies používáme

Nezbytné

Nezbytné cookies jsou bezpodmínečně nutné k fungování stránek. Bez nich by nefungovaly základní funkcionality, jako např. přihlašování nebo nakupování v e-shopu. Tyto jsou vždy automaticky povolené.

Statistické

Tyto cookies pomáhají s měřením a analýzou návštěvnosti stránek.

sembako4d sembako4d sembako4d balaitoto balaitoto sembako4d sembako4d balaitoto indosattoto bengbeng toto login bengbengtoto login bengbengtoto login bengbengtoto login bengbengtoto login bengbengtoto login bengbengtoto indosattoto indosattoto balaitoto cahayatoto cahayatoto cahayatoto cahayatoto cahayatoto indosattoto indosattoto ohtogel ohtogel ohtogel ohtogel ohtogel ohtogel ohtogel jualtoto mineraltoto

Marketingové

Marketingové cookies pomáhají trackovat uživatele stránek za účelem nabízení cílených reklamních sdělení. Dávají smysl pro obě strany, neboť uživatel stránek obdrží reklamu na produkty, které ho skutečně zajímají, a které např. vyhledával v minulosti, a vydavatelé reklam naopak mohou tyto reklamy cíleně nabídnout.

Přijmout vše Přijmout vybrané Podrobné nastavení