Nechcete ztrácet čas procházením našeho katalogu?
Zadejte základní parametry vašeho vysněného domu a získejte nabídky šité na míru právě Vám.
VÝBĚR DOMU
Dodavatelem projektu je společnost 
.
 Její obchodní zástupce Vás bude kontaktovat v nejbližším možném termínu. 
Děkujeme za poptávku.
        Mám zájem o více informací k domu 
Dům 567.
        Prosím, kontaktujte mě.
    
* Tento údaj je povinný
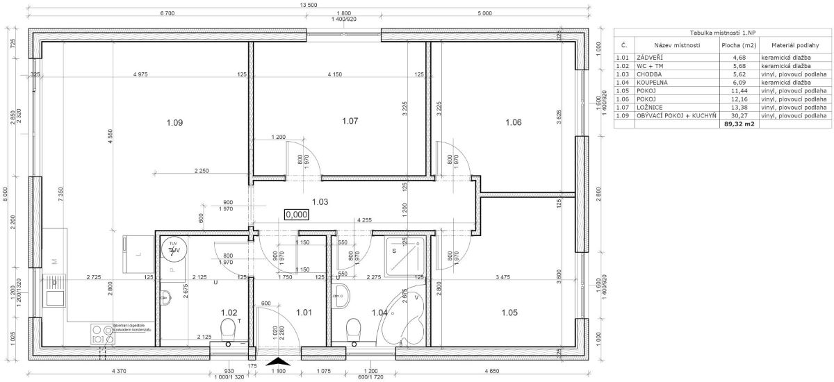
Obytné místnosti
4
Užitná plocha celkem
89,3 m2
Zastavěná plocha
104 m2
Konstrukce domu
Užitná plocha přízemí:
89,3 m2
Půdorysné rozměry domu:
13,5 x 8 m
Počet koupelen:
1
Tvar půdorysu:
Obdélník
Typ střechy:
Valbová
Provedení fasády:
Omítka, Dřevěný obklad
Styl domu:
Tradiční
Doporučená orientace vstupu:
Východ
Vybavení domu:
Samostatné WC, Krb, Terasa
Obývací prostor s kuch. koutem
30,27 m2
Chodba
5,62 m2
Ložnice
13,38 m2
Pokoj
12,16 m2
Pokoj
11,44 m2
Koupelna
6,09 m2
Tech. místnost s WC
5,68 m2
Zádveří
4,68 m2
Cena včetně DPH. Cena zahrnuje projektovou dokumentaci, realizaci základové desky, komínový systém, tepelné čerpadlo s podlahovým vytápěním. NOVĚ CENA ZAHRNUJE TAKÉ KUCHYŇSKOU LINKU!
Cena neobsahuje krbová kamna nebo krbovou vložku, žaluzie, nábytek, terasu, okapové chodníky, zpevněné plochy na pozemku, přípojky inženýrských sítí, sadové úpravy, oplocení pozemku.
Cena včetně DPH. Cena zahrnuje projektovou dokumentaci, realizaci základové desky, komínový systém, tepelné čerpadlo s podlahovým vytápěním. NOVĚ CENA ZAHRNUJE TAKÉ KUCHYŇSKOU LINKU!
Cena neobsahuje krbová kamna nebo krbovou vložku, žaluzie, nábytek, terasu, okapové chodníky, zpevněné plochy na pozemku, přípojky inženýrských sítí, sadové úpravy, oplocení pozemku.
Kompaktní, jednoduchý, 4pokojový bungalov s efektivně využitým, obdélníkovým půdorysem. Dům je ideální pro komfortní bydlení 4členné rodiny. Jednoduchá konstrukce domu je zárukou rychlé a nekomplikované výstavby.
Společenskou část domu tvoří obývací prostor propojený s kuchyňským koutem. Velké francouzské okno zajišťuje dokonalé prosvětlení interiéru a jeho přirozené propojení s terasou. Pro vytvoření útulné atmosféry je zde počítáno také s krbem.
V privátní části domu jsou umístěny 3 pohodlné ložnice a velkorysá koupelna s vanou i sprchovým koutem.
Ze zádveří je přístupná rozlehlá technická místnost s toaletou, kam se pohodlně vejdou všechny technologie domu, a částečně může být využita také jako skladovací prostor.
Ve všech místnostech a v zádveří je navržen prostor pro vestavěné skříně.
Dům je možno dodat v provedení dřevostavba nebo zděný dům.
Rodinné domy v provedení dřevostavba nebo zděný dům.
Zdrojem vytápění je kvalitní tepelné čerpadlo.
Ceny jsou včetně základové desky, komínového systému a vysokého standardu vybavení.
Realizace domů po celé ČR.
Novinka: KUCHYŇSKÁ LINKA V CENĚ DOMU!
Dodavatelem projektu je společnost 
.
 Její obchodní zástupce Vás bude kontaktovat v nejbližším možném termínu. 
Děkujeme za poptávku.
        Mám zájem o více informací k domu 
Dům 567.
        Prosím, kontaktujte mě.
    
* Tento údaj je povinný
											Počet obytných místností: 4
											Užitná plocha: 142 m2
											Cena domu na klíč: 5 937 730 Kč
										
											Počet obytných místností: 4
											Užitná plocha: 100 m2
											Cena domu na klíč: 4 181 500 Kč
										
											Počet obytných místností: 4
											Užitná plocha: 112,4 m2
											Cena domu na klíč: 4 683 280 Kč
										
											Počet obytných místností: 4
											Užitná plocha: 120,3 m2
											Cena domu na klíč: 4 130 985 Kč
										
LÍBÍ SE VÁM TENTO DŮM?
Poptejte nezávazně více informací
Dodavatelem projektu je společnost 
.
 Její obchodní zástupce Vás bude kontaktovat v nejbližším možném termínu. 
Děkujeme za poptávku.
        Mám zájem o více informací k domu 
Dům 567.
        Prosím, kontaktujte mě.
    
* Tento údaj je povinný
Nechcete ztrácet čas procházením našeho katalogu?
Zadejte základní parametry vašeho vysněného domu a získejte nabídky šité na míru právě Vám.
 
	Aby web fungoval jak má - souhlas s cookies
Pro co nejlepší zážitek z prohlížení webu, aby fungovalo vyhledávání, přihlašování, abychom vás neobtěžovali nevhodnou reklamou a pro mnoho dalších věcí využívá tato stránka tzv. cookies, což jsou drobné textové informace dočasně ukládané do paměti vašeho prohlížeče. K jejich použití od vás potřebujeme souhlas. Za jeho udělení v plné šíři, či podrobné nastavení vám velmi děkujeme. Vaše rozhodnutí můžete samozřejmě kdykoliv změnit a přenastavit.
Jaké cookies používáme
Nezbytné cookies jsou bezpodmínečně nutné k fungování stránek. Bez nich by nefungovaly základní funkcionality, jako např. přihlašování nebo nakupování v e-shopu. Tyto jsou vždy automaticky povolené.
Marketingové cookies pomáhají trackovat uživatele stránek za účelem nabízení cílených reklamních sdělení. Dávají smysl pro obě strany, neboť uživatel stránek obdrží reklamu na produkty, které ho skutečně zajímají, a které např. vyhledával v minulosti, a vydavatelé reklam naopak mohou tyto reklamy cíleně nabídnout.