Obytné místnosti

5

Užitná plocha celkem

106,5 m2

Zastavěná plocha

72 m2

Konstrukce domu

Zděný / Dřevostavba

Užitná plocha přízemí:

53,77 m2

Užitná plocha patra:

53,82 m2

Půdorysné rozměry domu:

9 x 8 m

Počet koupelen:

2

Tvar půdorysu:

Obdélník

Typ střechy:

Sedlová

Provedení fasády:

Omítka

Styl domu:

Tradiční

Doporučená orientace vstupu:

Sever, Východ

Vybavení domu:

Samostatná spíž, Pracovna, Pokoj pro hosty, Hobby místnost, Krb, Terasa

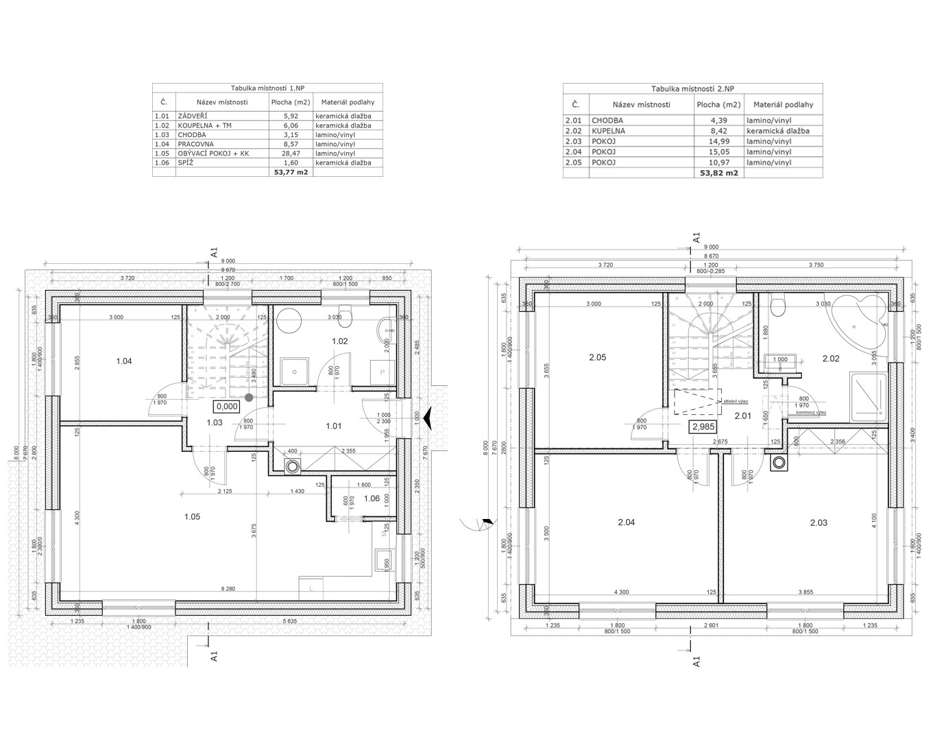
1. NP

Obývací prostor s kuch. koutem

28,47 m2

Spíž

1,6 m2

Chodba

3,15 m2

Pokoj pro hosty/Pracovna/Hobby místnost

8,57 m2

Koupelna/Tech. místnost

6,06 m2

Zádveří

5,92 m2

2. NP

Chodba

4,39 m2

Pokoj

14,99 m2

Pokoj

15,05 m2

Pokoj

10,97 m2

Koupelna

8,42 m2


Cena domu na klíč

5 165 300

Cena včetně DPH. Cena zahrnuje projektovou dokumentaci, realizaci základové desky, komínový systém, tepelné čerpadlo s podlahovým vytápěním. NOVĚ CENA ZAHRNUJE TAKÉ KUCHYŇSKOU LINKU!
Cena neobsahuje krbová kamna nebo krbovou vložku, žaluzie, nábytek, terasu, okapové chodníky, zpevněné plochy na pozemku, přípojky inženýrských sítí, sadové úpravy, oplocení pozemku.

Cena domu na klíč

6 450 900

Cena včetně DPH. Cena zahrnuje projektovou dokumentaci, realizaci základové desky, komínový systém, tepelné čerpadlo s podlahovým vytápěním. NOVĚ CENA ZAHRNUJE TAKÉ KUCHYŇSKOU LINKU!
Cena neobsahuje krbová kamna nebo krbovou vložku, žaluzie, nábytek, terasu, okapové chodníky, zpevněné plochy na pozemku, přípojky inženýrských sítí, sadové úpravy, oplocení pozemku.

Popis stavby

Jednoduchý, praktický, dvoupodlažní rodinný dům tradičního vzhledu. Dům je ideální pro pohodlné bydlení rodiny se 2 - 3 dětmi.

V přízemí se nachází společenská část domu, kterou tvoří obývací prostor propojený s kuchyňským koutem. Nechybí ani spíž pro pohodlné skladování potravin. Pro navození útulné atmosféry je zde navržen krb.  

V přízemí se dále nachází koupelna s toaletou a menší pokoj, který může podle potřeby sloužit např. jako pracovna, pokoj pro hosty nebo hobby místnost.

V patře je navržena privátní část domu, kde jsou umístěny 3 pohodlné ložnice a velkorysá koupelna s vanou i sprchovým koutem.

Dům je možno dodat v provedení dřevostavba nebo zděný dům.

Náš tip

Rodinné domy v provedení dřevostavba nebo zděný dům.
Zdrojem vytápění je kvalitní tepelné čerpadlo.
Ceny jsou včetně základové desky, komínového systému a vysokého standardu vybavení.
Realizace domů po celé ČR.
Novinka: KUCHYŇSKÁ LINKA V CENĚ DOMU!

POPTAT DŮM

ZAVŘÍT  

Dodavatelem projektu je společnost
.
Její obchodní zástupce Vás bude kontaktovat v nejbližším možném termínu.

Děkujeme za poptávku.

Mám zájem o více informací k domu
Dům 568.
Prosím, kontaktujte mě.

* Tento údaj je povinný

Vyplněním údajů a odesláním formuláře souhlasíte s jejich zpracováním a uchováním společností Online House. s.r.o. Více o ochraně osobních údajů.

LÍBÍ SE VÁM TENTO DŮM?
Poptejte nezávazně více informací

ZAVŘÍT  

Dodavatelem projektu je společnost
.
Její obchodní zástupce Vás bude kontaktovat v nejbližším možném termínu.

Děkujeme za poptávku.

Mám zájem o více informací k domu
Dům 568.
Prosím, kontaktujte mě.

* Tento údaj je povinný

Vyplněním údajů a odesláním formuláře souhlasíte s jejich zpracováním a uchováním společností Online House. s.r.o. Více o ochraně osobních údajů.

Nechcete ztrácet čas procházením našeho katalogu?

Zadejte základní parametry vašeho vysněného domu a získejte nabídky šité na míru právě Vám.

 ZAVŘÍT

Aby web fungoval jak má - souhlas s cookies

Pro co nejlepší zážitek z prohlížení webu, aby fungovalo vyhledávání, přihlašování, abychom vás neobtěžovali nevhodnou reklamou a pro mnoho dalších věcí využívá tato stránka tzv. cookies, což jsou drobné textové informace dočasně ukládané do paměti vašeho prohlížeče. K jejich použití od vás potřebujeme souhlas. Za jeho udělení v plné šíři, či podrobné nastavení vám velmi děkujeme. Vaše rozhodnutí můžete samozřejmě kdykoliv změnit a přenastavit.

Jaké cookies používáme

Nezbytné

Nezbytné cookies jsou bezpodmínečně nutné k fungování stránek. Bez nich by nefungovaly základní funkcionality, jako např. přihlašování nebo nakupování v e-shopu. Tyto jsou vždy automaticky povolené.

Statistické

Tyto cookies pomáhají s měřením a analýzou návštěvnosti stránek.

sembako4d sembako4d sembako4d balaitoto balaitoto sembako4d sembako4d balaitoto indosattoto bengbeng toto login bengbengtoto login bengbengtoto login bengbengtoto login bengbengtoto login bengbengtoto login bengbengtoto indosattoto indosattoto balaitoto cahayatoto cahayatoto cahayatoto cahayatoto cahayatoto indosattoto indosattoto ohtogel ohtogel ohtogel ohtogel ohtogel ohtogel ohtogel jualtoto mineraltoto

Marketingové

Marketingové cookies pomáhají trackovat uživatele stránek za účelem nabízení cílených reklamních sdělení. Dávají smysl pro obě strany, neboť uživatel stránek obdrží reklamu na produkty, které ho skutečně zajímají, a které např. vyhledával v minulosti, a vydavatelé reklam naopak mohou tyto reklamy cíleně nabídnout.

Přijmout vše Přijmout vybrané Podrobné nastavení