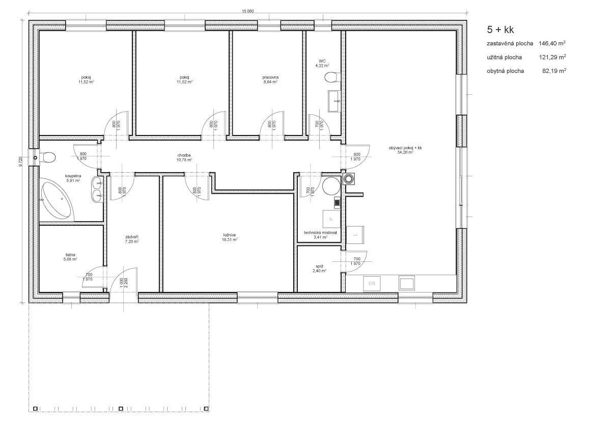
Obytné místnosti

5

Užitná plocha celkem

121,29 m2

Zastavěná plocha

146,40 m2

Konstrukce domu

Zděný / Dřevostavba

Užitná plocha přízemí:

121,29 m2

Půdorysné rozměry domu:

15,06 x 9,7 m

Počet koupelen:

1

Tvar půdorysu:

Obdélník

Typ střechy:

Valbová

Provedení fasády:

Omítka

Styl domu:

Tradiční

Doporučená orientace vstupu:

Sever, Západ

Vybavení domu:

Samostatné WC, Samostatná spíž, Samostatná šatna, Pracovna, Pokoj pro hosty, Hobby místnost, Krb, Terasa

1. NP

Obývací prostor s kuch. koutem

34,2 m2

Spíž

2,4 m2

Chodba

10,78 m2

Ložnice

16,31 m2

Pokoj

11,52 m2

Pokoj

11,52 m2

Pokoj pro hosty/Pracovna/Hobby místnost

8,64 m2

Koupelna

5,91 m2

Šatna

5,08 m2

Tech. místnost

3,41 m2

WC

4,32 m2

Zádveří

7,2 m2


Cena domu na klíč

5 767 100

Cena včetně DPH. Cena zahrnuje projektovou dokumentaci, realizaci základové desky, komínový systém, tepelné čerpadlo s podlahovým vytápěním. NOVĚ CENA ZAHRNUJE TAKÉ KUCHYŇSKOU LINKU!
Cena neobsahuje krbová kamna nebo krbovou vložku, žaluzie, nábytek, terasu, okapové chodníky, zpevněné plochy na pozemku, přípojky inženýrských sítí, sadové úpravy, oplocení pozemku.

Cena domu na klíč

6 672 200

Cena včetně DPH. Cena zahrnuje projektovou dokumentaci, realizaci základové desky, komínový systém, tepelné čerpadlo s podlahovým vytápěním. NOVĚ CENA ZAHRNUJE TAKÉ KUCHYŇSKOU LINKU!
Cena neobsahuje krbová kamna nebo krbovou vložku, žaluzie, nábytek, terasu, okapové chodníky, zpevněné plochy na pozemku, přípojky inženýrských sítí, sadové úpravy, oplocení pozemku.

Popis stavby

Jednoduchý, 5pokojový bungalov na obdélníkovém půdorysu. Dům je ideální pro komfortní bydlení 4-5členné rodiny.

Velkorysý obytný prostor s krbem je propojený s kuchyňským koutem, kde je navržena spíž pro pohodlné skladování potravin. Velké francouzské okno zajišťuje v interiéru dostatek denního světla.

V domě jsou dále umístěny 3 ložnice a menší pokoj, který může být podle potřeby využíván např. jako pokoj pro hosty, pracovna nebo hobby místnost.

V koupelně je navržena rohová vana a příslušenství doplňuje samostatná toaleta. Ze zádveří je přístupná praktická šatna.

Dům je možno dodat v provedení dřevostavba nebo zděný dům.

Náš tip

Rodinné domy v provedení dřevostavba nebo zděný dům.
Zdrojem vytápění je kvalitní tepelné čerpadlo.
Ceny jsou včetně základové desky, komínového systému a vysokého standardu vybavení.
Realizace domů po celé ČR.
Novinka: KUCHYŇSKÁ LINKA V CENĚ DOMU!

POPTAT DŮM

ZAVŘÍT  

Dodavatelem projektu je společnost
.
Její obchodní zástupce Vás bude kontaktovat v nejbližším možném termínu.

Děkujeme za poptávku.

Mám zájem o více informací k domu
Dům 580.
Prosím, kontaktujte mě.

* Tento údaj je povinný

Vyplněním údajů a odesláním formuláře souhlasíte s jejich zpracováním a uchováním společností Online House. s.r.o. Více o ochraně osobních údajů.

LÍBÍ SE VÁM TENTO DŮM?
Poptejte nezávazně více informací

ZAVŘÍT  

Dodavatelem projektu je společnost
.
Její obchodní zástupce Vás bude kontaktovat v nejbližším možném termínu.

Děkujeme za poptávku.

Mám zájem o více informací k domu
Dům 580.
Prosím, kontaktujte mě.

* Tento údaj je povinný

Vyplněním údajů a odesláním formuláře souhlasíte s jejich zpracováním a uchováním společností Online House. s.r.o. Více o ochraně osobních údajů.

Nechcete ztrácet čas procházením našeho katalogu?

Zadejte základní parametry vašeho vysněného domu a získejte nabídky šité na míru právě Vám.

 ZAVŘÍT

Aby web fungoval jak má - souhlas s cookies

Pro co nejlepší zážitek z prohlížení webu, aby fungovalo vyhledávání, přihlašování, abychom vás neobtěžovali nevhodnou reklamou a pro mnoho dalších věcí využívá tato stránka tzv. cookies, což jsou drobné textové informace dočasně ukládané do paměti vašeho prohlížeče. K jejich použití od vás potřebujeme souhlas. Za jeho udělení v plné šíři, či podrobné nastavení vám velmi děkujeme. Vaše rozhodnutí můžete samozřejmě kdykoliv změnit a přenastavit.

Jaké cookies používáme

Nezbytné

Nezbytné cookies jsou bezpodmínečně nutné k fungování stránek. Bez nich by nefungovaly základní funkcionality, jako např. přihlašování nebo nakupování v e-shopu. Tyto jsou vždy automaticky povolené.

Statistické

Tyto cookies pomáhají s měřením a analýzou návštěvnosti stránek.

sembako4d sembako4d sembako4d balaitoto balaitoto sembako4d sembako4d balaitoto indosattoto bengbeng toto login bengbengtoto login bengbengtoto login bengbengtoto login bengbengtoto login bengbengtoto login bengbengtoto indosattoto indosattoto balaitoto cahayatoto cahayatoto cahayatoto cahayatoto cahayatoto indosattoto indosattoto ohtogel ohtogel ohtogel ohtogel ohtogel ohtogel ohtogel jualtoto mineraltoto

Marketingové

Marketingové cookies pomáhají trackovat uživatele stránek za účelem nabízení cílených reklamních sdělení. Dávají smysl pro obě strany, neboť uživatel stránek obdrží reklamu na produkty, které ho skutečně zajímají, a které např. vyhledával v minulosti, a vydavatelé reklam naopak mohou tyto reklamy cíleně nabídnout.

Přijmout vše Přijmout vybrané Podrobné nastavení