Nechcete ztrácet čas procházením našeho katalogu?
Zadejte základní parametry vašeho vysněného domu a získejte nabídky šité na míru právě Vám.
VÝBĚR DOMU
Dodavatelem projektu je společnost 
.
 Její obchodní zástupce Vás bude kontaktovat v nejbližším možném termínu. 
Děkujeme za poptávku.
        Mám zájem o více informací k domu 
Dům 219.
        Prosím, kontaktujte mě.
    
* Tento údaj je povinný
Obytné místnosti
5
Užitná plocha celkem
195,5 m2
Zastavěná plocha
158,1 m2
Konstrukce domu
Užitná plocha přízemí:
135,3 m2
Užitná plocha patra:
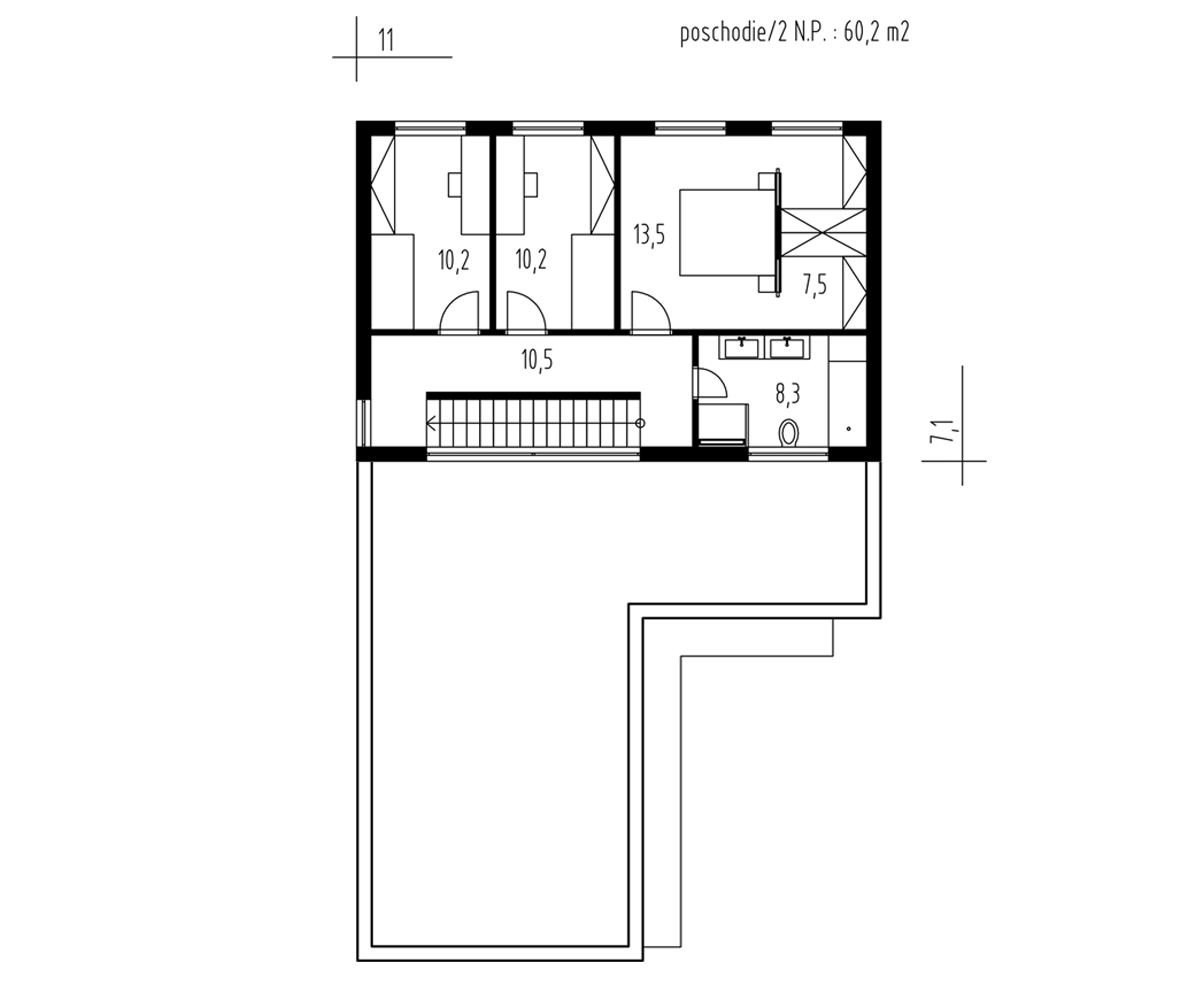
60,2 m2
Půdorysné rozměry domu:
17,6 x 11 m
Výška hřebenu střechy:
6,8 m
Min. rozměr pozemku:
27 x 17 m
Počet parkovacích stání:
2 (dvojgaráž)
Počet koupelen:
2
Tvar půdorysu:
L
Typ střechy:
Rovná
Provedení fasády:
Omítka
Styl domu:
Moderní
Doporučená orientace vstupu:
Sever, Západ
Vybavení domu:
Samostatná šatna, Pracovna, Pokoj pro hosty, Hobby místnost, Krb, Terasa, Garáž
Obývací prostor
30,4 m2
Kuchyňský kout
15,7 m2
Jídelna
15,4 m2
Pracovna/Pokoj pro hosty/Dětský pokoj
8,9 m2
Koupelna
6,4 m2
Schodiště
5,7 m2
Tech. místnost/Sklad
8,7 m2
Zádveří
11,4 m2
Dvojgaráž
32,7 m2
Chodba
10,5 m2
Ložnice
13,5 m2
Šatna
7,5 m2
Koupelna
8,3 m2
Pokoj
10,2 m2
Pokoj
10,2 m2
Cena včetně DPH. Cena kompletní projektové dokumentace včetně Průkazu energetické náročnosti budovy (PENB) a Požárně bezpečnostního řešení (PBŘ).
Dodavatel sídlí na Slovensku a v ČR primárně dodává projektovou dokumentaci. Výstavbu domu na klíč zajišťuje jen v regionech poblíž hranice se Slovenskem (Moravskoslezský, Zlínský a Jihomoravský kraj).
Cena domu na klíč bude stanovena na základě individuální poptávky.
Moderní, dvoupodlažní rodinný dům s plochou střechou a garáží pro 2 auta. Dům je navržen v elegantním, nadčasovém designu a je určen pro pohodlné bydlení rodiny se 2 - 3 dětmi.
V přízemí se nachází obytný velkoprostor, propojený s jídelnou a kuchňským koutem. Velké prosklené plochy zajišťují nejen dostatek denního světla v interiéru, ale také přirozené propojení s terasou a ničím nerušený výhled do zahrady.
V přízemí dále najdeme koupelnu s toaletou a menší pokoj, který podle potřeby může sloužit jako pracovna, pokoj pro hosty, dětský pokoj nebo hobby místnost.
V horním podlaží jsou umístěny 2 dětské pokoje a ložnice rodičů s vlastní šatnou. Nadstandardně velká koupelna nabízí vanu i sprchový kout.
Zdrojem vytápění je kvalitní tepelné čerpadlo vzduch/voda značky Daikin. Rozvody jsou v celém domě řešeny jako teplovodní podlahové topení.
Větrání je zajištěno pomocí rekuperační jednotky.
Dodavatelem projektu je společnost 
.
 Její obchodní zástupce Vás bude kontaktovat v nejbližším možném termínu. 
Děkujeme za poptávku.
        Mám zájem o více informací k domu 
Dům 219.
        Prosím, kontaktujte mě.
    
* Tento údaj je povinný
										Počet obytných místností: 5
										Užitná plocha: 122,5 m2
										Cena domu na klíč: 4 814 250 Kč
									
										Počet obytných místností: 5
										Užitná plocha: 161,1 m2
										Cena domu na klíč: 5 796 750 Kč
									
										Počet obytných místností: 4
										Užitná plocha: 143 m2
										Cena domu na klíč: 5 619 900 Kč
									
											Počet obytných místností: 4
											Užitná plocha: 126,5 m2
											Cena domu na klíč: 4 971 450 Kč
										
LÍBÍ SE VÁM TENTO DŮM?
Poptejte nezávazně více informací
Dodavatelem projektu je společnost 
.
 Její obchodní zástupce Vás bude kontaktovat v nejbližším možném termínu. 
Děkujeme za poptávku.
        Mám zájem o více informací k domu 
Dům 219.
        Prosím, kontaktujte mě.
    
* Tento údaj je povinný
Nechcete ztrácet čas procházením našeho katalogu?
Zadejte základní parametry vašeho vysněného domu a získejte nabídky šité na míru právě Vám.
 
	Aby web fungoval jak má - souhlas s cookies
Pro co nejlepší zážitek z prohlížení webu, aby fungovalo vyhledávání, přihlašování, abychom vás neobtěžovali nevhodnou reklamou a pro mnoho dalších věcí využívá tato stránka tzv. cookies, což jsou drobné textové informace dočasně ukládané do paměti vašeho prohlížeče. K jejich použití od vás potřebujeme souhlas. Za jeho udělení v plné šíři, či podrobné nastavení vám velmi děkujeme. Vaše rozhodnutí můžete samozřejmě kdykoliv změnit a přenastavit.
Jaké cookies používáme
Nezbytné cookies jsou bezpodmínečně nutné k fungování stránek. Bez nich by nefungovaly základní funkcionality, jako např. přihlašování nebo nakupování v e-shopu. Tyto jsou vždy automaticky povolené.
Marketingové cookies pomáhají trackovat uživatele stránek za účelem nabízení cílených reklamních sdělení. Dávají smysl pro obě strany, neboť uživatel stránek obdrží reklamu na produkty, které ho skutečně zajímají, a které např. vyhledával v minulosti, a vydavatelé reklam naopak mohou tyto reklamy cíleně nabídnout.