Dům 312
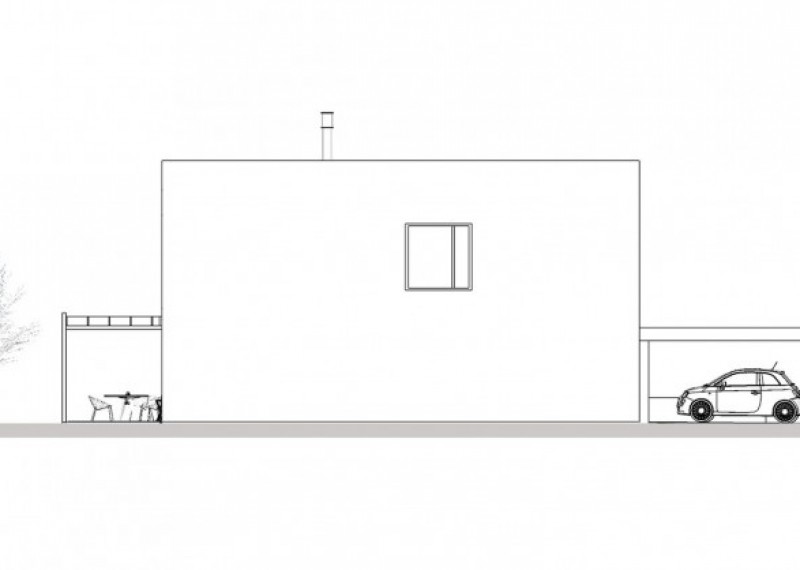
Moderní patrový dům, terasa, garáž

Obytné místnosti

5

Užitná plocha celkem

171,1 m2

Zastavěná plocha

156,6 m2

Konstrukce domu

Zděný

Užitná plocha přízemí:

108,5 m2

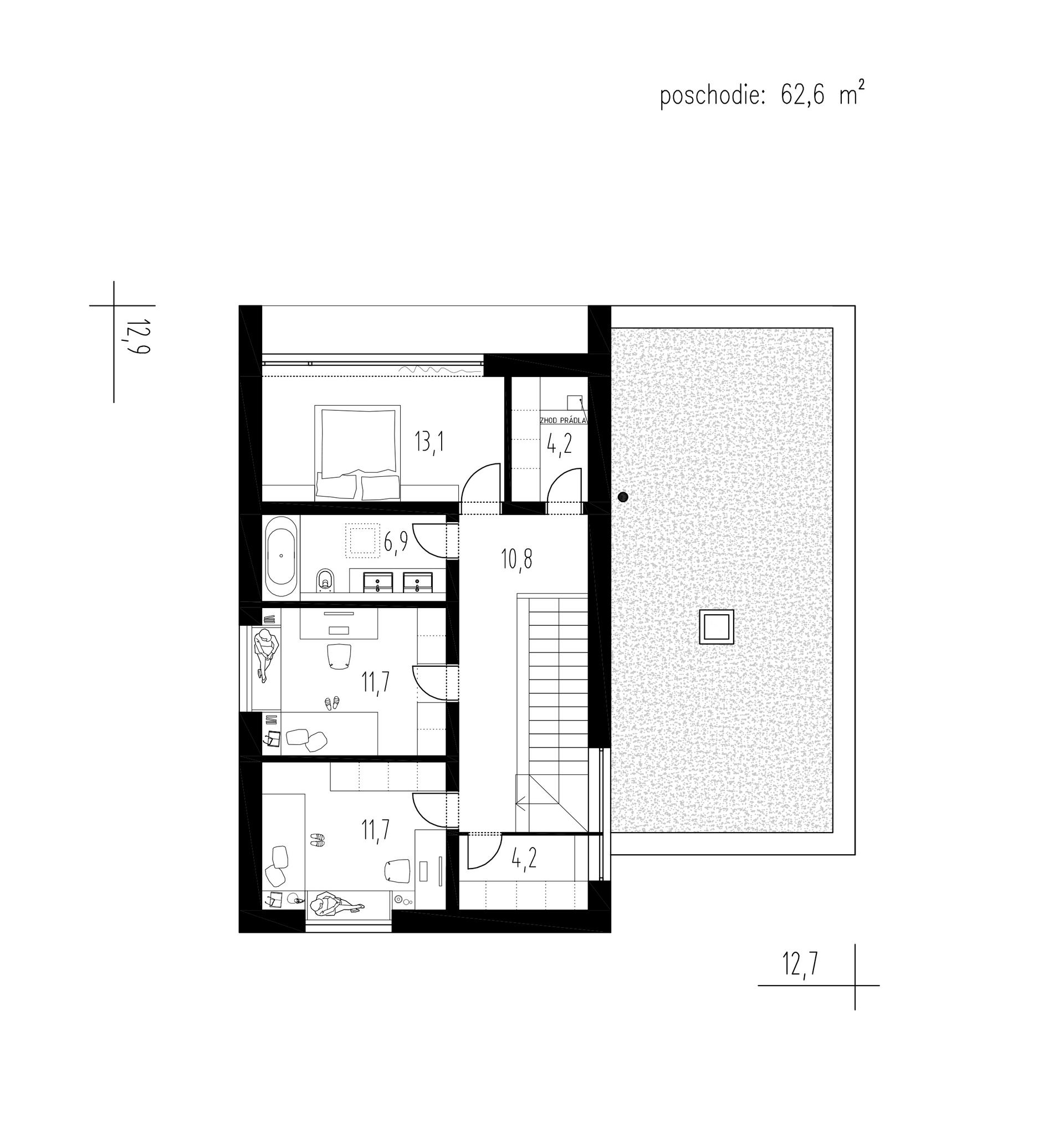
Užitná plocha patra:

62,6 m2

Půdorysné rozměry domu:

12,9 x 12,7 m

Výška hřebenu střechy:

10,9 m

Min. rozměr pozemku:

25 x 17,7 m

Počet parkovacích stání:

1 (garáž)

Počet koupelen:

2

Tvar půdorysu:

Čtverec

Typ střechy:

Rovná

Provedení fasády:

Omítka

Styl domu:

Moderní

Doporučená orientace vstupu:

Sever, Východ

Vybavení domu:

Samostatná spíž, Samostatná šatna, Pracovna, Pokoj pro hosty, Hobby místnost, Krb, Terasa, Garáž

1. NP

Obývací prostor s jídelnou a kuch. koutem

42,1 m2

Spíž

2,7 m2

Ložnice/Pokoj pro hosty/Pracovna

13,7 m2

Šatna/Sklad

6,7 m2

Koupelna

3,8 m2

Technická místnost

3,5 m2

Prádelna

3,3 m2

Chodba

7,7 m2

Zádveří

4,3 m2

Garáž

20,8 m2

2. NP

Pokoj

13,1 m2

Pokoj

11,7 m2

Pokoj

11,7 m2

Šatna

4,2 m2

Koupelna

6,9 m2

Šatna

4,2 m2

Chodba

10,8 m2


Cena projektové dokumentace

92 600

Cena včetně DPH. Cena kompletní projektové dokumentace včetně Průkazu energetické náročnosti budovy (PENB) a Požárně bezpečnostního řešení (PBŘ).

Cena domu na klíč

Dodavatel sídlí na Slovensku a v ČR primárně dodává projektovou dokumentaci. Výstavbu domu na klíč zajišťuje jen v regionech poblíž hranice se Slovenskem (Moravskoslezský, Zlínský a Jihomoravský kraj).
Cena domu na klíč bude stanovena na základě individuální poptávky.

Popis stavby

Jednoduchý, elegantní, patrový rodinný dům s velkými francouzskými okny a nadstandardním množstvím úložných prostor.

V přízemí najdeme kuchyňský kout s ostrůvkem na varnou desku, který sousedí s jídelnou a nadstandardně velkým obývacím pokojem s velkými prosklenými plochami a světlovodem nad jídelním stolem. Velkou výhodou kuchyně je samostatná spíž, sloužící k pohodlnému uskladnění potravin. Pro navození útulné atmosféry je zde navržen krb.

V přízemí domu je umístěn pokoj s velkým francouzským oknem a výstupem na terasu, který může sloužit jako ložnice, ale také jako pokoj pro hosty nebo pracovna. Dále zde najdeme koupelnu se sprchovým koutem a prádelnu s praktickým shozem prádla ze šatny v patře. Pod schodištěm se nachází další prostor pro ukládání věcí.

V patře nalezneme tři pokoje, koupelnu s vanou a dvě prostorné šatny.

Součástí domu je garáž.

Náš tip

Zdrojem vytápění je kvalitní tepelné čerpadlo vzduch/voda značky Daikin. Rozvody jsou v celém domě řešeny jako teplovodní podlahové topení.
Větrání je zajištěno pomocí rekuperační jednotky.

POPTAT DŮM

ZAVŘÍT  

Dodavatelem projektu je společnost
.
Její obchodní zástupce Vás bude kontaktovat v nejbližším možném termínu.

Děkujeme za poptávku.

Mám zájem o více informací k domu
Dům 312.
Prosím, kontaktujte mě.

* Tento údaj je povinný

Vyplněním údajů a odesláním formuláře souhlasíte s jejich zpracováním a uchováním společností Online House. s.r.o. Více o ochraně osobních údajů.

LÍBÍ SE VÁM TENTO DŮM?
Poptejte nezávazně více informací

ZAVŘÍT  

Dodavatelem projektu je společnost
.
Její obchodní zástupce Vás bude kontaktovat v nejbližším možném termínu.

Děkujeme za poptávku.

Mám zájem o více informací k domu
Dům 312.
Prosím, kontaktujte mě.

* Tento údaj je povinný

Vyplněním údajů a odesláním formuláře souhlasíte s jejich zpracováním a uchováním společností Online House. s.r.o. Více o ochraně osobních údajů.

Nechcete ztrácet čas procházením našeho katalogu?

Zadejte základní parametry vašeho vysněného domu a získejte nabídky šité na míru právě Vám.

 ZAVŘÍT

Aby web fungoval jak má - souhlas s cookies

Pro co nejlepší zážitek z prohlížení webu, aby fungovalo vyhledávání, přihlašování, abychom vás neobtěžovali nevhodnou reklamou a pro mnoho dalších věcí využívá tato stránka tzv. cookies, což jsou drobné textové informace dočasně ukládané do paměti vašeho prohlížeče. K jejich použití od vás potřebujeme souhlas. Za jeho udělení v plné šíři, či podrobné nastavení vám velmi děkujeme. Vaše rozhodnutí můžete samozřejmě kdykoliv změnit a přenastavit.

Jaké cookies používáme

Nezbytné

Nezbytné cookies jsou bezpodmínečně nutné k fungování stránek. Bez nich by nefungovaly základní funkcionality, jako např. přihlašování nebo nakupování v e-shopu. Tyto jsou vždy automaticky povolené.

Statistické

Tyto cookies pomáhají s měřením a analýzou návštěvnosti stránek.

Marketingové

Marketingové cookies pomáhají trackovat uživatele stránek za účelem nabízení cílených reklamních sdělení. Dávají smysl pro obě strany, neboť uživatel stránek obdrží reklamu na produkty, které ho skutečně zajímají, a které např. vyhledával v minulosti, a vydavatelé reklam naopak mohou tyto reklamy cíleně nabídnout.

Přijmout vše Přijmout vybrané Podrobné nastavení