Dům 324
Moderní, patrový dům 5kk, terasa

Obytné místnosti

5

Užitná plocha celkem

159 m2

Zastavěná plocha

127,9 m2

Konstrukce domu

Zděný

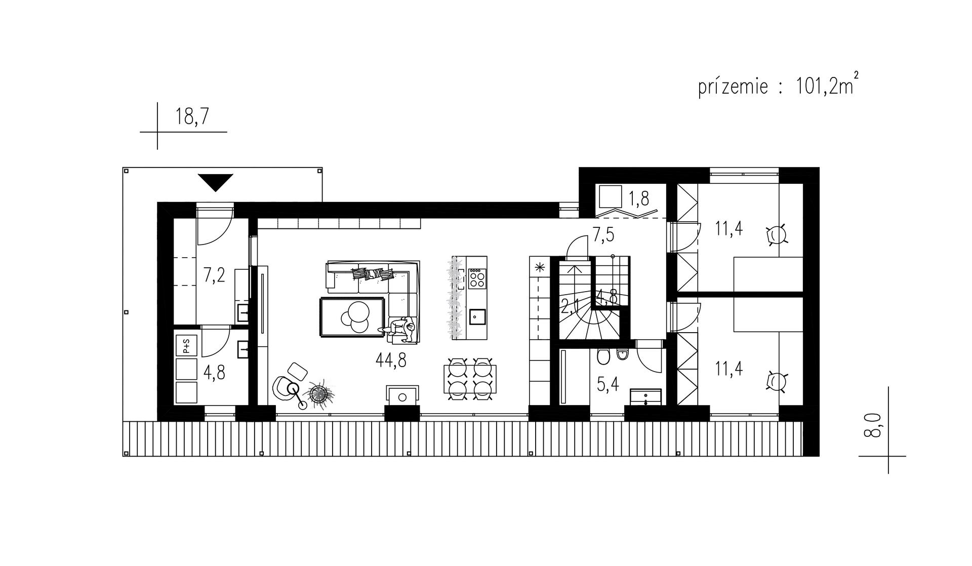
Užitná plocha přízemí:

101,2 m2

Užitná plocha patra:

57,8 m2

Půdorysné rozměry domu:

18,7 x 8,0 m

Výška hřebenu střechy:

6,8 m

Min. rozměr pozemku:

27 x 19 m

Počet koupelen:

2

Tvar půdorysu:

Obdélník

Typ střechy:

Rovná

Provedení fasády:

Omítka

Styl domu:

Moderní

Doporučená orientace vstupu:

Sever, Východ

Vybavení domu:

Samostatné WC, Samostatná spíž, Samostatná šatna, Hlavní ložnice s vlastní koupelnou, Pracovna, Pokoj pro hosty, Hobby místnost, Krb, Sauna, Terasa

1. NP

Obývací prostor s jídelnou a kuch. koutem

44,8 m2

Spíž

2,1 m2

Pokoj

11,4 m2

Pokoj

11,4 m2

Koupelna

5,4 m2

Technická místnost

4,8 m2

Chodba

7,5 m2

Skladovací prostor

1,8 m2

Schodiště

4,8 m2

Zádveří

7,2 m2

2. NP

Ložnice

15,8 m2

Šatna

6,4 m2

Koupelna

5,6 m2

Wellness se saunou

8,1 m2

Pracovna/Pokoj pro hosty/Hobby místnost

14,6 m2

Chodba

3,4 m2

Skladovací prostor

1,8 m2

WC/Prádelna

2,1 m2


Cena projektové dokumentace

97 590

Cena včetně DPH. Cena kompletní projektové dokumentace včetně Průkazu energetické náročnosti budovy (PENB) a Požárně bezpečnostního řešení (PBŘ).

Cena domu na klíč

Dodavatel sídlí na Slovensku a v ČR primárně dodává projektovou dokumentaci. Výstavbu domu na klíč zajišťuje jen v regionech poblíž hranice se Slovenskem (Moravskoslezský, Zlínský a Jihomoravský kraj).
Cena domu na klíč bude stanovena na základě individuální poptávky.

Popis stavby

Patrový, 5pokojový rodinný dům s čistými liniemi a jednoduchou, elegantní architekturou.

V přízemí se nachází společenská část domu, kterou tvoří obývací prostor s krbem, propojený s kuchyňským koutem a jídelnou. V kuchyni je navržen varný ostrůvek a praktická, samostatná spíž, sloužící k pohodlnému uskladnění potravin.

V přízemí se dále nacházejí 2 dětské pokoje, k nimž náleží koupelna se sprchovým koutem.

V patře najdeme ložnici rodičů, která má soukromou šatnu a vlastní prostornou koupelnu se saunou. Dále je zde navržen pokoj, který může sloužit jako pracovna, pokoj pro hosty, ložnice nebo třeba hobby místnost.

V domě je navrženo velké množství úložných prostor.

Náš tip

Zdrojem vytápění je kvalitní tepelné čerpadlo vzduch/voda značky Daikin. Rozvody jsou v celém domě řešeny jako teplovodní podlahové topení.
Větrání je zajištěno pomocí rekuperační jednotky.

POPTAT DŮM

ZAVŘÍT  

Dodavatelem projektu je společnost
.
Její obchodní zástupce Vás bude kontaktovat v nejbližším možném termínu.

Děkujeme za poptávku.

Mám zájem o více informací k domu
Dům 324.
Prosím, kontaktujte mě.

* Tento údaj je povinný

Vyplněním údajů a odesláním formuláře souhlasíte s jejich zpracováním a uchováním společností Online House. s.r.o. Více o ochraně osobních údajů.

LÍBÍ SE VÁM TENTO DŮM?
Poptejte nezávazně více informací

ZAVŘÍT  

Dodavatelem projektu je společnost
.
Její obchodní zástupce Vás bude kontaktovat v nejbližším možném termínu.

Děkujeme za poptávku.

Mám zájem o více informací k domu
Dům 324.
Prosím, kontaktujte mě.

* Tento údaj je povinný

Vyplněním údajů a odesláním formuláře souhlasíte s jejich zpracováním a uchováním společností Online House. s.r.o. Více o ochraně osobních údajů.

Nechcete ztrácet čas procházením našeho katalogu?

Zadejte základní parametry vašeho vysněného domu a získejte nabídky šité na míru právě Vám.

 ZAVŘÍT

Aby web fungoval jak má - souhlas s cookies

Pro co nejlepší zážitek z prohlížení webu, aby fungovalo vyhledávání, přihlašování, abychom vás neobtěžovali nevhodnou reklamou a pro mnoho dalších věcí využívá tato stránka tzv. cookies, což jsou drobné textové informace dočasně ukládané do paměti vašeho prohlížeče. K jejich použití od vás potřebujeme souhlas. Za jeho udělení v plné šíři, či podrobné nastavení vám velmi děkujeme. Vaše rozhodnutí můžete samozřejmě kdykoliv změnit a přenastavit.

Jaké cookies používáme

Nezbytné

Nezbytné cookies jsou bezpodmínečně nutné k fungování stránek. Bez nich by nefungovaly základní funkcionality, jako např. přihlašování nebo nakupování v e-shopu. Tyto jsou vždy automaticky povolené.

Statistické

Tyto cookies pomáhají s měřením a analýzou návštěvnosti stránek.

Marketingové

Marketingové cookies pomáhají trackovat uživatele stránek za účelem nabízení cílených reklamních sdělení. Dávají smysl pro obě strany, neboť uživatel stránek obdrží reklamu na produkty, které ho skutečně zajímají, a které např. vyhledával v minulosti, a vydavatelé reklam naopak mohou tyto reklamy cíleně nabídnout.

Přijmout vše Přijmout vybrané Podrobné nastavení