Obytné místnosti

5

Užitná plocha celkem

155,1 m2

Zastavěná plocha

117,9 m2

Konstrukce domu

Zděný

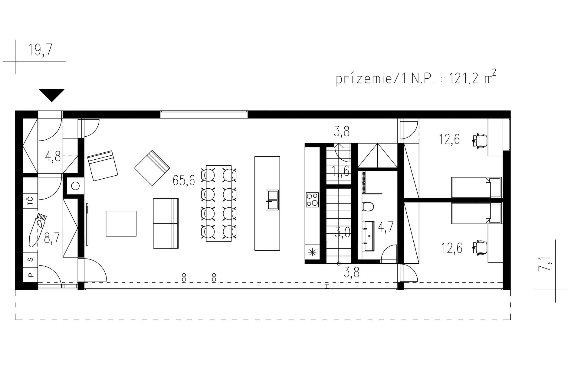
Užitná plocha přízemí:

121,2 m2

Užitná plocha patra:

67,6 m2

Půdorysné rozměry domu:

19,7 x 7,1 m

Výška hřebenu střechy:

6,7 m

Min. rozměr pozemku:

22,8 x 13,3 m

Počet koupelen:

2

Tvar půdorysu:

Obdélník

Typ střechy:

Rovná

Provedení fasády:

Omítka

Styl domu:

Moderní

Doporučená orientace vstupu:

Sever, Východ

Vybavení domu:

Samostatná spíž, Samostatná šatna, Pracovna, Pokoj pro hosty, Hobby místnost, Krb, Terasa

1. NP

Obývací prostor s jídelnou a kuch. koutem

65,6 m2

Spíž

1,6 m2

Pokoj

12,6 m2

Pokoj

12,6 m2

Koupelna

4,7 m2

Tech. místnost/Prádelna

8,7 m2

Chodba

3,8 m2

Chodba

3,8 m2

Schodiště

3,0 m2

Zádveří

4,8 m2

2. NP

Ložnice

16,4 m2

Šatna

12,5 m2

Pokoj

30,3 m2

Koupelna

4,7 m2

Chodba

3,7 m2


Cena projektové dokumentace

110 450

Cena včetně DPH. Cena kompletní projektové dokumentace včetně Průkazu energetické náročnosti budovy (PENB) a Požárně bezpečnostního řešení (PBŘ).

Cena domu k dokončení

6 095 430

Cena včetně DPH při optimalizovaném standardu použitých materiálů a technologií v poměru cena/výkon.
Cena obsahuje základovou desku, tepelné čerpadlo vzduch/voda, systém řízeného větrání s rekuperací.
Cena neobsahuje finální povrchy podlah a stěn (obklady, dlažby, plovoucí podlahy, výmalba), zařizovací předměty koupelen a wc, interiérové dveře a zárubně. Cena dále neobsahuje komínový systém a krbovou vložku, žaluzie, kuchyňskou linku ani žádný jiný nábytek, terasu, okapové chodníky, zpevněné plochy na pozemku, přípojky inženýrských sítí, sadové úpravy, oplocení pozemku.

Cena domu na klíč

Bude stanovena na základě individuální poptávky.

Popis stavby

Nadčasová vila s minimalistickým designem, která je vhodná pro rodinu s 2-3 dětmi. Charakteristickými prvky domu jsou velké prosklené plochy a jednoduché, elegantní linie.

Srdcem domu je velkorysý obývací prostor s krbem, propojený s jídelnou a kuchyňským koutem. Pod schodištěm je prostor pro vytvoření praktické spíže, která bude na dosah kuchyně. Velká prosklená stěna propojuje celé spodní patro s terasou a přilehlou zahradou a zajišťuje dokonalé prosvětlení interiéru.

V přízemí dále najdeme dva dětské pokoje, které mají k dispozici koupelnu se sprchovým koutem.

V patře je navržen velkorysý pokoj s prosklenou stěnou, který může být podle potřeby využíván jako domácí kancelář, pokoj pro hosty, dětská herna nebo hobby místnost. Dále zde najdeme koupelnu s vanou a ložnici rodičů, která má vlastní nadstandardně velkou šatnu.

Náš tip

Zdrojem vytápění je kvalitní tepelné čerpadlo vzduch/voda značky Daikin. Rozvody jsou v celém domě řešeny jako teplovodní podlahové topení.
Větrání je zajištěno pomocí rekuperační jednotky.

Nechcete ztrácet čas procházením našeho katalogu?

Zadejte základní parametry vašeho vysněného domu a získejte nabídky šité na míru právě Vám.

 ZAVŘÍT

Aby web fungoval jak má - souhlas s cookies

Pro co nejlepší zážitek z prohlížení webu, aby fungovalo vyhledávání, přihlašování, abychom vás neobtěžovali nevhodnou reklamou a pro mnoho dalších věcí využívá tato stránka tzv. cookies, což jsou drobné textové informace dočasně ukládané do paměti vašeho prohlížeče. K jejich použití od vás potřebujeme souhlas. Za jeho udělení v plné šíři, či podrobné nastavení vám velmi děkujeme. Vaše rozhodnutí můžete samozřejmě kdykoliv změnit a přenastavit.

Jaké cookies používáme

Nezbytné

Nezbytné cookies jsou bezpodmínečně nutné k fungování stránek. Bez nich by nefungovaly základní funkcionality, jako např. přihlašování nebo nakupování v e-shopu. Tyto jsou vždy automaticky povolené.

Statistické

Tyto cookies pomáhají s měřením a analýzou návštěvnosti stránek.

sembako4d sembako4d sembako4d balaitoto balaitoto sembako4d sembako4d balaitoto indosattoto bengbeng toto login bengbengtoto login bengbengtoto login bengbengtoto login bengbengtoto login bengbengtoto login bengbengtoto indosattoto indosattoto balaitoto cahayatoto cahayatoto cahayatoto cahayatoto cahayatoto indosattoto indosattoto ohtogel ohtogel ohtogel ohtogel ohtogel ohtogel ohtogel jualtoto mineraltoto

Marketingové

Marketingové cookies pomáhají trackovat uživatele stránek za účelem nabízení cílených reklamních sdělení. Dávají smysl pro obě strany, neboť uživatel stránek obdrží reklamu na produkty, které ho skutečně zajímají, a které např. vyhledával v minulosti, a vydavatelé reklam naopak mohou tyto reklamy cíleně nabídnout.

Přijmout vše Přijmout vybrané Podrobné nastavení