Nechcete ztrácet čas procházením našeho katalogu?
Zadejte základní parametry vašeho vysněného domu a získejte nabídky šité na míru právě Vám.
VÝBĚR DOMU
Dodavatelem projektu je společnost 
.
 Její obchodní zástupce Vás bude kontaktovat v nejbližším možném termínu. 
Děkujeme za poptávku.
        Mám zájem o více informací k domu 
Dům 569.
        Prosím, kontaktujte mě.
    
* Tento údaj je povinný
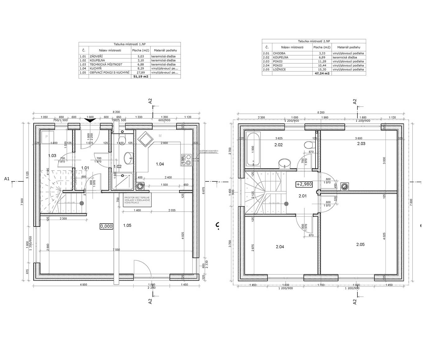
Obytné místnosti
4
Užitná plocha celkem
98,43 m2
Zastavěná plocha
64 m2
Konstrukce domu
Užitná plocha přízemí:
51,19 m2
Užitná plocha patra:
47,24 m2
Půdorysné rozměry domu:
8,2 x 7,8 m
Počet koupelen:
2
Tvar půdorysu:
Čtverec
Typ střechy:
Rovná
Provedení fasády:
Omítka
Styl domu:
Moderní
Doporučená orientace vstupu:
Sever, Západ
Vybavení domu:
Krb, Terasa
Obývací prostor
27,89 m2
Kuchyň
8,29 m2
Koupelna
3,1 m2
Tech. místnost
6,88 m2
Zádveří
5,03 m2
Chodba
3,33 m2
Pokoj
11,28 m2
Pokoj
10,44 m2
Ložnice
15,30 m2
Koupelna
6,89 m2
Cena včetně DPH. Cena zahrnuje projektovou dokumentaci, realizaci základové desky, komínový systém, tepelné čerpadlo s podlahovým vytápěním. NOVĚ CENA ZAHRNUJE TAKÉ KUCHYŇSKOU LINKU!
Cena neobsahuje krbová kamna nebo krbovou vložku, žaluzie, nábytek, terasu, okapové chodníky, zpevněné plochy na pozemku, přípojky inženýrských sítí, sadové úpravy, oplocení pozemku.
Cena včetně DPH. Cena zahrnuje projektovou dokumentaci, realizaci základové desky, komínový systém, tepelné čerpadlo s podlahovým vytápěním. NOVĚ CENA ZAHRNUJE TAKÉ KUCHYŇSKOU LINKU!
Cena neobsahuje krbová kamna nebo krbovou vložku, žaluzie, nábytek, terasu, okapové chodníky, zpevněné plochy na pozemku, přípojky inženýrských sítí, sadové úpravy, oplocení pozemku.
Moderní, 4pokojový, patrový dům s jednoduchými liniemi a plochou střechou.
V přízemí se nachází obytný velkoprostor propojený s kuchyňským koutem, který ale může být v případě potřeby úplně oddělen. Francouzská okna zajišťují dostatek světla v interiéru a jeho propojení se zahradou. Nechybí ani krb.
V přízemí se dále nachází koupelna s toaletou a prostorná technická místnost, do které se pohodlně vejdou všechny technologie domu.
V patře je umístěna velkorysá ložnice rodičů, nadstandardně velká koupelna s vanou a 2 dětské pokoje.
Dům je možno dodat v provedení dřevostavba nebo zděný dům.
Rodinné domy v provedení dřevostavba nebo zděný dům.
Zdrojem vytápění je kvalitní tepelné čerpadlo.
Ceny jsou včetně základové desky, komínového systému a vysokého standardu vybavení.
Realizace domů po celé ČR.
Novinka: KUCHYŇSKÁ LINKA V CENĚ DOMU!
Dodavatelem projektu je společnost 
.
 Její obchodní zástupce Vás bude kontaktovat v nejbližším možném termínu. 
Děkujeme za poptávku.
        Mám zájem o více informací k domu 
Dům 569.
        Prosím, kontaktujte mě.
    
* Tento údaj je povinný
											Počet obytných místností: 4
											Užitná plocha: 126,5 m2
											Cena domu na klíč: 4 971 450 Kč
										
											Počet obytných místností: 5
											Užitná plocha: 122,5 m2
											Cena domu na klíč: 4 814 250 Kč
										
											Počet obytných místností: 5
											Užitná plocha: 161,1 m2
											Cena domu na klíč: 5 796 750 Kč
										
											Počet obytných místností: 4
											Užitná plocha: 143 m2
											Cena domu na klíč: 5 619 900 Kč
										
LÍBÍ SE VÁM TENTO DŮM?
Poptejte nezávazně více informací
Dodavatelem projektu je společnost 
.
 Její obchodní zástupce Vás bude kontaktovat v nejbližším možném termínu. 
Děkujeme za poptávku.
        Mám zájem o více informací k domu 
Dům 569.
        Prosím, kontaktujte mě.
    
* Tento údaj je povinný
Nechcete ztrácet čas procházením našeho katalogu?
Zadejte základní parametry vašeho vysněného domu a získejte nabídky šité na míru právě Vám.
 
	Aby web fungoval jak má - souhlas s cookies
Pro co nejlepší zážitek z prohlížení webu, aby fungovalo vyhledávání, přihlašování, abychom vás neobtěžovali nevhodnou reklamou a pro mnoho dalších věcí využívá tato stránka tzv. cookies, což jsou drobné textové informace dočasně ukládané do paměti vašeho prohlížeče. K jejich použití od vás potřebujeme souhlas. Za jeho udělení v plné šíři, či podrobné nastavení vám velmi děkujeme. Vaše rozhodnutí můžete samozřejmě kdykoliv změnit a přenastavit.
Jaké cookies používáme
Nezbytné cookies jsou bezpodmínečně nutné k fungování stránek. Bez nich by nefungovaly základní funkcionality, jako např. přihlašování nebo nakupování v e-shopu. Tyto jsou vždy automaticky povolené.
Marketingové cookies pomáhají trackovat uživatele stránek za účelem nabízení cílených reklamních sdělení. Dávají smysl pro obě strany, neboť uživatel stránek obdrží reklamu na produkty, které ho skutečně zajímají, a které např. vyhledával v minulosti, a vydavatelé reklam naopak mohou tyto reklamy cíleně nabídnout.