Nechcete ztrácet čas procházením našeho katalogu?
Zadejte základní parametry vašeho vysněného domu a získejte nabídky šité na míru právě Vám.
VÝBĚR DOMU
Dodavatelem projektu je společnost
.
Její obchodní zástupce Vás bude kontaktovat v nejbližším možném termínu.
Děkujeme za poptávku.
Mám zájem o více informací k domu
Dům 319.
Prosím, kontaktujte mě.
* Tento údaj je povinný
Obytné místnosti
5
Užitná plocha celkem
208,2 m2
Zastavěná plocha
290,78 m2
Konstrukce domu
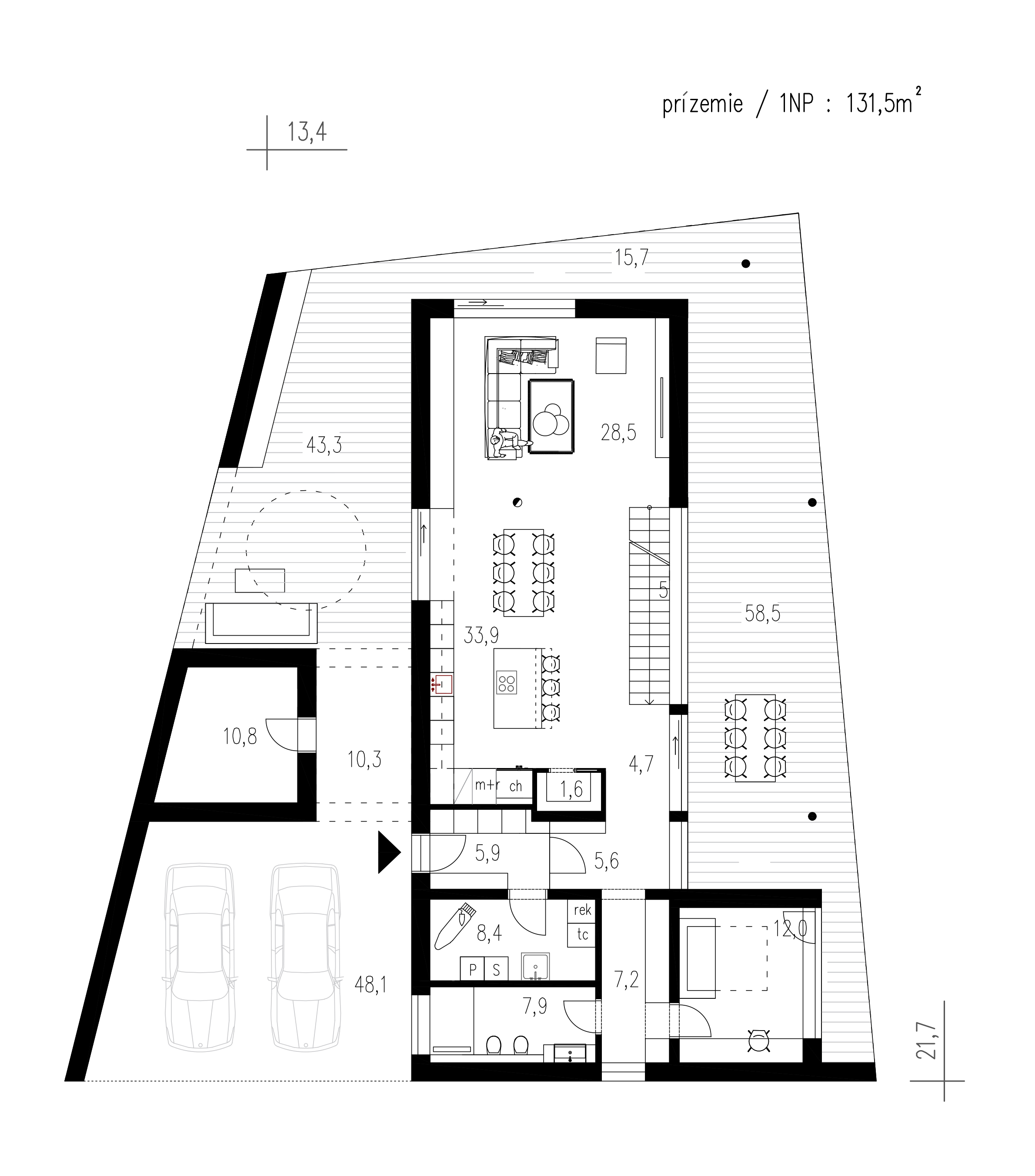
Užitná plocha přízemí:
131,5 m2
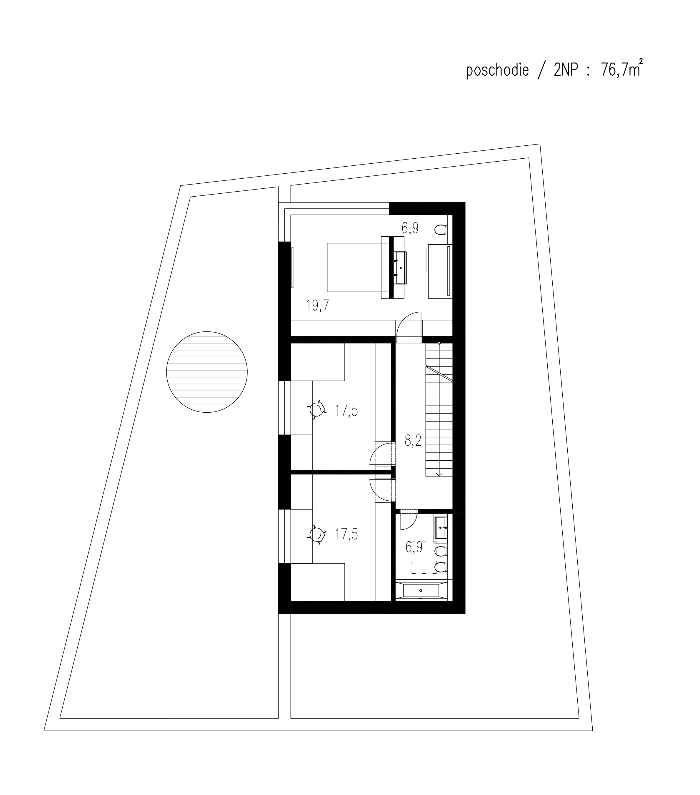
Užitná plocha patra:
76,7 m2
Půdorysné rozměry domu:
21,7 x 13,4 m
Výška hřebenu střechy:
6,7 m
Počet parkovacích stání:
2 (krytá parkovací stání)
Počet koupelen:
3
Tvar půdorysu:
Obdélník
Typ střechy:
Rovná
Provedení fasády:
Omítka
Styl domu:
Moderní
Doporučená orientace vstupu:
Sever, Východ
Vybavení domu:
Samostatná spíž, Hlavní ložnice s vlastní koupelnou, Pracovna, Pokoj pro hosty, Hobby místnost, Krb, Terasa
Obývací prostor
28,5 m2
Kuch. kout s jídelnou
33,9 m2
Spíž
1,6 m2
Pracovna/Pokoj pro hosty/Hobby místnost
12,0 m2
Koupelna
7,9 m2
Tech. místnost/Prádelna
8,4 m2
Chodba
10,3 m2
Zádveří
5,9 m2
Chodba
7,2 m2
Externí sklad
10,8 m2
Parkovací stání
48,1 m2
Ložnice
19,7 m2
Koupelna
6,9 m2
Pokoj
17,5 m2
Pokoj
17,5 m2
Koupelna
6,9 m2
Chodba
8,2 m2
Cena včetně DPH. Cena kompletní projektové dokumentace včetně Průkazu energetické náročnosti budovy (PENB) a Požárně bezpečnostního řešení (PBŘ).
Dodavatel sídlí na Slovensku a v ČR primárně dodává projektovou dokumentaci. Výstavbu domu na klíč zajišťuje jen v regionech poblíž hranice se Slovenskem (Moravskoslezský, Zlínský a Jihomoravský kraj).
Cena domu na klíč bude stanovena na základě individuální poptávky.
Extravagantní, moderní, dvoupodlažní vila s plochou střechou a velkými prosklenými plochami. Atraktivním architektonickým prvkem je přesah střechy, který téměř po celém obvodu domu vytváří krytou terasu, která je v nejširším místě využita jako parkovací stání pro 2 auta. Dále tím vzniká prostor např. pro realizaci venkovní kuchyně.
V přízemí se nachází společenská část domu, která je tvořena obrovským otevřeným obytným prostorem s jídelnou a kuchyňským koutem. Nechybí ani varný ostrůvek s barovým sezením a spíž pro pohodlné skladování potravin. Velké prosklené stěny zajišťují dokonalé prosvětlení interiéru denním světlem a ničím nerušený výhled do zahrady.
V přízemí se dále nachází technická místnost s prádelnou, koupelna a pokoj, který může mít nejrůznější využití - od pracovny nebo pokoje pro hosty, až po dětský pokoj či hobby místnost.
V patře je umístěna privátní část domu se 2 dětskými pokoji a ložnicí rodičů. Rodičovská ložnice má vlastní koupelnu s toaletou, další koupelna přístupná z chodby je určena pro dětské pokoje.
Součástí domu je kryté parkovací stání pro 2 auta a externí sklad.
Zdrojem vytápění je kvalitní tepelné čerpadlo vzduch/voda značky Daikin. Rozvody jsou v celém domě řešeny jako teplovodní podlahové topení.
Větrání je zajištěno pomocí rekuperační jednotky.
Dodavatelem projektu je společnost
.
Její obchodní zástupce Vás bude kontaktovat v nejbližším možném termínu.
Děkujeme za poptávku.
Mám zájem o více informací k domu
Dům 319.
Prosím, kontaktujte mě.
* Tento údaj je povinný
Počet obytných místností: 5
Užitná plocha: 161,1 m2
Cena domu na klíč: 5 796 750 Kč
Počet obytných místností: 5
Užitná plocha: 195,5 m2
Cena domu na klíč: 7 683 150 Kč
Počet obytných místností: 5
Užitná plocha: 171,1 m2
Cena domu na klíč: 6 724 230 Kč
Počet obytných místností: 4
Užitná plocha: 126,5 m2
Cena domu na klíč: 4 971 450 Kč
LÍBÍ SE VÁM TENTO DŮM?
Poptejte nezávazně více informací
Dodavatelem projektu je společnost
.
Její obchodní zástupce Vás bude kontaktovat v nejbližším možném termínu.
Děkujeme za poptávku.
Mám zájem o více informací k domu
Dům 319.
Prosím, kontaktujte mě.
* Tento údaj je povinný
Nechcete ztrácet čas procházením našeho katalogu?
Zadejte základní parametry vašeho vysněného domu a získejte nabídky šité na míru právě Vám.
Aby web fungoval jak má - souhlas s cookies
Pro co nejlepší zážitek z prohlížení webu, aby fungovalo vyhledávání, přihlašování, abychom vás neobtěžovali nevhodnou reklamou a pro mnoho dalších věcí využívá tato stránka tzv. cookies, což jsou drobné textové informace dočasně ukládané do paměti vašeho prohlížeče. K jejich použití od vás potřebujeme souhlas. Za jeho udělení v plné šíři, či podrobné nastavení vám velmi děkujeme. Vaše rozhodnutí můžete samozřejmě kdykoliv změnit a přenastavit.
Jaké cookies používáme
Nezbytné cookies jsou bezpodmínečně nutné k fungování stránek. Bez nich by nefungovaly základní funkcionality, jako např. přihlašování nebo nakupování v e-shopu. Tyto jsou vždy automaticky povolené.
Marketingové cookies pomáhají trackovat uživatele stránek za účelem nabízení cílených reklamních sdělení. Dávají smysl pro obě strany, neboť uživatel stránek obdrží reklamu na produkty, které ho skutečně zajímají, a které např. vyhledával v minulosti, a vydavatelé reklam naopak mohou tyto reklamy cíleně nabídnout.